
Дизайнеры интерьера
5
·
4 отзыва
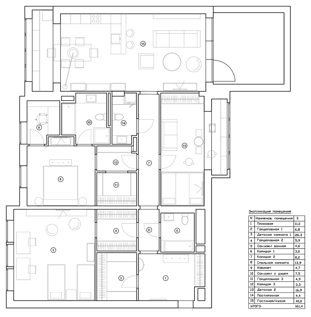
Квартира на Остоженке
Подробнее о проекте на нашем сайте - https://interior.studio/projects/dizain-interera-kvartiry-na-ostozhenke
Другие фотографии в проекте
Вопросы к фото 0
Задайте вопрос
Вам ответят эксперты. Пришлем уведомление, когда вам ответят




