logo
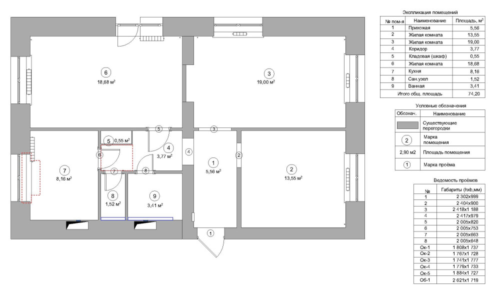
План ДО

Другие фотографии в проекте Квартира на Народной

Вопросы к фото 0

Задайте вопрос

Вам ответят эксперты. Пришлем уведомление, когда вам ответят

Контемпорари, Новосибирск, Трехкомнатная квартира 74 м2 для семьи с ребенком

ДЕКАБРЬ | Дизайн интерьера

ДЕКАБРЬ | Дизайн интерьера

Дизайнеры интерьера

Смотреть профиль

7

отзывов

5

Рейтинг

Квартира на Народной

Трехкомнатная квартира 74м2 в доме сталинской постройки для семьи с ребенком

Вопросы к фото 0