
Архитекторы
5
·
10 отзывов
Квартира на Ломоносовском проспекте
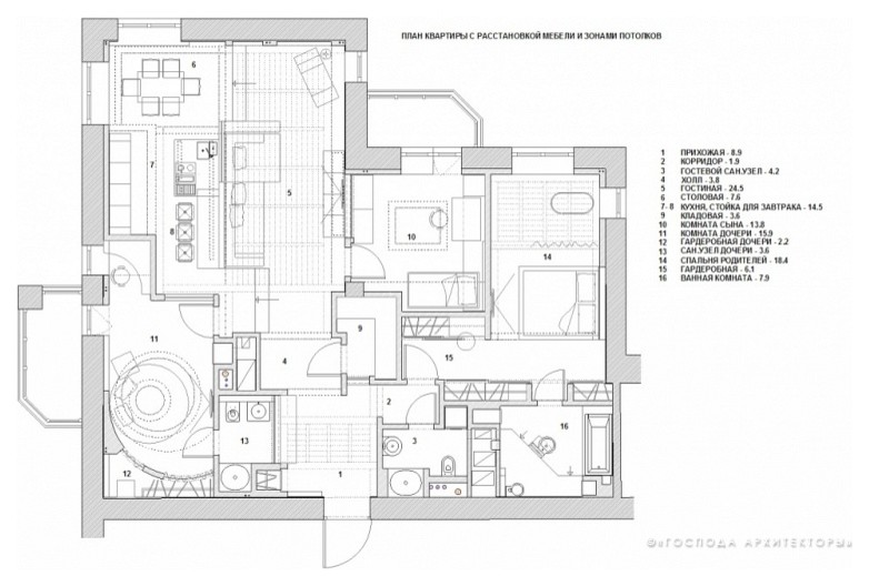
Задачи, поставленные заказчиком: После перепланировки получить еще одну жилую комнату (спальню для дочери), так как изначально в квартире было 3 жилых комнаты (гостиная, спальня родителей, детская спальня). У хозяев двое разнополых детей и требовалась еще одна детская спальня. . Решение, предложенное исполнителем: Угловое размещение квартиры в доме и дополнительные окна, позволили выполнить поставленную задачу. Гостиная, столовая и кухня были объединены и смещены в плане квартиры. В районе бывшей кухни возникла новая жилая комната — комната дочери, со своим отдельным санузлом и своей гардеробной комнатой, появились новые помещения, повышающие комфорт и качество жизни. Состав помещений стал таким: 1. Прихожая, 2. Коридор, 3. Гостевой санузел, 4. Холл, 5.6.7.8. Объединенное пространство гостиной, столовой и кухни со стойкой для завтраков, 9. Кладовая, 10. Комната сына, 11. Комната дочери, 12. Гардеробная дочери, 13. Санузел дочери, 14. Спальня родителей, 15. Гардеробная, 16. Ванная комната. . . Используемые материалы, технологии, марки мебели, света, сантехники: . . В отделке стен помещений квартиры использована плитка, имитирующая «бруклинскую» кирпичную кладку и краска с наполнителем из перламутра, мерцающая бликами в дневном и искусственном свете. На полу применен натуральный камень, мозаика Trend с авантюрином и вкраплениями из белого золота, брушированная доска из массива дуба, производства Германии. Потолки - из гипсокартона. Декоративные элементы, в виде балок и панелей выполнены из MDF, шпонированного натуральным деревом. В гостиной установлен домашний кинотеатр с выдвижным из потолка экраном (экран Draper Baronet, проектор BenQ, видеомагнитофон, плазменные панели Panasonic, VD проигрыватель, A/V ресивер Pioneer, фронтальная, центральная потолочная акустика B&W, радиоприемник в ванной комнате Tivoli Audio). Трассы вентиляции и канального кондиционера Daikin спрятаны за многоуровневыми потолками. Интерьеры укомплектованы итальянской и немецкой мебелью. Дизайну освещения уделено особое внимание. Светильники не только потолочные, но и разнообразные подсветки, светильники смонтированные в стены и в пол, укомплектованные разными типами ламп, создают ощущение постоянного праздника. Применены светильники фабрик Delta Light, Itre, Lumen Center Italia, Sophi AP1, Planlicht, Iguzzini. Двери: Lualdi Porte, и раздвижные перегородки: Rimadesio (Италия). Сантехника: Duravit, Villeroy&Boch, Ideal Standard. Санузлы облицованы плиткой Marazzi. Кухонное оборудование Gaggenau и Siemens. . Электрооборудование Vimar. В интерьерах часть мебели и отдельные детали выполнены по индивидуальным проектам архитекторов. .
Другие фотографии в проекте
Вопросы к фото 0
Задайте вопрос
Вам ответят эксперты. Пришлем уведомление, когда вам ответят



