
Дизайнеры интерьера
5
·
4 отзыва
Квартира на Красной Пресне
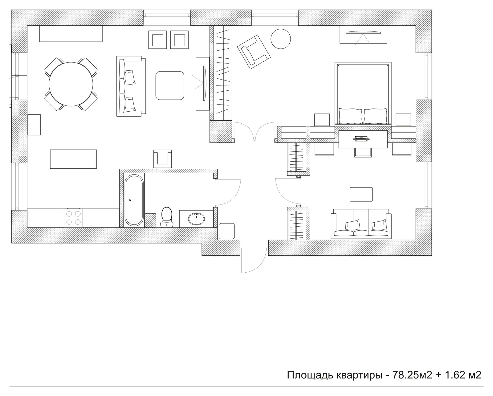
Хозяйка купила эту квартиру на вторичном рынке в одном из старых домов на Красной Пресне. Страшно вспомнить, как выглядело это жилье в момент покупки, но внимательная хозяйка сразу оценила все перспективы и возможности этого пространства. Деревянные окна на три стороны света, высокие потолки, прекрасное месторасположение квартиры - все это вдохновляло и придавало уверенности, что все сложности будут преодолены. . Демонтаж всех перегородок, старого пола и многочисленных слоев обоев занял почти два месяца. Избавившись от всех следов прошлой жизни, мы получили абсолютно чистый лист для создания нового интерьера. Солнечный свет буквально заливал пустое пространство, наполняя его воздухом и объемом, и именно это это ощущение стало основополагающим при создании интерьера этой квартиры. Мы хотели сохранить это потрясающее чувство света и безграничного объема, льющееся из окон. Кстати, старые окна мы менять не стали, а наоборот, бережно их отреставрировали, заменили фурнитуру и сохранили их прекрасную конфигурацию. . Думая о планировке, я сделала все возможное, чтобы каждый сантиметр был функциональным. Именно поэтому стена между спальней и кабинетом имеет такую сложную конфигурацию. Благодаря этому решению в спальне появились два встроенных шкафа симметрично слева и справа от изголовья кровати, а стол в кабинете удалось разместить в нише, увеличив полезную площадь небольшого помещения, что позволило поставить там раскладной диван, на тот случай, если понадобится оставить ночевать засидевшихся гостей. . Вход в ванную комнату мы разместили в прихожей, но его не так просто заметить, поскольку дверь оформлена зеркалом в размер дверного полотна, а по периметру вместо наличников установен деревянный багет. Так что, если бы не дверная ручка, можно было бы просто подумать, что это просто большое зеркало в прихожей. . Оформление этой квартиры строилось на трех главных принципах - светлые оттенки, натуральные материалы, оригинальные или авторские предметы мебели. Радоваться каждому дню, путешествовать и чувствовать себя свободной - все это не пустые слова, а главные жизненные ценности хозяйки, которая много времени провела в Европе, любит путешествовать, увлекается искусством и любит читать. Иногда ей приходится работать дома, так что одну из комнат было решено отвести под кабинет. . Проект опубликован в AD Russia, декабрь 2015
Другие фотографии в проекте
Вопросы к фото 0
Задайте вопрос
Вам ответят эксперты. Пришлем уведомление, когда вам ответят




