
Вам ответят эксперты. Пришлем уведомление, когда вам ответят
Ремонт, Скандинавский, дизайн интерьера, лофт, проектирование, скандинавский стиль
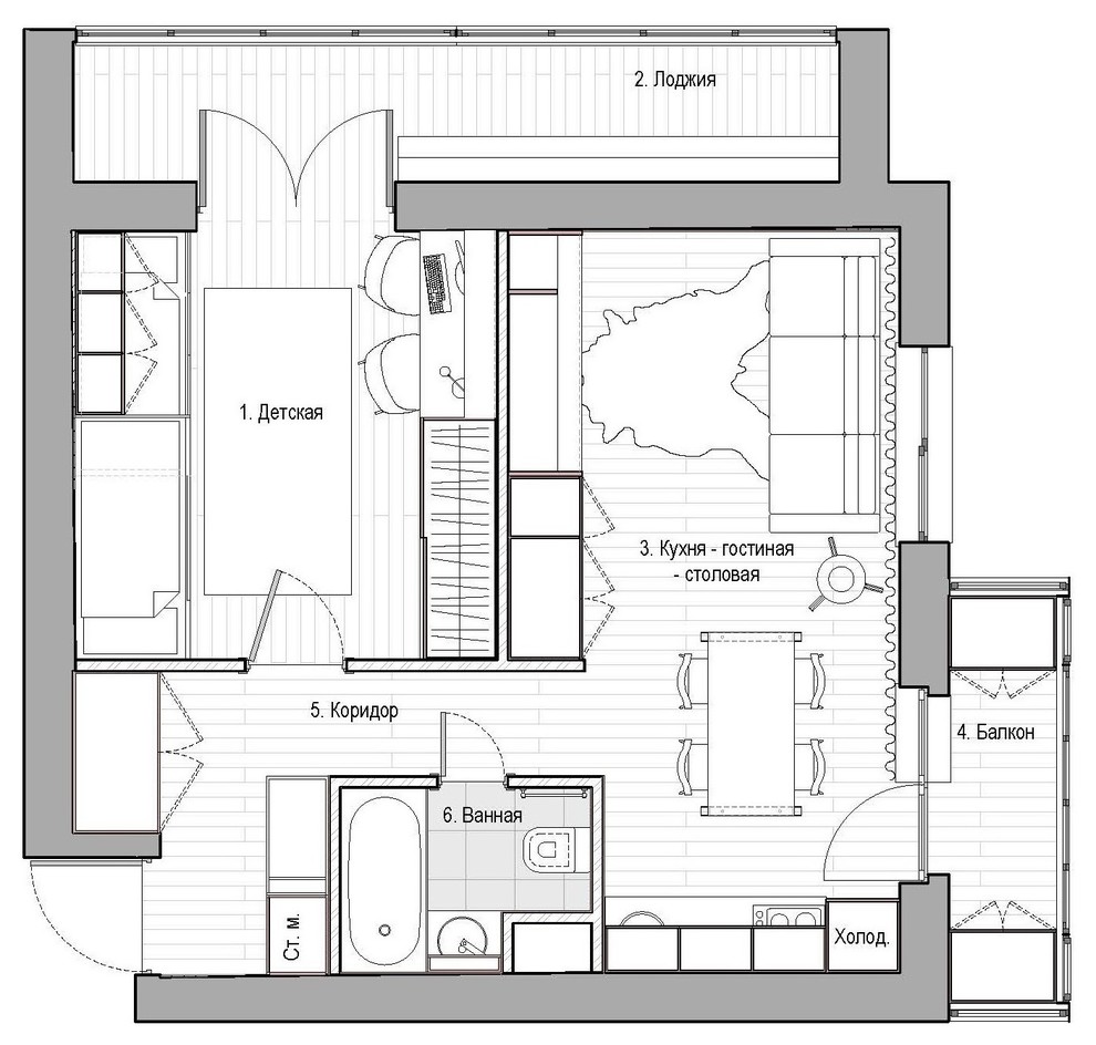
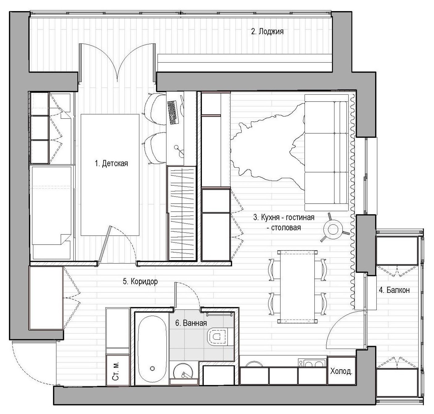
Перед архитектором стояла непростая задача – на площади 46 кв.м. создать современное и уютное пространство для семьи из 2 молодых родителей и 2 малышей (которых в процессе проектирования и реализации стало 3!). Обязательными условиями были наличие выделенной детской, удобной для сна, учебы и игр, а также большое количество мест хранения. . Выбор стиля был сделан в пользу лаконичного современного интерьера с элементами лофта. Этому решению полностью соответствуют используемые материалы: натуральные дубовые полы, клинкер и характерная плитка в с/у (под бетон и белый «кабанчик»). Белый и серый цвета стен также поддерживают выбранный стиль, перекликаются с цветами мебели и текстиля и придают спокойствие всему интерьеру. . Разноплановые светильники и led-подсветки в различных комбинациях позволяют изменять освещенность от яркой до интимной в зависимости от пожеланий заказчиков. Бытовая техника встраиваемая и не привлекающая к себе внимания – в кухне под мойкой разместилась компактная посудомоечная машина, а стиральная машина вынесена в шкаф в коридоре. . В процессе реализация лоджия была утеплена и присоединена к детской. В этом помещении появилась большая маркерная стена, а также разместились подвесные стеллажи для хранения. Все столярные изделия (кроме кухонного гарнитура) – индивидуального изготовления.