
Дизайнеры интерьера
4.91
·
11 отзывов
Квартира дизайнера
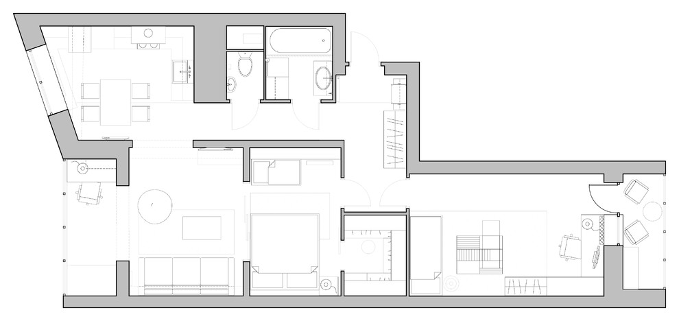
В своей квартире дизайнер Виктория Сайранова собрала элементы разных стилей. Основой стал нейтральный светло-серый фон, а жизни и красок добавили лаконичная современная мебель и предметы с уклоном в неоклассику. Индустриальные светильники, скандинавская детская и яркие акценты, которые переходят из одного помещения в другое — этот интерьер получился по-хорошему эклектичным.
Другие фотографии в проекте
Вопросы к фото 0
Задайте вопрос
Вам ответят эксперты. Пришлем уведомление, когда вам ответят




