
Дизайнеры интерьера
4.91
·
11 отзывов
Квартира дизайнера
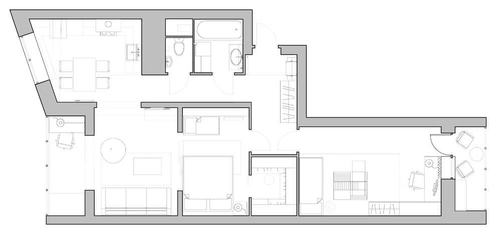
В своей квартире дизайнер Виктория Сайранова собрала элементы разных стилей. Основой стал нейтральный светло-серый фон, а жизни и красок добавили лаконичная современная мебель и предметы с уклоном в неоклассику. Индустриальные светильники, скандинавская детская и яркие акценты, которые переходят из одного помещения в другое — этот интерьер получился по-хорошему эклектичным.
Другие фотографии в проекте
Вопросы к фото 0
Задайте вопрос
Вам ответят эксперты. Пришлем уведомление, когда вам ответят
Белый, Входная дверь, Контемпорари, Москва, Однопольная дверь, Прихожая, Серый, дизайнера, квартира, проект, современный
Похожие фотографии

Таунхауз в Подмосковье
На фото: входная дверь среднего размера со шкафом для обуви в современном стиле с серыми стенами, полом из керамогранита, одностворчатой входной дверью, белой входной дверью, бежевым полом и панелями на стенах
Елизавета Клюева

Квартира-студия в ЖК «Западный порт», 38 кв.м.
Свежая идея для дизайна: маленькая входная дверь: освещение в современном стиле с серыми стенами, светлым паркетным полом, одностворчатой входной дверью, белой входной дверью и бежевым полом для на участке и в саду - отличное фото интерьера
Студия современного дизайна интерьера Royal Fusion

Квартира-студия в ЖК «Западный порт», 38 кв.м.
Стильный дизайн: маленькая входная дверь: освещение в современном стиле с серыми стенами, светлым паркетным полом, одностворчатой входной дверью, белой входной дверью и бежевым полом для на участке и в саду - последний тренд
Студия современного дизайна интерьера Royal Fusion

Квартира-студия в ЖК «Западный порт», 38 кв.м.
Пример оригинального дизайна: маленькая входная дверь в современном стиле с серыми стенами, светлым паркетным полом, одностворчатой входной дверью, белой входной дверью и бежевым полом для на участке и в саду
Студия современного дизайна интерьера Royal Fusion

Реализованный проект квартиры под сдачу в аренду 70 кв..м
На фото: входная дверь среднего размера: освещение в современном стиле с серыми стенами, полом из керамогранита, одностворчатой входной дверью, белой входной дверью, белым полом, многоуровневым потолком и обоями на стенах
Вера Откидач

Реализованный проект квартиры под сдачу в аренду 70 кв..м
Источник вдохновения для домашнего уюта: входная дверь среднего размера: освещение в современном стиле с серыми стенами, полом из керамогранита, одностворчатой входной дверью, белой входной дверью, белым полом, многоуровневым потолком и обоями на стенах
Вера Откидач

Ремонт с 0 в трёхкомнатной квартире под ключ
Источник вдохновения для домашнего уюта: входная дверь среднего размера со шкафом для обуви в современном стиле с серыми стенами, полом из ламината, одностворчатой входной дверью, белой входной дверью, бежевым полом и деревянными стенами
Студия Ремонтов

Современный ремонт однокомнатной квартиры
Свежая идея для дизайна: входная дверь среднего размера со шкафом для обуви в современном стиле с серыми стенами, полом из ламината, одностворчатой входной дверью, белой входной дверью, бежевым полом и обоями на стенах - отличное фото интерьера
Студия Ремонтов

Лаконичный ремонт 2х комнатной квартиры в новостройке
На фото: входная дверь среднего размера со шкафом для обуви в современном стиле с серыми стенами, полом из ламината, одностворчатой входной дверью, белой входной дверью и бежевым полом с
Студия Ремонтов

Квартира 70 квадратных метров
На фото: входная дверь среднего размера в современном стиле с серыми стенами, одностворчатой входной дверью и белой входной дверью с
Olya Polyakova

Квартира 70 квадратных метров
Источник вдохновения для домашнего уюта: входная дверь среднего размера в современном стиле с серыми стенами, одностворчатой входной дверью и белой входной дверью
Olya Polyakova

Квартира "Синяя птица"
Пример оригинального дизайна: входная дверь среднего размера со шкафом для обуви в современном стиле с серыми стенами, полом из керамогранита, одностворчатой входной дверью, белой входной дверью и серым полом
Olya Polyakova




