
Архитекторы
0
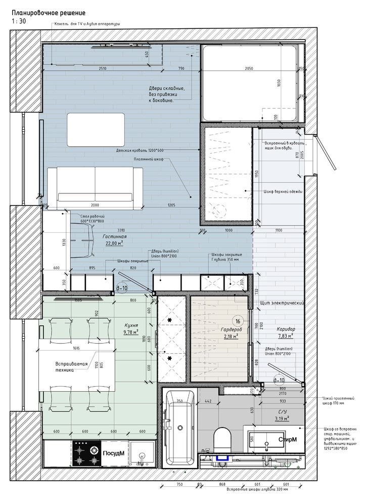
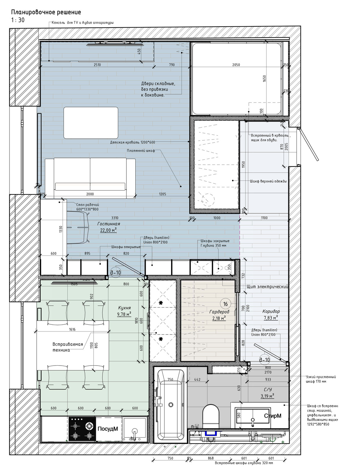
Квартира 46м2 на Ружейном проезде.
Квартира для молодой семьи. Максимально функционально спланированное пространство. Лаконичные формы, сдержанные фактуры.
Другие фотографии в проекте
Вопросы к фото 0
Задайте вопрос
Вам ответят эксперты. Пришлем уведомление, когда вам ответят




