
Архитекторы
0
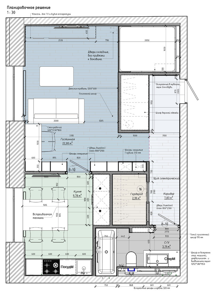
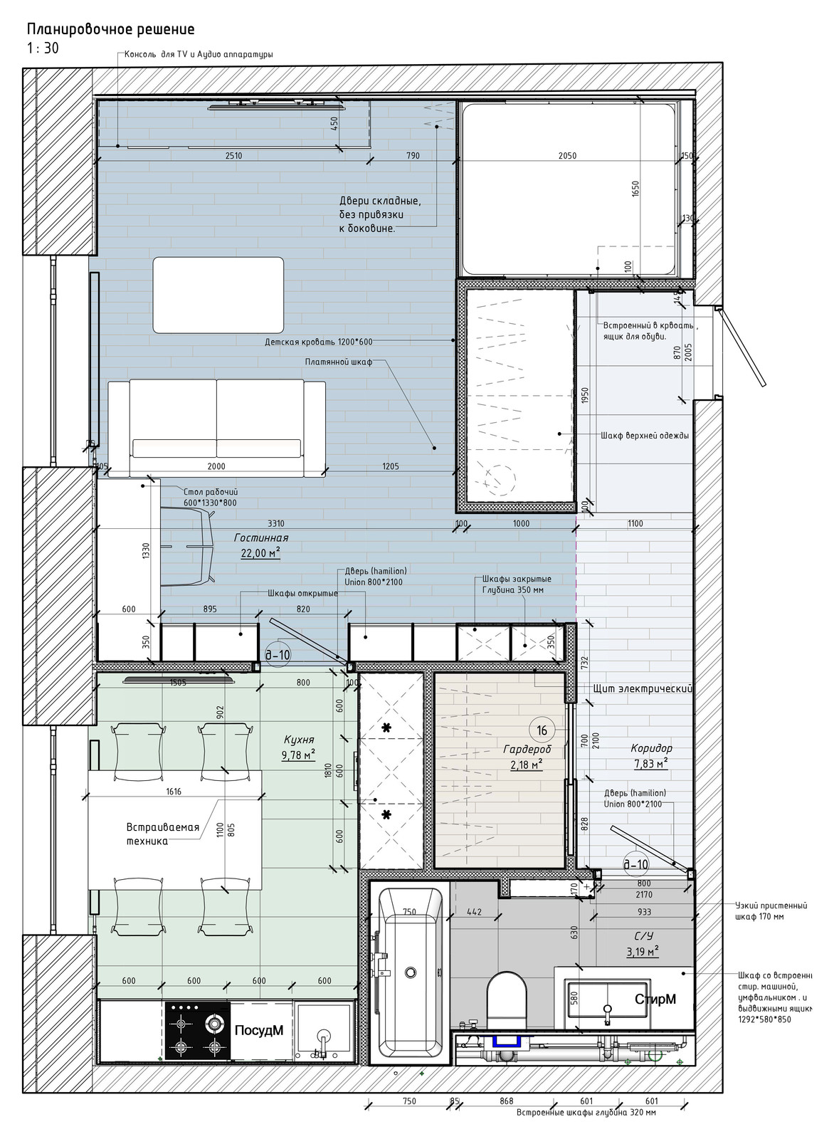
Квартира 46м2 на Ружейном проезде.
Квартира для молодой семьи. Максимально функционально спланированное пространство. Лаконичные формы, сдержанные фактуры.
Другие фотографии в проекте
Вопросы к фото 0
Задайте вопрос
Вам ответят эксперты. Пришлем уведомление, когда вам ответят
$$, Бежевый, Белая отделка, Белый, Встраиваемая, Г-образная кухня, Гладкий фасад, Деревянная отделка, Контемпорари, Кухня, Кухня-столовая, Ламинат, Маленький, Москва, Средняя паркетная доска, белая кухня, встроенная кухня, компактная кухня, кухня, кухня в скандинавском стиле, минимализм
Похожие фотографии

Sand & Snow
Стильный дизайн: маленькая угловая, светлая кухня в белых тонах с отделкой деревом в скандинавском стиле с обеденным столом, врезной мойкой, плоскими фасадами, белыми фасадами, деревянной столешницей, фартуком из дерева, белой техникой, полом из керамической плитки, бежевым полом и балками на потолке без острова для на участке и в саду - последний тренд
Наталья Захарова

Nobilia Flash
Идея дизайна: п-образная кухня-гостиная среднего размера, в белых тонах с отделкой деревом в современном стиле с врезной мойкой, плоскими фасадами, белыми фасадами, столешницей из ламината, коричневым фартуком, фартуком из дерева, белой техникой, паркетным полом среднего тона, островом, бежевым полом, коричневой столешницей и барной стойкой
Kitchen Concept

Квартира в ЖК "Две эпохи"
Стильный дизайн: маленькая угловая кухня в современном стиле с обеденным столом, врезной мойкой, плоскими фасадами, белыми фасадами, столешницей из акрилового камня, бежевым фартуком, фартуком из кварцевого агломерата, белой техникой, полом из керамогранита, островом, бежевым полом, бежевой столешницей, многоуровневым потолком и барной стойкой для на участке и в саду - последний тренд
Максим Максимов

Квартира в ЖК "Две эпохи"
Источник вдохновения для домашнего уюта: маленькая угловая кухня в современном стиле с обеденным столом, врезной мойкой, плоскими фасадами, белыми фасадами, столешницей из акрилового камня, бежевым фартуком, фартуком из кварцевого агломерата, белой техникой, полом из керамогранита, островом, бежевым полом, бежевой столешницей, многоуровневым потолком и барной стойкой для на участке и в саду
Максим Максимов

Квартира в ЖК "Две эпохи"
Свежая идея для дизайна: маленькая угловая кухня в современном стиле с обеденным столом, врезной мойкой, плоскими фасадами, белыми фасадами, столешницей из акрилового камня, бежевым фартуком, фартуком из кварцевого агломерата, белой техникой, полом из керамогранита, островом, бежевым полом, бежевой столешницей, многоуровневым потолком и барной стойкой для на участке и в саду - отличное фото интерьера
Максим Максимов

Квартира в ЖК "Две эпохи"
Стильный дизайн: маленькая угловая кухня в современном стиле с обеденным столом, врезной мойкой, плоскими фасадами, белыми фасадами, столешницей из акрилового камня, бежевым фартуком, фартуком из кварцевого агломерата, белой техникой, полом из керамогранита, островом, бежевым полом, бежевой столешницей, многоуровневым потолком и барной стойкой для на участке и в саду - последний тренд
Максим Максимов

Квартира в ЖК "Две эпохи"
Источник вдохновения для домашнего уюта: маленькая угловая кухня в современном стиле с обеденным столом, врезной мойкой, плоскими фасадами, белыми фасадами, столешницей из акрилового камня, бежевым фартуком, фартуком из кварцевого агломерата, белой техникой, полом из керамогранита, островом, бежевым полом, бежевой столешницей, многоуровневым потолком и барной стойкой для на участке и в саду
Максим Максимов

Современный загородный дом для большой семьи
На фото: угловая кухня среднего размера в современном стиле с обеденным столом, врезной мойкой, плоскими фасадами, белыми фасадами, столешницей из акрилового камня, серым фартуком, фартуком из кварцевого агломерата, черной техникой, паркетным полом среднего тона, островом, бежевым полом, серой столешницей, деревянным потолком и двухцветным гарнитуром с
Максим Максимов

Реализованный дизайн проект квартиры ЖК "Театральный"
Источник вдохновения для домашнего уюта: угловая, светлая кухня среднего размера, в белых тонах с отделкой деревом в стиле неоклассика (современная классика) с обеденным столом, врезной мойкой, фасадами с выступающей филенкой, белыми фасадами, столешницей из ламината, коричневым фартуком, фартуком из дерева, техникой из нержавеющей стали, паркетным полом среднего тона, бежевым полом и коричневой столешницей без острова
Кристина Новожилова

Реализованный дизайн проект квартиры ЖК "Театральный"
Идея дизайна: угловая, светлая кухня среднего размера, в белых тонах с отделкой деревом в стиле неоклассика (современная классика) с обеденным столом, врезной мойкой, фасадами с выступающей филенкой, белыми фасадами, столешницей из ламината, коричневым фартуком, фартуком из дерева, техникой из нержавеющей стали, паркетным полом среднего тона, бежевым полом и коричневой столешницей без острова
Кристина Новожилова

Реализованный дизайн проект квартиры ЖК "Театральный"
На фото: угловая, светлая кухня среднего размера, в белых тонах с отделкой деревом в стиле неоклассика (современная классика) с обеденным столом, врезной мойкой, фасадами с выступающей филенкой, белыми фасадами, столешницей из ламината, коричневым фартуком, фартуком из дерева, техникой из нержавеющей стали, паркетным полом среднего тона, бежевым полом и коричневой столешницей без острова с
Кристина Новожилова

Реализованный дизайн проект квартиры ЖК "Театральный"
На фото: угловая, светлая кухня среднего размера, в белых тонах с отделкой деревом в стиле неоклассика (современная классика) с обеденным столом, врезной мойкой, фасадами с выступающей филенкой, белыми фасадами, столешницей из ламината, коричневым фартуком, фартуком из дерева, техникой из нержавеющей стали, паркетным полом среднего тона, бежевым полом и коричневой столешницей без острова
Кристина Новожилова




