
Вам ответят эксперты. Пришлем уведомление, когда вам ответят
Рустика, Санкт-Петербург
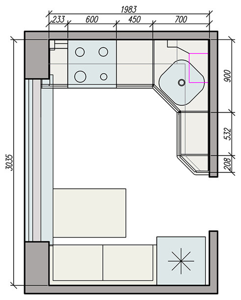
Задача: Проект расстановки мебели и бытовой техники на кухне. . Условия: На кухне необходимо разместить газовую варочную панель 60х60, духовку 60х60, газовую колонку, микроволновую печь, холодильник, стол и диван, организовать места хранения. . Сложности: маленькая площадь кухни - всего 6 кв.м., в одном углу кухни расположена газовая труба, в другом углу газовая колонка. . Решение: Г-образная планировка. За счет уменьшения глубины столешницы по правой стороне в помещении достаточно просторно, при этом удалось разместить максимум мест хранения и микроволновку. . Из-за расположения газовой трубы установить стандартную бутылочницу слева от духовки было не возможно. Возникла идея сделать выкатную тумбу нестандартной ширины и глубины. Тумба выкатывается полностью, что позволяет эффективно использовать внутреннее пространство и обеспечить доступ к коммуникациям. . Газовая колонка закрыта фасадами и не привлекает внимания. . Нишу под подоконником можно использовать для хранения сковородок и т.п. . В цокольных ящиках организованы дополнительные места хранения.