
• Коттедж 110м2. вблизи дер. Колонтаево, Ногинского района
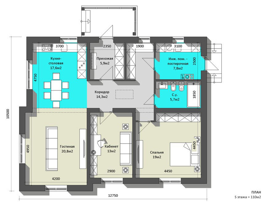
Выполнен индивидуальный проект одноэтажного коттеджа вблизи дер. Колонтаево, Ногинского района, Московской обл. . . Общая площадь здания - 110м2. . . Проект выполнен в срок с декабря 2015г. по февраль 2016г. . . . . Архитектурно-планировочные решения: . . Размеры в осях - 12 х 9,7м. . . Высота потолков 1 этажа - 3м. . . Конструктивные решения: . . Фундамент - утепленная шведская плита (УШП). . . Стены и перегородки - кладка из газобетонных блоков. Наружные стены с утеплением. . . Отделка фасадов - декоративная штукатурка "мокрый фасад", декоративный облицовочный камень. . . Чердачное перекрытие - деревянное, утепленное. . . Крыша - деревянная стропильная система. Чердак холодный. Покрытие кровли - битумная черепица. . . . . Стадии: ЭП, РП . . Разделы: АР, КР
Другие фотографии в проекте
Вопросы к фото 0
Задайте вопрос
Вам ответят эксперты. Пришлем уведомление, когда вам ответят



