
Дизайнеры интерьера
5
·
10 отзывов
Inspired by Landscape
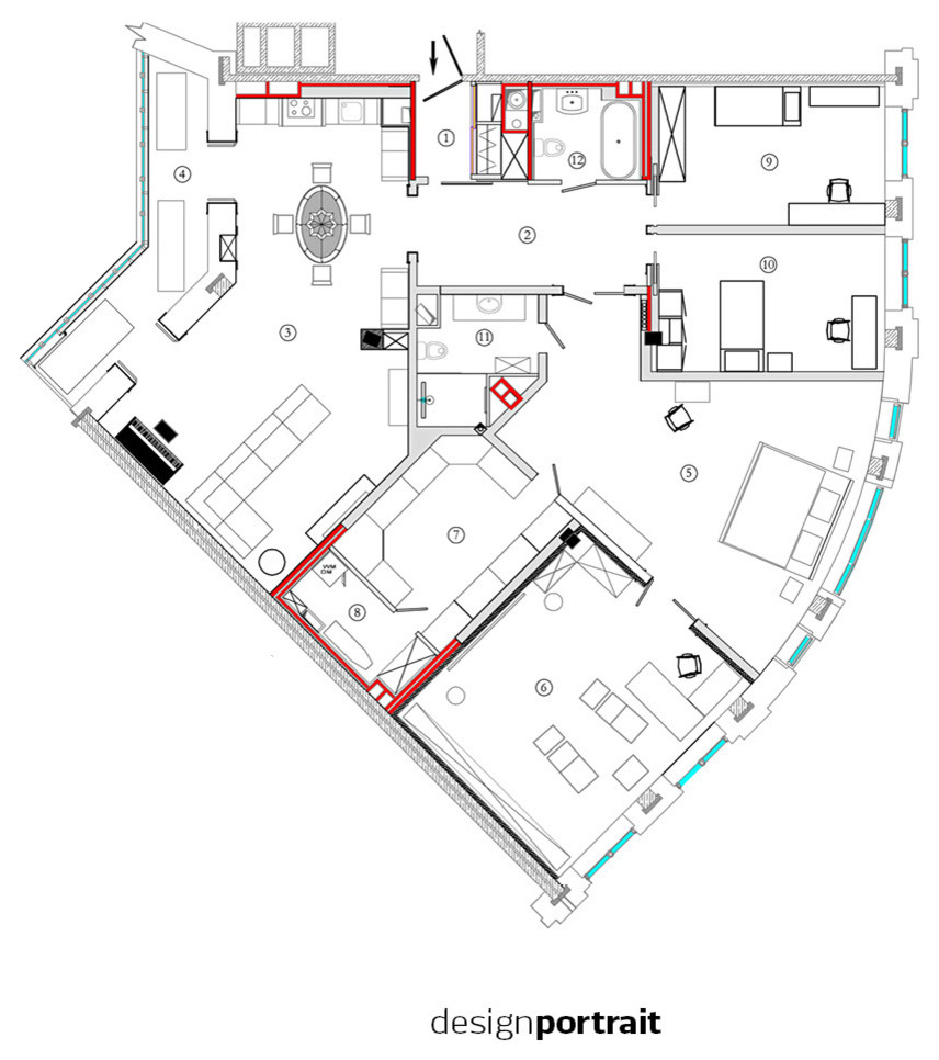
After re-planning . Totally isolated parent’s zone, which included bedroom, bathroom, large cloakroom, study and laundry; nevertheless, the bedroom is not far away from the nurseries. The two latter ones were planned to have a direct approach to the kitchen-living room, where all the family was going to spend most of the daytime. The customers did not need the third bathroom, so there was a chance to arrange there a laundry room. . . The windows to the Southwest (in the kitchen-living room on the new plan) I suggested to turn into doors with high venetian blinds. In this case the terrace, heated and open, could be used as a mini gym since it has enough room for some training equipment. . . The central location of the cloakroom in my plan allowed mounting all the equipment for ventilation under its lowered ceiling. Without any loss of height in the neighboring rooms (kitchen-living room, bedroom, study), there was enough to have ventilation grids in the walls. To the nurseries, the ventilation tubes could be built into the body of walls. . The air conditioning was necessary only in the bedroom. To avoid an air condition box on the wall, I suggested a combined system of air conditioning and ventilation with the use of a common grid for both. . In red the walls are shown, which were not demounted. . . My customers accepted this plan with no further changes so we could immediately send the documents for endorsement (November 2010). In Russia this process takes years, so we got the documents back only in January 2012.
Другие фотографии в проекте
Вопросы к фото 0
Задайте вопрос
Вам ответят эксперты. Пришлем уведомление, когда вам ответят




