logo
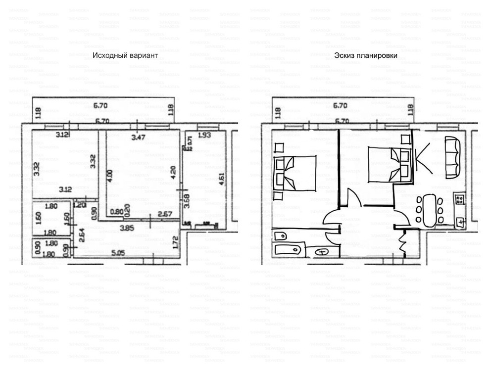
Идеи перепланировки для двухкомнатных квартир

Другие фотографии в проекте Идеи перепланировки для двухкомнатных квартир

Идеи перепланировки для двухкомнатных квартир
Идеи перепланировки для двухкомнатных квартир
Идеи перепланировки для двухкомнатных квартир
Идеи перепланировки для двухкомнатных квартир
Идеи перепланировки для двухкомнатных квартир

Вопросы к фото 0

Задайте вопрос

Вам ответят эксперты. Пришлем уведомление, когда вам ответят