
Дизайнеры интерьера
4.93
·
15 отзывов
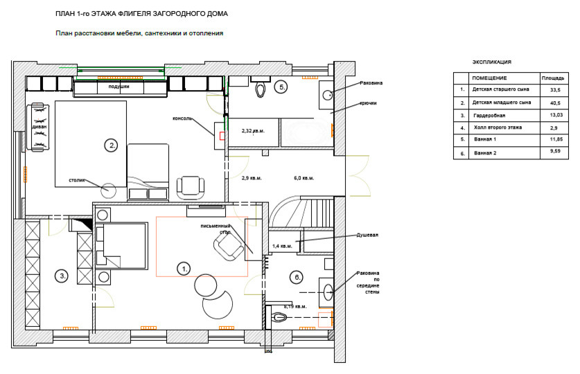
Яркий флигель - территория детей
Семья заказчицы - большая, динамичная, любящая путешествия и новые впечатления - нуждалась в расширении их загородного дома. Было решено пристроить к дому отдельный флигель, где дети на своей территории могли бы принимать гостей. Интерьер дома мы сделали ярким, насыщенным деталями, разными фактурами и узорами, чтобы и находясь дома, дети и хозяйка не скучали.
Другие фотографии в проекте
Вопросы к фото 0
Задайте вопрос
Вам ответят эксперты. Пришлем уведомление, когда вам ответят




