
Дизайнеры интерьера
0
Я ЧУВСТВУЮ ТВОЮ УЛЫБКУ
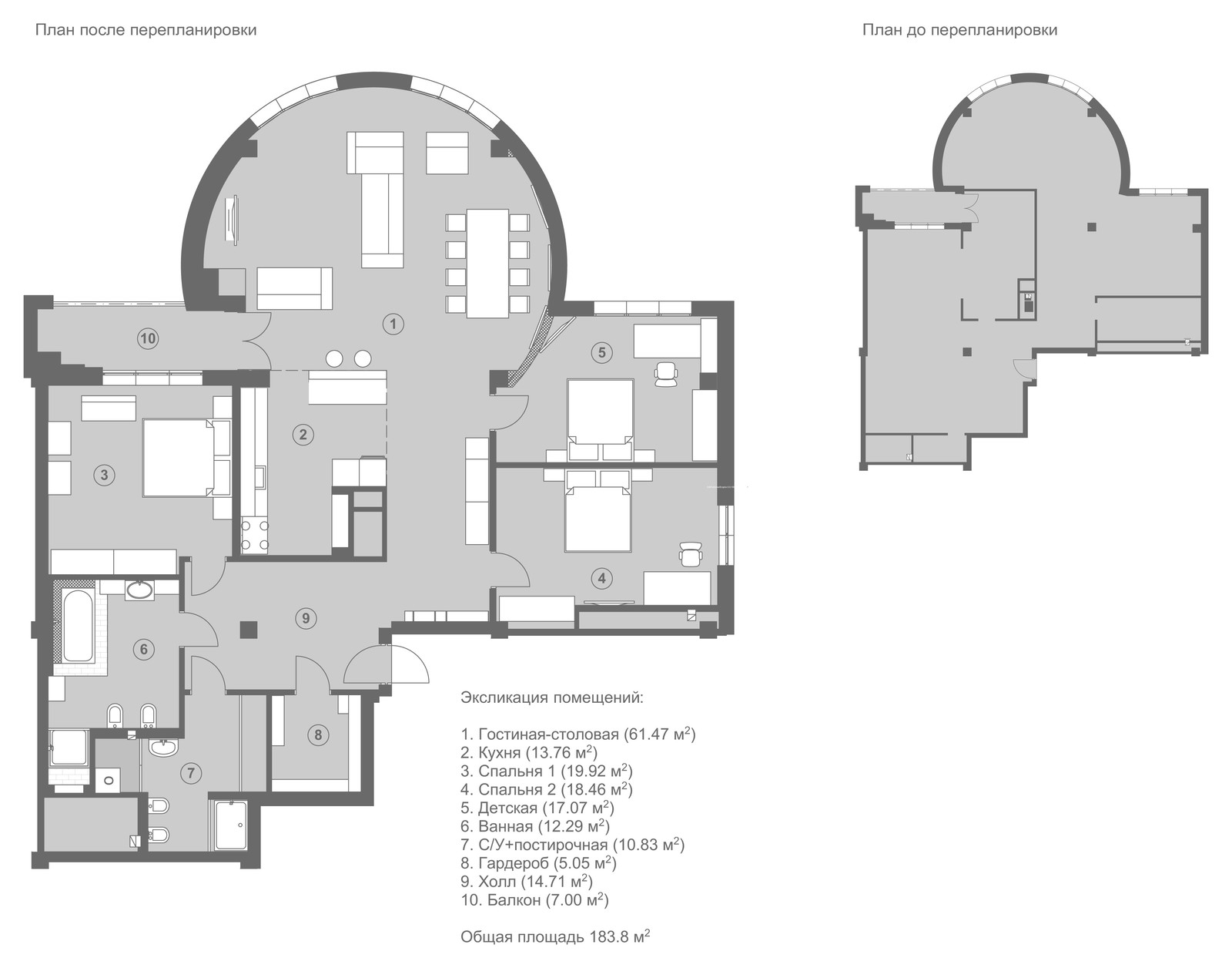
Это история о старых воспоминаниях и новых страстях и желаниях. Нелегко было отыскать квартиру среди новостроек с таким великолепным видом – на Собор Успения Пресвятой Девы Марии, постройки XVIII века. Поэтому уважение к традициям окружающей архитектуры и стало лейтмотивом авторской идеи . Акцентируя на минимализме, атмосферу гостиной создают чистые линии дизайна светильников и тотальная белизна кухни. Однако на стержень основной идеи нанизаны кольца времен: зеркало ванной — точная копия средневековой флейты, ироничный светильник в прихожей в форме лампочки Ильича, ангел, восседающий на перилах балкона, эталон немецкого функционализма Bulthaup на фоне «столетней» стены. . Главную роль в организации планировки здесь играет жизненный сценарий хозяев дома. Огромные пространства холла, спален, гостиной предназначены для жизни, полной самой жизни, движения и настоящей любви. И это чувствуется. .
Другие фотографии в проекте
Вопросы к фото 0
Задайте вопрос
Вам ответят эксперты. Пришлем уведомление, когда вам ответят
Похожие фотографии

Apartments Neva Towers 1
Пример оригинального дизайна: гостиная комната среднего размера в современном стиле с бежевыми стенами, светлым паркетным полом, бежевым полом, многоуровневым потолком, панелями на части стены и акцентной стеной
Вадим Мартынов Екатерина Гатилова

Частная резиденция DRR
Свежая идея для дизайна: идея дизайна в современном стиле - отличное фото интерьера
Portner Architects

Вавилова 4
Стильный дизайн: гостиная комната в стиле неоклассика (современная классика) - последний тренд
Ира Носова

FESTIVAL FLAT
Пример оригинального дизайна: открытая, объединенная гостиная комната среднего размера, в белых тонах с отделкой деревом в современном стиле с белыми стенами, паркетным полом среднего тона, мультимедийным центром и коричневым полом
Екатерина

Гостиная
Пример оригинального дизайна: гостиная комната в современном стиле с коричневым диваном, паркетным полом среднего тона и потолком из вагонки без камина
Александра Протасова

Квартира ул Тверская
На фото: гостиная комната в стиле неоклассика (современная классика) с белыми стенами и многоуровневым потолком с
Олег Михайлов архитектор-дизайнер

Пентхаус в Краснодаре
На фото: идея дизайна в современном стиле с
Денис Мурый

Квартира в Палевском жилмассиве
Идея дизайна: открытая, объединенная гостиная комната среднего размера в скандинавском стиле с белыми стенами, полом из винила, коричневым полом и кирпичными стенами без телевизора
Дмитрий Дубровский

Зал
Источник вдохновения для домашнего уюта: гостиная комната в современном стиле с бежевыми стенами, светлым паркетным полом и бежевым полом
Дмитрий Галаганов

Квартира в ЖК "Василеостровский квартал"
Пример оригинального дизайна: гостиная комната в современном стиле с паркетным полом среднего тона и коричневым полом
Екатерина Савенко

Дом, умный дом(фотографии спальни)
Источник вдохновения для домашнего уюта: идея дизайна в современном стиле
Архитектурная студия Астар проект

Гостиная
Свежая идея для дизайна: маленькая открытая, объединенная гостиная комната в современном стиле с серыми стенами и серым полом без телевизора для на участке и в саду - отличное фото интерьера
Ольга Васильева




