
Архитекторы
5
·
10 отзывов
Grunwald
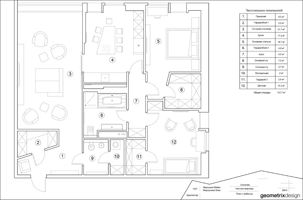
Когда делаешь квартиру заказчику, который полностью тебе доверяет, сталкиваешься только с одной проблемой: ты не ограничен рамками и можешь делать, что угодно. В перспективе это звучит потрясающе. Но важно определиться, чего же хочется видеть больше всего: смелые цветовые решения, брутальность, интересные архитектурные решения, игры с материалами, а может всё вместе… . Заказчик любит монохром, бетон, красивую и удобную мебель и игры с пространством и светом, вот из этих ингредиентов мы и решили делать идеальный коктейль. Получился брутальный интерьер с ироничными акцентами. . Так основа осталась монохромной, это позволило сместить акценты на мебель и световые сценарии. Зону прихожей отделяет от зоны гостиной зеркальный объём, на самом деле в нём заключён гардероб, и решение с зеркалами позволило визуально сохранить (и даже расширить) объём гостиной и при этом замаскировать целое помещение. . Гостиная построена на контрасте материалов и цветов: брутальный бетон и мягкий оттенок дуба, монохром и яркие ироничные цветовые акценты на мебели. В квартире нет привычных белых потолков, мы пошли другим путём : оставили бетон и выкрасили необходимые опуски в глубокий графитовый цвет. А запотолочная подсветка смягчает этот контраст и позволяет играть с настроением интерьера, а трековая система основного освещения подчёркивает брутальность потолка. . На стене неоновый светильник по нашим эскизам: каждая геометрическая фигура символизирует члена семьи. . Кухня чётко поделена на 2 зоны за счёт цвета: в чёрной зоне растворена рабочая поверхность столешницы и навесные шкафы, белая отдана барной стойке, выполненной по нашему эскизу и колоннам . . Здесь так же много световых сценарием: есть мягкая запотолочная подсветка, rgb-подсветка барной стойки, подсветка рабочей поверхности, трековая система, и мягкая подсветка настенных светильников . Здесь же в чёрной части кухни спрятана дверь, ведущая в приватную часть квартиры. За ней находится основная спальня, детская и основной санузел. В спальне также выстроен контраст материалов: бетон соседствует с дубом на стене, высокая спинка кровати и мягкий свет подвесных светильников добавляют уюта помещению, а за зеркальным объёмом спрятан гардероб. . Основной санузел выполнен в строгих чёрно-белых тонах, здесь белый керамогранит соседствует с плиткой под сланец. А вот гостевой санузел весьма ироничен: одна из стен заклеена обоями с коллажом из работ скандального фотографа ЛаШапеля, которые можно рассматривать бесконечно, остальные стены отделаны мягкими панелями из эко-кожи. .
Другие фотографии в проекте
Вопросы к фото 0
Задайте вопрос
Вам ответят эксперты. Пришлем уведомление, когда вам ответят




