Другие фотографии в проекте Голицыно: реализация
Ещё 10 фото
Сначала новые
Вам ответят эксперты. Пришлем уведомление, когда вам ответят
Калининград, Традиционный, брус, брусовой дом, дача, дом, клееный бус, коттедж, скандинавский
Юрий Скороходов
Архитекторы
11
отзывов
4.55
Рейтинг
Традиционный
Калининград
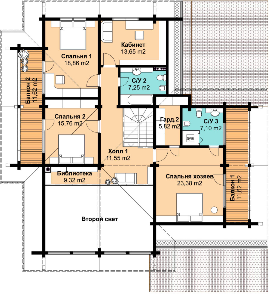
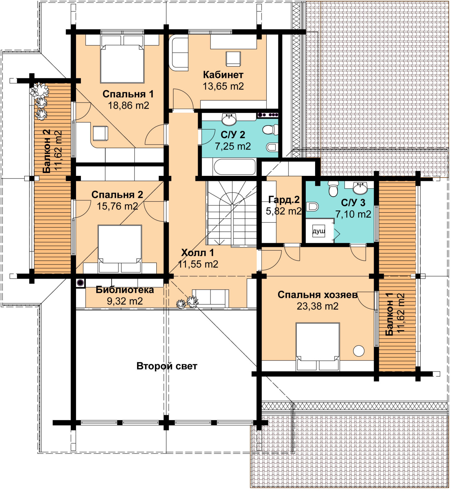
Плен 2-го этажа