Голицыно: реализация
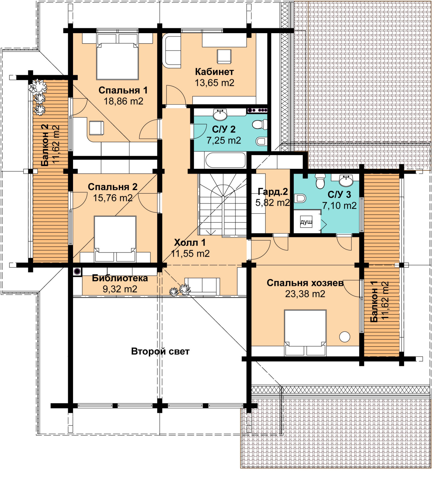
В стиле старой дачи. . Отправной точкой для проектирования этого функционального и красивого двухэтажного дома площадью 278 м2, возведенного из елового бруса, стало желание заказчика время от времени полностью менять обстановку городской квартиры и офиса на отдых на природе. Эта идея продиктовала выбор участка для строительства в старом дачном поселке со сложившейся застройкой в тридцати километрах от Москвы по направлению Минского шоссе. Она также повлияла на архитектуру сооружения вплоть до каждой детали и интерьерный дизайн: обстановка каждой комнаты и виды из окна создают атмосферу уюта вдали от суеты. . . Исходные условия для проектирования были довольно сложными – относительно небольшой участок, в территорию которого требовалось вписать здание со всем необходимым функциональным наполнением, и многочисленные старые деревья, которые заказчик хотел сохранить. Старый ветхий деревянный дом, купленный вместе с участком, снесли. На его месте предстояло возвести современное строение, не противоречащее окружающей застройке своим внешним видом и соответствующее ландшафтному контексту. . Заказчик хорошо представлял себе свое будущее жилище и даже предоставил архитектору подходящий пример, опубликованный в журнале «Деревянные Дома». Но та постройка не соответствовала условиям участка, поэтому индивидуальный проект был создан с нуля с сохранением дачной стилистики и понравившихся решений. . Компактный дом, близкий в плане к квадрату, размещен на территории участка так, что почти все существующие деревья удалось сохранить. Ели и березы подступают почти к самым стенам, укрывая дом от непогоды и создавая неразрывное единство архитектуры и природы. Цветовая палитра проекта гармонирует с красками леса. Естественный оттенок деревянных фасадов, отделка цоколя натуральным камнем и черепичная крыша хорошо сочетаются с тонами хвои, древесной коры и опавших листьев. . Центральный объем двусветной гостиной перекрыт собственной двускатной крышей и подчеркнут панорамным остеклением. Тонкая графика белых оконных переплетов, выделяющихся на фоне стекла и стен из бруса, придала сооружению дачный характер с ностальгическими мотивами. . С двух сторон дом опоясывает широкая терраса с настилом из лиственницы. Одна ее часть используется как крытая веранда с садовой мебелью – идеальное место для чаепития на свежем воздухе. На второй установлена большая гидромассажная ванна – символ сибаритского времяпровождения вдалеке от мегаполиса. Резной рисунок ограждения террасы и балкона на втором этаже придает постройке легкость и изящество, полностью отвечая идее беззаботного отдыха. . Безусловным плюсом проекта стало то, что архитектору удалось добиться ощущения простора в доме и разместить в нем большое количество помещений, несмотря на стесненные условия участка. Интерьер развивается вокруг центрального холла с поворотной лестницей – в него попадаешь, минуя квадратную прихожую с гардеробными шкафами. Все помещения подчинены единой сетке размеров, и поэтому внутренняя организация дома получилась абсолютно логичной. . Гостиная и кухня-столовая представляют собой единое пространство с перетекающими друг в друга функциональными зонами. Большепролетный объем гостиной конструктивно усилен балкой, уложенной между уровнем первого и второго этажа. Она сохранила ощущение воздуха и света в огромном пространстве и стала элементом, подчеркивающим архитектонику интерьера. Из столовой можно выйти прямо на террасу через витражные стеклянные двери. . Помимо парадной дневной зоны на первом этаже размещена спальня для пожилых родителей хозяина, санузел с душевой кабиной, постирочная, кладовая и техническое помещение. Наверху в мансарде холл со вторым светом продолжается библиотекой: в проекте рационально используется каждый метр свободной площади. Блок главной, хозяйской спальни включает в себя ванную, гардеробную и балкон, с которого открывается красивый вид на лесной пейзаж. На оставшейся части этажа находятся еще две спальни с общим балконом, второй санузел и кабинет. . В оформлении интерьеров обаяние светлого деревянного дома было расцвечено яркими акцентами. В гостиной современный камин с простой лаконичной геометрией композиционно объединен с открытыми книжными полками. Пестрота книжных переплетов оживляет пространство со строгими формами и линиями, выделяясь на фоне слегка выбеленных стен. Группа мягкой мебели, в обивке которой сочетается темно-коричневая натуральная кожа и бархатистая ткань с серебряным блеском, образует уютную зону отдыха рядом с камином, широкий экран топки которого превращает игру языков пламени в увлекательное зрелище. . Базовое освещение гостиной выполнено почти незаметным - галогенные светильники, смонтированные на деревянных балках, почти не бросаются в глаза. Но центральная люстра сразу же привлекает к себе внимание. Состоящая из шести ярко-оранжевых конусов, она напоминает волшебный цветок или неопознанный летающий объект, заглянувший на огонек затерянной в лесах дачи. . Мощная энергетика оранжевого цвета, который, как известно, дарит хорошее настроение, переходит из гостиной на кухню с П-образной конфигурацией рабочей зоны. Сияющие глянцевые мебельные фасады апельсинового оттенка вместе со встроенной бытовой техникой производят впечатление художественной инсталляции. Менее глубокие шкафы над столешницей для контраста выполнены молочно-белыми – они противопоставлены фартуку, облицованному черной крупноформатной керамической плиткой вытянутой конфигурации. Участок с плитой и вытяжкой декорирован совершенно по-другому. Легкомысленный рисунок яркой разноцветной посуды на поверхности кафеля обыгрывает дачную тему. . Столовая со скромной деревянной мебелью в стиле ретро украшена яркими картинами и аксессуарами. Четыре люстры с черными абажурами придают законченность ее композиции. . Стиль оформления жилых комнат в мансарде можно охарактеризовать как «уютный минимализм». Площадь кабинета зрительно расширяет зеркальный фасад шкафа, изготовленного индивидуально специально под параметры помещения. Эргономичное рабочее место у окна с балконом вносит в цветовую гамму интерьера, где преобладают естественные тона натурального дерева, яркие акценты. Ритм спальни с высоким скошенным потолком задает ряд светильников с массивными цилиндрическими абажурами, почти не отличающимися по цвету от еловых выбеленных стен. . Санузлы сияют всеми цветами радуги, создавая настроение вечного лета и праздника. Поскольку присутствие дерева в их отделке сведено к минимуму, у дизайнера была возможность ничем не ограничивать полет своей фантазии. Глубокий синий, солнечный желтый, ярко-красный, травянисто-зеленый – все эти чистые, открытые цвета прекрасно работают вместе с флористическими орнаментами.
18 фотографий


















