
Дизайнеры интерьера
0
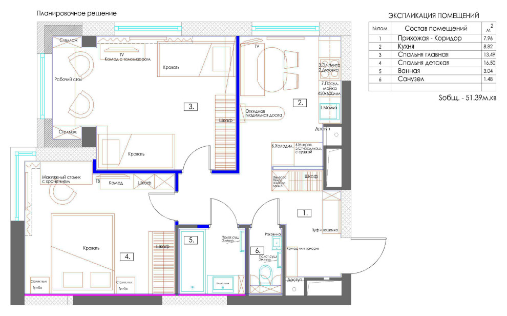
г.Одинцово, ЖК Клубничное поле, д.1. Квартира 52м.кв.
Планировочное решение квартиры
Другие фотографии в проекте
Вопросы к фото 0
Задайте вопрос
Вам ответят эксперты. Пришлем уведомление, когда вам ответят

Дизайнеры интерьера
0
Планировочное решение квартиры
Другие фотографии в проекте
Вам ответят эксперты. Пришлем уведомление, когда вам ответят