Кухни
Ванные комнаты
Туалеты
Спальни
Гостиные
Семейные комнаты
Столовые
Домашние кинотеатры
Экстерьеры
Балконы и лоджии
Террасы
Застекленные террасы
Сады
Дворы
Веранды
Бассейны
Детские комнаты
Комнаты для малышей
Кабинеты
Гардеробные
Дома
Фасады домов
Прихожие
Коридоры
Лестницы
Подвалы
Гаражи
Хозпостройки
Домашние тренажерные залы
Прачечные
Винные погреба
Домашние бары
Отели
Рестораны
Офисы
Бани

Дом на склоне
Порто Хели, Греция.
Дмитрий Холодок

Дом на склоне
Порто Хели, Греция.
Дмитрий Холодок

Многоквартирный жилой дом
Дом на 8 квартир 1500м2
Дмитрий Холодок

МУРИНО 2
«Мурино» – проект дома из пеноблоков небольшого размера, который можно смело отнести к проектам загородных домов эконом класса. В то же время, он вполне комфортабелен по современным меркам. В доме две большие спальни (одна – с выходом на балкон), просторные гостиная с кухней-столовой и два санузла (на первом этаже небольшой – помыть руки после работы в саду, на втором – просторный, с ванной), – достойный набор для удобного проживания небольшой семьи. . Открытая арка, соединяющая гостиную с кухней-столовой, создает единое структурированное пространство, зрительно расширяя объем и делая его более выразительным. . Внешне дом из пеноблоков «Мурино», несмотря на конструктивную простоту, выглядит очень ладным и гармоничным. Его облик украшает фонарь над главным фасадом, увеличивающий объем спальни и делающий ее более светлой. Недорогая наружная отделка может заключаться в штукатурке стен, возможна также обкладка дома облицовочным кирпичом, но для этого нужно предусмотреть более широкий фундамент. . С проектом дома эконом класса «Мурино» идейно близки проекты небольших домов из блоков «Миллирово» и «Услада». Следом по размеру и комфортабельности идут «Разметелево» и «Макарово». . КРАТКО О ГЛАВНОМ . Площадь общая . 106,2 м. кв. . Размеры . 8.35 x 8.35 . Технология . Газобетон . . Кол-во комнат . Наличие гаража . нет . Срок строительства . 85 дн. . СТАНДАРТ . 1 679 000 руб. . гарантия 1 год . ОПТИМАЛ . 2 455 000 руб. . гарантия 2 года . ПОД КЛЮЧ . 3 260 000 руб. . гарантия 3 года . Рассрочка 0% . Кредит от 12.5% . Мат. капитал . . ЦЕНЫ И КОМПЛЕКТАЦИИ . Цена (руб.) . Количество дней . КОМЛЕКТАЦИЯ . 1 679 000 руб. . Срок: 90 дней . СТАНДАРТ . 2 455 000 руб. . Срок: 120 дней . ОПТИМАЛ . 3 260 000 руб. . Срок: 150 дней . ПОД КЛЮЧ . . Комплектация "Под ключ": . Фундамент Монолитный железобетонный ленточный. Опционально :Монолитная плита ; Утепленная шведская плита. Бетон м350;Арматура А3 D12 Подготовительные и земляные работы, геотекстиль, песчано-щебеночная подушка, закладные под коммуникации, опалубка, гидроизоляция, вязка арматурного каркаса . Наружные и несущие стены Наружные стены Газобетон(H+H, КЖБИ,Aeroc, СтройКомплект, ЕвроАэроБетон) 300мм D500, несущие внутренние 300мм, отсечная гидроизоляция Технониколь , армирование арматурой d8 (каждый 3-й ряд)Основание под газобетон - полнотелый кирпич М-150 Опционально: блоки 350/375/400 . Перегородки Газобетон(H+H, КЖБИ,Aeroc, СтройКомплект, ЕвроАэроБетон) 100мм D500 . Перекрытия Деревянные балки 100х200 из обрезного антисептированного пиломатериала; монтаж утеплителя Isover|Knauf; монтаж пароизоляционной пленки Изоспан; Опционально: монолитное железобетонное перекрытие: Бетон м350;Арматура А3 D12 . Армопояс, перемычки ж/б армопояс, ж/б оконные и дверные перемычки с использованием арматуры d10, d12 ,Бетион м300 . Кровля Отсечная гидроизоляция, мауэрлат брус 150х150мм, стропильная система доска 50х200мм, контробрешетка 50х50мм, обрешетка 25х150мм, металлочерепица Монтерей/Каскад(цвет на выбор), доборные элементы, (обработка всех деревянных частей огне-биозащитой) проход через кровлю дымоходной трубы(утепление, герметизация) монтаж утеплителя Isover|Knauf; монтаж пароизоляционной пленки Изоспан; Опционально: Кровельный материал на выбор-Мягкая черепица;Керамическая черепица;Сланцевая черепица;Композитная черепица;Натуральная черепица;Фальцевая кровля;Медная кровля;Цементно-песчаная черепица;Ондулин Производители:Braas,Балтик Тайл,Shinglas,Katepal,Icopal,Ruuki,Roben,Luxard и пр. . ЭЛЕМЕНТЫ . Лестница Деревянная межэтажная лестница лево / правозаходная; колонна и уголки крепления ступеней к тетивам — сталь; ступени, опорные и заходные столбы, тетивы, поручни и балясины, облицовочные втулки — древесина (сосна) Опционально: монолитная железобетонная, металлическая, кованная . Водосточная система Монтажный комплект: желоба подвесные; желоба подвесные угловые; заглушки для желоба; трубы; колена угловые; воронки водосборные; отметы; держатели желобов; держатели труб; крепеж . Карнизы Подшивка свесов и карнизов кровля сухим строганным обрезным пиломатериалом с вентиляционным зазором. Нанесение краски Tikkurila 2 слоя Опционально: материал подшивки на выбор . Окна "Двухкамерный стеклопакет Rehau :Системная глубина/число камер: 70 мм/многокамерная . Теплоизоляция: Rопр =0,71м2°С/Вт. . Взломобезопасность: установка усиленных приборов запирания благодаря смещению оси приборного паза 13 мм. . Воздухо- и водонепроницаемость: надежная защита от сквозняков, пыли и воды ,2 контура уплотнения (нахлест уплотнений по 7/8 мм внутри), фурнитура. . Опционально: Стеклопакет:Шумоизоляционный;Энергосберегающий; Ударопрочный; Тонированный; Солнцезащитный; Дополнительная комплектация: Детские замки; Москитные сетки; Шпросы." . Входные двери "TOREX Ultimatum Цвет фурнитуры: раздельного цвета, хром/латунь Замок основной . Blockido C1, 4-го класса взломостойкости Замок дополнительный . Blockido L3 сувальдного типа, 4-го класса взломостойкости;Противосъемные ригеля, двойной контур уплотнителя, металлический эксцентрик, глазок с металлической шторкой широкого угла обзора. . Порошково-полимерное покрытие . Цвет внешней отделки:Медный антик . Тип внутренней отделки:Панель MDF с покрытием Cortorex Цвет внутренней отделки: . Опционально: Видеоглазок;Тип внешней отделки" . Отделка наружная . Фасад Штукатурка фасадная влагостойкая, паропроницаемая(цвет на выбор); утеплитель минеральный Paroc: Плотность кг/м3 140 ;Теплопроводность, Вт/м°С 0,037 Опционально:материал отделки, толщина и тип утеплителя на выбор. . Цоколь Гидроизоляция цоколя.Фасадные панели с усиленными ребрами жесткости, ветро- и удароустойчивые, стойкие к деформациям натуральной фактуры. Опционально: материал отделки цоколя на выбор. . Отделка внутренняя . Полы Чистовая: монтаж ламината. Прихожая,сан.узлы плитка Опционально: материалы чистовой отделки на выбор. . Внутренние стены Чистовая: виниловые обои под покраску Опционально: материалы чистовой отделки на выбор. . Потолок Чистовая: монтаж натяжных потолков, в том числе влагостойких Опционально: материалы чистовой отделки на выбор. . Прочее Отделка откосов и установка подоконников; установка межкомнатных дверей . Инженерия . Электрика Электрика: монтаж распределительного щитка, установка автоматов, монтаж кабеля внутренней силовой сети, монтаж кабеля внутреннего освещения, установка приборов -розеток, выключателей в соответствии с проектом. . Отопление Монтаж распределительного коллектора системы отопления. Установка конвертов.Установка котельного оборудования в соответствии с проектом. Опционально: монтаж теплого пола, монтаж 2х-контурного котла . Водоснабжение Монтаж распределительных коллекторов систем ГВС и ХВС;Разводка систем ГВС и ХВС в помещениях с использованием ПВХ труб в соответствии с проектом. Опционально: установка насосного оборудования, автоматики,систем фильтрации. Бурение скважин. . Канализация Прокладка канализационных труб по дому. Опционально: монтаж автономной канализации . Бесплатные опции . Проект стадии АР Да . Поэтапная оплата Да . Определение места посадки дома на земельном участке с учетом норм и правил Да . Эскизы ландшафтного дизайна участка с генпланом застройки Да . Геологическое обследование грунтов Да . Внесение изменений в типовой проект дома Да . Экспресс-дизайн интерьеров дома Да . Эскизные проекты внутренних инженерных сетей Да . Уборка территории да . Дополнительные опции . Кредит Да . Ипотека Да . Страхование Да .
Реал Эстейт|Реал Загородный Дом

Баня Романа - рубленое бревно 380-420мм
Видео: https://youtu.be/lh8e_mtFIR8 . . Проект бани из рубленого бревна средний диаметр 400мм. . . Общая площадь - 155,6м2 . . Отличная баня для коммерческого использования. Есть отдельная кухня, комната отдыха, зона отдыха с бассейном, на втором этаже - бильярдный зал, топочная имеет отдельный вход, чтобы не тревожить гостей во время отдыха.
Андрей Липовка

Светодиодное архитектурное освещение загородного дома - пос. Медвежьи Озера
1. Общие данные . Настоящий рабочий проект разработан в соответствии с действующими нормами, правилами и стандартами. В данном проекте рассматривается система фасадного освещения индивидуального жилого дома, расположенного по адресу: Московская область, д. Медвежьи озера. . Проект разработан на основании утвержденного заказчиком светотехнического дизайн-проекта. Основные требования, предъявляемые к проекту - подчеркнуть характерные архитектурные особенности основного дома, создать целостный привлекательный вид объекта в темное время суток. Осветительная установка должна стать элементом общего дизайна здания, не нарушая архитектурной целостности объекта внешним видом оборудования и монтажных элементов, кроме того необходимо исключить попадание прямого света от источников установки в окна помещений. Применить преимущественно скрытое, встроенное, накладное световое оборудование компактных размеров. В качестве источников света (ИС) использовать наиболее энергоэкономичные по световой отдаче и сроку службы светодиодные ИС, европейского производства. . . 2. Осветительное оборудование . Световое оборудование, используемое на объекте, имеет современный дизайн, оснащается светодиодными источниками света. . Предлагаемое оборудование позволяет значительно снизить энергопотребление установки по сравнению с реализацией на традиционных источниках света. . Для реализации фасадного освещения предлагается использовать компактные светодиодные светильники, предназначенные для уличного применения (степень защиты не ниже IP44). Эффективный срок службы светодиодных ИС составляет 50 тысяч часов. . Общая расчетная потребляемая мощность световой установки составляет . 0,8 кВт. . . 3. Система управления освещением . . Система управления построена на применении обычных выключателей, подающих управляющую фазу на модульные контакторы, находящихся в щитах ЩО. Количество модульных контакторов соответствует количеству световых режимов. . Применяемые в проекте световые режимы: . 1. Дежурный режим . 2. Повседневный режим - включается путем добавления электрических групп освещения к дежурному режиму . 3. Праздничный режим - включается путем добавления электрических групп освещения к повседневному режиму . Так же предусмотрен режим Новогодней иллюминации, который реализуется подключением световых гирлянд к уличным розеткам, установленным для этой цели. . . . 4. Силовое электрооборудование. . Щиты наружного освещения ЩО монтируются на первом этаже рядом с ВРУ, предоставленным Заказчиком - в данном проекте не рассматривается. . Расчетная нагрузка наружного освещения дома составляет 0,8 кВт. . Питающие кабели, для электропитания светильников архитектурного освещения 220В, медные, расчетного сечения, марки ВВГнг-LS 3x1,5 мм². . Питающие кабели, для электропитания трансформаторов светильников архитектурного освещения 24В, медные, расчетного сечения, марки ВВГнг-LS 3x1,5 мм². . Сечение кабелей выбирается согласно расчетов сети 380-220В на основании ПУЭ и согласно кросс таблицам производителя. Изоляционные оболочки кабелей и проводов отвечают требованиям по нераспространению горения. . Кабельные линии прокладываются внутри домов в гофрированных ПНД трубах диаметром 20 мм по полу и потолку. Опуски и подъемы кабеля выполнить в штробах стен. Все электрические расключения производить в распределительных коробках, установленным в запотолочном пространстве и к которым необходимо иметь доступ для обслуживания, или в корпусах светильников. Все соединения выполнять при помощи соединительных, ответвительных зажимов или дополнительных контактов предусмотренных в используемом осветительном оборудовании и в распределительных коробках. Нулевой рабочий и нулевой защитный проводники не допускается подключать под общий контактный зажим. .
Светодизайнер Денис Николаев

Дом в Самарской области на берегу реки
Для многих жить на берегу реки в собственном доме – мечта… . В данном проекте нам посчастливилось помочь нашим клиентам воплотить мечту в . реальность. . В процессе работы нам всем пришлось преодолеть большое число проблем. “Плохие . грунты”, высокий весенний подъем воды и даже законодательство, вот неполный их . список. Но всё позади, и в скором времени хозяева по-настоящему насладятся жизнью в . собственном доме на берегу. . Стилистика дома продиктована небезызвестной фразой “quadratisch, praktisch, gut”*. . Это и отражается в экстерьере и интерьере. . В результате нашей общей работы мы получим просторную и комфортную “среду . обитания” для семьи, в которой найдется место и для шумных посиделок с друзьями, и . для посемейному уютных вечеров.
Александр Кофанов

Дом 2- этажный в стиле ЛОФТ
Самарина Елена

Разрабатывала дизайн дворцовых интерьеров и дизайн фасадов
Александра Наймушина

Дом 2- этажный в стиле ЛОФТ
Самарина Елена

Дом на склоне
Порто Хели, Греция.
Дмитрий Холодок

Многоквартирный жилой дом
Дом на 8 квартир 1500м2
Дмитрий Холодок

Расширение пивоварни в ресторане Карл и Фридрих
Михаил Приходько

Светодиодное архитектурное освещение загородного дома - пос. Медвежьи Озера
1. Общие данные . Настоящий рабочий проект разработан в соответствии с действующими нормами, правилами и стандартами. В данном проекте рассматривается система фасадного освещения индивидуального жилого дома, расположенного по адресу: Московская область, д. Медвежьи озера. . Проект разработан на основании утвержденного заказчиком светотехнического дизайн-проекта. Основные требования, предъявляемые к проекту - подчеркнуть характерные архитектурные особенности основного дома, создать целостный привлекательный вид объекта в темное время суток. Осветительная установка должна стать элементом общего дизайна здания, не нарушая архитектурной целостности объекта внешним видом оборудования и монтажных элементов, кроме того необходимо исключить попадание прямого света от источников установки в окна помещений. Применить преимущественно скрытое, встроенное, накладное световое оборудование компактных размеров. В качестве источников света (ИС) использовать наиболее энергоэкономичные по световой отдаче и сроку службы светодиодные ИС, европейского производства. . . 2. Осветительное оборудование . Световое оборудование, используемое на объекте, имеет современный дизайн, оснащается светодиодными источниками света. . Предлагаемое оборудование позволяет значительно снизить энергопотребление установки по сравнению с реализацией на традиционных источниках света. . Для реализации фасадного освещения предлагается использовать компактные светодиодные светильники, предназначенные для уличного применения (степень защиты не ниже IP44). Эффективный срок службы светодиодных ИС составляет 50 тысяч часов. . Общая расчетная потребляемая мощность световой установки составляет . 0,8 кВт. . . 3. Система управления освещением . . Система управления построена на применении обычных выключателей, подающих управляющую фазу на модульные контакторы, находящихся в щитах ЩО. Количество модульных контакторов соответствует количеству световых режимов. . Применяемые в проекте световые режимы: . 1. Дежурный режим . 2. Повседневный режим - включается путем добавления электрических групп освещения к дежурному режиму . 3. Праздничный режим - включается путем добавления электрических групп освещения к повседневному режиму . Так же предусмотрен режим Новогодней иллюминации, который реализуется подключением световых гирлянд к уличным розеткам, установленным для этой цели. . . . 4. Силовое электрооборудование. . Щиты наружного освещения ЩО монтируются на первом этаже рядом с ВРУ, предоставленным Заказчиком - в данном проекте не рассматривается. . Расчетная нагрузка наружного освещения дома составляет 0,8 кВт. . Питающие кабели, для электропитания светильников архитектурного освещения 220В, медные, расчетного сечения, марки ВВГнг-LS 3x1,5 мм². . Питающие кабели, для электропитания трансформаторов светильников архитектурного освещения 24В, медные, расчетного сечения, марки ВВГнг-LS 3x1,5 мм². . Сечение кабелей выбирается согласно расчетов сети 380-220В на основании ПУЭ и согласно кросс таблицам производителя. Изоляционные оболочки кабелей и проводов отвечают требованиям по нераспространению горения. . Кабельные линии прокладываются внутри домов в гофрированных ПНД трубах диаметром 20 мм по полу и потолку. Опуски и подъемы кабеля выполнить в штробах стен. Все электрические расключения производить в распределительных коробках, установленным в запотолочном пространстве и к которым необходимо иметь доступ для обслуживания, или в корпусах светильников. Все соединения выполнять при помощи соединительных, ответвительных зажимов или дополнительных контактов предусмотренных в используемом осветительном оборудовании и в распределительных коробках. Нулевой рабочий и нулевой защитный проводники не допускается подключать под общий контактный зажим. .
Светодизайнер Денис Николаев

Дом на склоне
Порто Хели, Греция.
Дмитрий Холодок

Садовый фасад
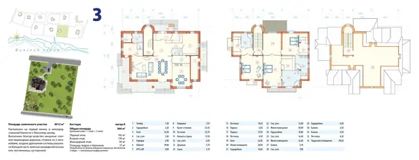
Правообладателем проекта является ГК Миллениум: https://ml-stroy.ru/Площадь 1 этажа с террасами . Площадь 2 этажа с балконом . Общая жилая площадь 184,5 м2 . Общая площадь дома 408,8 м2 . Усадьба с двумя флигелями, в которых размещаются гаражи, бойлерная, помещения прислуги, фитнес. .
Сергей Гаврилов

Многоквартирный жилой дом
Дом на 8 квартир 1500м2
Дмитрий Холодок

Баня из профилированного бруса 145 мм с чердачным этажом
Прожектстрой Егор

Многоквартирный жилой дом
Дом на 8 квартир 1500м2
Дмитрий Холодок

Дом на склоне
Порто Хели, Греция.
Дмитрий Холодок

Дом 2- этажный в стиле ЛОФТ
Самарина Елена

Баня Романа - рубленое бревно 380-420мм
Видео: https://youtu.be/lh8e_mtFIR8 . . Проект бани из рубленого бревна средний диаметр 400мм. . . Общая площадь - 155,6м2 . . Отличная баня для коммерческого использования. Есть отдельная кухня, комната отдыха, зона отдыха с бассейном, на втором этаже - бильярдный зал, топочная имеет отдельный вход, чтобы не тревожить гостей во время отдыха.
Андрей Липовка

Дом в Самарской области на берегу реки
Для многих жить на берегу реки в собственном доме – мечта… . В данном проекте нам посчастливилось помочь нашим клиентам воплотить мечту в . реальность. . В процессе работы нам всем пришлось преодолеть большое число проблем. “Плохие . грунты”, высокий весенний подъем воды и даже законодательство, вот неполный их . список. Но всё позади, и в скором времени хозяева по-настоящему насладятся жизнью в . собственном доме на берегу. . Стилистика дома продиктована небезызвестной фразой “quadratisch, praktisch, gut”*. . Это и отражается в экстерьере и интерьере. . В результате нашей общей работы мы получим просторную и комфортную “среду . обитания” для семьи, в которой найдется место и для шумных посиделок с друзьями, и . для посемейному уютных вечеров.
Александр Кофанов

Модульные дома
Дмитрий Малышев

Разрабатывала дизайн дворцовых интерьеров и дизайн фасадов
Александра Наймушина

Многоквартирный жилой дом
Дом на 8 квартир 1500м2
Дмитрий Холодок

Декор в саду. Наши работы прошлых лет.
Наталья Каменева

Дом 2- этажный в стиле ЛОФТ
Самарина Елена

Териоки клуб Дом 3
Дмитрий Холодок

Навесы в поселке Бенилюкс
Проект и воплощение летнего навеса на террасе
Сергей Гаврилов

МУРИНО 2
«Мурино» – проект дома из пеноблоков небольшого размера, который можно смело отнести к проектам загородных домов эконом класса. В то же время, он вполне комфортабелен по современным меркам. В доме две большие спальни (одна – с выходом на балкон), просторные гостиная с кухней-столовой и два санузла (на первом этаже небольшой – помыть руки после работы в саду, на втором – просторный, с ванной), – достойный набор для удобного проживания небольшой семьи. . Открытая арка, соединяющая гостиную с кухней-столовой, создает единое структурированное пространство, зрительно расширяя объем и делая его более выразительным. . Внешне дом из пеноблоков «Мурино», несмотря на конструктивную простоту, выглядит очень ладным и гармоничным. Его облик украшает фонарь над главным фасадом, увеличивающий объем спальни и делающий ее более светлой. Недорогая наружная отделка может заключаться в штукатурке стен, возможна также обкладка дома облицовочным кирпичом, но для этого нужно предусмотреть более широкий фундамент. . С проектом дома эконом класса «Мурино» идейно близки проекты небольших домов из блоков «Миллирово» и «Услада». Следом по размеру и комфортабельности идут «Разметелево» и «Макарово». . КРАТКО О ГЛАВНОМ . Площадь общая . 106,2 м. кв. . Размеры . 8.35 x 8.35 . Технология . Газобетон . . Кол-во комнат . Наличие гаража . нет . Срок строительства . 85 дн. . СТАНДАРТ . 1 679 000 руб. . гарантия 1 год . ОПТИМАЛ . 2 455 000 руб. . гарантия 2 года . ПОД КЛЮЧ . 3 260 000 руб. . гарантия 3 года . Рассрочка 0% . Кредит от 12.5% . Мат. капитал . . ЦЕНЫ И КОМПЛЕКТАЦИИ . Цена (руб.) . Количество дней . КОМЛЕКТАЦИЯ . 1 679 000 руб. . Срок: 90 дней . СТАНДАРТ . 2 455 000 руб. . Срок: 120 дней . ОПТИМАЛ . 3 260 000 руб. . Срок: 150 дней . ПОД КЛЮЧ . . Комплектация "Под ключ": . Фундамент Монолитный железобетонный ленточный. Опционально :Монолитная плита ; Утепленная шведская плита. Бетон м350;Арматура А3 D12 Подготовительные и земляные работы, геотекстиль, песчано-щебеночная подушка, закладные под коммуникации, опалубка, гидроизоляция, вязка арматурного каркаса . Наружные и несущие стены Наружные стены Газобетон(H+H, КЖБИ,Aeroc, СтройКомплект, ЕвроАэроБетон) 300мм D500, несущие внутренние 300мм, отсечная гидроизоляция Технониколь , армирование арматурой d8 (каждый 3-й ряд)Основание под газобетон - полнотелый кирпич М-150 Опционально: блоки 350/375/400 . Перегородки Газобетон(H+H, КЖБИ,Aeroc, СтройКомплект, ЕвроАэроБетон) 100мм D500 . Перекрытия Деревянные балки 100х200 из обрезного антисептированного пиломатериала; монтаж утеплителя Isover|Knauf; монтаж пароизоляционной пленки Изоспан; Опционально: монолитное железобетонное перекрытие: Бетон м350;Арматура А3 D12 . Армопояс, перемычки ж/б армопояс, ж/б оконные и дверные перемычки с использованием арматуры d10, d12 ,Бетион м300 . Кровля Отсечная гидроизоляция, мауэрлат брус 150х150мм, стропильная система доска 50х200мм, контробрешетка 50х50мм, обрешетка 25х150мм, металлочерепица Монтерей/Каскад(цвет на выбор), доборные элементы, (обработка всех деревянных частей огне-биозащитой) проход через кровлю дымоходной трубы(утепление, герметизация) монтаж утеплителя Isover|Knauf; монтаж пароизоляционной пленки Изоспан; Опционально: Кровельный материал на выбор-Мягкая черепица;Керамическая черепица;Сланцевая черепица;Композитная черепица;Натуральная черепица;Фальцевая кровля;Медная кровля;Цементно-песчаная черепица;Ондулин Производители:Braas,Балтик Тайл,Shinglas,Katepal,Icopal,Ruuki,Roben,Luxard и пр. . ЭЛЕМЕНТЫ . Лестница Деревянная межэтажная лестница лево / правозаходная; колонна и уголки крепления ступеней к тетивам — сталь; ступени, опорные и заходные столбы, тетивы, поручни и балясины, облицовочные втулки — древесина (сосна) Опционально: монолитная железобетонная, металлическая, кованная . Водосточная система Монтажный комплект: желоба подвесные; желоба подвесные угловые; заглушки для желоба; трубы; колена угловые; воронки водосборные; отметы; держатели желобов; держатели труб; крепеж . Карнизы Подшивка свесов и карнизов кровля сухим строганным обрезным пиломатериалом с вентиляционным зазором. Нанесение краски Tikkurila 2 слоя Опционально: материал подшивки на выбор . Окна "Двухкамерный стеклопакет Rehau :Системная глубина/число камер: 70 мм/многокамерная . Теплоизоляция: Rопр =0,71м2°С/Вт. . Взломобезопасность: установка усиленных приборов запирания благодаря смещению оси приборного паза 13 мм. . Воздухо- и водонепроницаемость: надежная защита от сквозняков, пыли и воды ,2 контура уплотнения (нахлест уплотнений по 7/8 мм внутри), фурнитура. . Опционально: Стеклопакет:Шумоизоляционный;Энергосберегающий; Ударопрочный; Тонированный; Солнцезащитный; Дополнительная комплектация: Детские замки; Москитные сетки; Шпросы." . Входные двери "TOREX Ultimatum Цвет фурнитуры: раздельного цвета, хром/латунь Замок основной . Blockido C1, 4-го класса взломостойкости Замок дополнительный . Blockido L3 сувальдного типа, 4-го класса взломостойкости;Противосъемные ригеля, двойной контур уплотнителя, металлический эксцентрик, глазок с металлической шторкой широкого угла обзора. . Порошково-полимерное покрытие . Цвет внешней отделки:Медный антик . Тип внутренней отделки:Панель MDF с покрытием Cortorex Цвет внутренней отделки: . Опционально: Видеоглазок;Тип внешней отделки" . Отделка наружная . Фасад Штукатурка фасадная влагостойкая, паропроницаемая(цвет на выбор); утеплитель минеральный Paroc: Плотность кг/м3 140 ;Теплопроводность, Вт/м°С 0,037 Опционально:материал отделки, толщина и тип утеплителя на выбор. . Цоколь Гидроизоляция цоколя.Фасадные панели с усиленными ребрами жесткости, ветро- и удароустойчивые, стойкие к деформациям натуральной фактуры. Опционально: материал отделки цоколя на выбор. . Отделка внутренняя . Полы Чистовая: монтаж ламината. Прихожая,сан.узлы плитка Опционально: материалы чистовой отделки на выбор. . Внутренние стены Чистовая: виниловые обои под покраску Опционально: материалы чистовой отделки на выбор. . Потолок Чистовая: монтаж натяжных потолков, в том числе влагостойких Опционально: материалы чистовой отделки на выбор. . Прочее Отделка откосов и установка подоконников; установка межкомнатных дверей . Инженерия . Электрика Электрика: монтаж распределительного щитка, установка автоматов, монтаж кабеля внутренней силовой сети, монтаж кабеля внутреннего освещения, установка приборов -розеток, выключателей в соответствии с проектом. . Отопление Монтаж распределительного коллектора системы отопления. Установка конвертов.Установка котельного оборудования в соответствии с проектом. Опционально: монтаж теплого пола, монтаж 2х-контурного котла . Водоснабжение Монтаж распределительных коллекторов систем ГВС и ХВС;Разводка систем ГВС и ХВС в помещениях с использованием ПВХ труб в соответствии с проектом. Опционально: установка насосного оборудования, автоматики,систем фильтрации. Бурение скважин. . Канализация Прокладка канализационных труб по дому. Опционально: монтаж автономной канализации . Бесплатные опции . Проект стадии АР Да . Поэтапная оплата Да . Определение места посадки дома на земельном участке с учетом норм и правил Да . Эскизы ландшафтного дизайна участка с генпланом застройки Да . Геологическое обследование грунтов Да . Внесение изменений в типовой проект дома Да . Экспресс-дизайн интерьеров дома Да . Эскизные проекты внутренних инженерных сетей Да . Уборка территории да . Дополнительные опции . Кредит Да . Ипотека Да . Страхование Да .
Реал Эстейт|Реал Загородный Дом

МУРИНО 2
«Мурино» – проект дома из пеноблоков небольшого размера, который можно смело отнести к проектам загородных домов эконом класса. В то же время, он вполне комфортабелен по современным меркам. В доме две большие спальни (одна – с выходом на балкон), просторные гостиная с кухней-столовой и два санузла (на первом этаже небольшой – помыть руки после работы в саду, на втором – просторный, с ванной), – достойный набор для удобного проживания небольшой семьи. . Открытая арка, соединяющая гостиную с кухней-столовой, создает единое структурированное пространство, зрительно расширяя объем и делая его более выразительным. . Внешне дом из пеноблоков «Мурино», несмотря на конструктивную простоту, выглядит очень ладным и гармоничным. Его облик украшает фонарь над главным фасадом, увеличивающий объем спальни и делающий ее более светлой. Недорогая наружная отделка может заключаться в штукатурке стен, возможна также обкладка дома облицовочным кирпичом, но для этого нужно предусмотреть более широкий фундамент. . С проектом дома эконом класса «Мурино» идейно близки проекты небольших домов из блоков «Миллирово» и «Услада». Следом по размеру и комфортабельности идут «Разметелево» и «Макарово». . КРАТКО О ГЛАВНОМ . Площадь общая . 106,2 м. кв. . Размеры . 8.35 x 8.35 . Технология . Газобетон . . Кол-во комнат . Наличие гаража . нет . Срок строительства . 85 дн. . СТАНДАРТ . 1 679 000 руб. . гарантия 1 год . ОПТИМАЛ . 2 455 000 руб. . гарантия 2 года . ПОД КЛЮЧ . 3 260 000 руб. . гарантия 3 года . Рассрочка 0% . Кредит от 12.5% . Мат. капитал . . ЦЕНЫ И КОМПЛЕКТАЦИИ . Цена (руб.) . Количество дней . КОМЛЕКТАЦИЯ . 1 679 000 руб. . Срок: 90 дней . СТАНДАРТ . 2 455 000 руб. . Срок: 120 дней . ОПТИМАЛ . 3 260 000 руб. . Срок: 150 дней . ПОД КЛЮЧ . . Комплектация "Под ключ": . Фундамент Монолитный железобетонный ленточный. Опционально :Монолитная плита ; Утепленная шведская плита. Бетон м350;Арматура А3 D12 Подготовительные и земляные работы, геотекстиль, песчано-щебеночная подушка, закладные под коммуникации, опалубка, гидроизоляция, вязка арматурного каркаса . Наружные и несущие стены Наружные стены Газобетон(H+H, КЖБИ,Aeroc, СтройКомплект, ЕвроАэроБетон) 300мм D500, несущие внутренние 300мм, отсечная гидроизоляция Технониколь , армирование арматурой d8 (каждый 3-й ряд)Основание под газобетон - полнотелый кирпич М-150 Опционально: блоки 350/375/400 . Перегородки Газобетон(H+H, КЖБИ,Aeroc, СтройКомплект, ЕвроАэроБетон) 100мм D500 . Перекрытия Деревянные балки 100х200 из обрезного антисептированного пиломатериала; монтаж утеплителя Isover|Knauf; монтаж пароизоляционной пленки Изоспан; Опционально: монолитное железобетонное перекрытие: Бетон м350;Арматура А3 D12 . Армопояс, перемычки ж/б армопояс, ж/б оконные и дверные перемычки с использованием арматуры d10, d12 ,Бетион м300 . Кровля Отсечная гидроизоляция, мауэрлат брус 150х150мм, стропильная система доска 50х200мм, контробрешетка 50х50мм, обрешетка 25х150мм, металлочерепица Монтерей/Каскад(цвет на выбор), доборные элементы, (обработка всех деревянных частей огне-биозащитой) проход через кровлю дымоходной трубы(утепление, герметизация) монтаж утеплителя Isover|Knauf; монтаж пароизоляционной пленки Изоспан; Опционально: Кровельный материал на выбор-Мягкая черепица;Керамическая черепица;Сланцевая черепица;Композитная черепица;Натуральная черепица;Фальцевая кровля;Медная кровля;Цементно-песчаная черепица;Ондулин Производители:Braas,Балтик Тайл,Shinglas,Katepal,Icopal,Ruuki,Roben,Luxard и пр. . ЭЛЕМЕНТЫ . Лестница Деревянная межэтажная лестница лево / правозаходная; колонна и уголки крепления ступеней к тетивам — сталь; ступени, опорные и заходные столбы, тетивы, поручни и балясины, облицовочные втулки — древесина (сосна) Опционально: монолитная железобетонная, металлическая, кованная . Водосточная система Монтажный комплект: желоба подвесные; желоба подвесные угловые; заглушки для желоба; трубы; колена угловые; воронки водосборные; отметы; держатели желобов; держатели труб; крепеж . Карнизы Подшивка свесов и карнизов кровля сухим строганным обрезным пиломатериалом с вентиляционным зазором. Нанесение краски Tikkurila 2 слоя Опционально: материал подшивки на выбор . Окна "Двухкамерный стеклопакет Rehau :Системная глубина/число камер: 70 мм/многокамерная . Теплоизоляция: Rопр =0,71м2°С/Вт. . Взломобезопасность: установка усиленных приборов запирания благодаря смещению оси приборного паза 13 мм. . Воздухо- и водонепроницаемость: надежная защита от сквозняков, пыли и воды ,2 контура уплотнения (нахлест уплотнений по 7/8 мм внутри), фурнитура. . Опционально: Стеклопакет:Шумоизоляционный;Энергосберегающий; Ударопрочный; Тонированный; Солнцезащитный; Дополнительная комплектация: Детские замки; Москитные сетки; Шпросы." . Входные двери "TOREX Ultimatum Цвет фурнитуры: раздельного цвета, хром/латунь Замок основной . Blockido C1, 4-го класса взломостойкости Замок дополнительный . Blockido L3 сувальдного типа, 4-го класса взломостойкости;Противосъемные ригеля, двойной контур уплотнителя, металлический эксцентрик, глазок с металлической шторкой широкого угла обзора. . Порошково-полимерное покрытие . Цвет внешней отделки:Медный антик . Тип внутренней отделки:Панель MDF с покрытием Cortorex Цвет внутренней отделки: . Опционально: Видеоглазок;Тип внешней отделки" . Отделка наружная . Фасад Штукатурка фасадная влагостойкая, паропроницаемая(цвет на выбор); утеплитель минеральный Paroc: Плотность кг/м3 140 ;Теплопроводность, Вт/м°С 0,037 Опционально:материал отделки, толщина и тип утеплителя на выбор. . Цоколь Гидроизоляция цоколя.Фасадные панели с усиленными ребрами жесткости, ветро- и удароустойчивые, стойкие к деформациям натуральной фактуры. Опционально: материал отделки цоколя на выбор. . Отделка внутренняя . Полы Чистовая: монтаж ламината. Прихожая,сан.узлы плитка Опционально: материалы чистовой отделки на выбор. . Внутренние стены Чистовая: виниловые обои под покраску Опционально: материалы чистовой отделки на выбор. . Потолок Чистовая: монтаж натяжных потолков, в том числе влагостойких Опционально: материалы чистовой отделки на выбор. . Прочее Отделка откосов и установка подоконников; установка межкомнатных дверей . Инженерия . Электрика Электрика: монтаж распределительного щитка, установка автоматов, монтаж кабеля внутренней силовой сети, монтаж кабеля внутреннего освещения, установка приборов -розеток, выключателей в соответствии с проектом. . Отопление Монтаж распределительного коллектора системы отопления. Установка конвертов.Установка котельного оборудования в соответствии с проектом. Опционально: монтаж теплого пола, монтаж 2х-контурного котла . Водоснабжение Монтаж распределительных коллекторов систем ГВС и ХВС;Разводка систем ГВС и ХВС в помещениях с использованием ПВХ труб в соответствии с проектом. Опционально: установка насосного оборудования, автоматики,систем фильтрации. Бурение скважин. . Канализация Прокладка канализационных труб по дому. Опционально: монтаж автономной канализации . Бесплатные опции . Проект стадии АР Да . Поэтапная оплата Да . Определение места посадки дома на земельном участке с учетом норм и правил Да . Эскизы ландшафтного дизайна участка с генпланом застройки Да . Геологическое обследование грунтов Да . Внесение изменений в типовой проект дома Да . Экспресс-дизайн интерьеров дома Да . Эскизные проекты внутренних инженерных сетей Да . Уборка территории да . Дополнительные опции . Кредит Да . Ипотека Да . Страхование Да .
Реал Эстейт|Реал Загородный Дом

Баня Романа - рубленое бревно 380-420мм
Видео: https://youtu.be/lh8e_mtFIR8 . . Проект бани из рубленого бревна средний диаметр 400мм. . . Общая площадь - 155,6м2 . . Отличная баня для коммерческого использования. Есть отдельная кухня, комната отдыха, зона отдыха с бассейном, на втором этаже - бильярдный зал, топочная имеет отдельный вход, чтобы не тревожить гостей во время отдыха.
Андрей Липовка

Многоквартирный жилой дом
Дом на 8 квартир 1500м2
Дмитрий Холодок

МУРИНО 2
«Мурино» – проект дома из пеноблоков небольшого размера, который можно смело отнести к проектам загородных домов эконом класса. В то же время, он вполне комфортабелен по современным меркам. В доме две большие спальни (одна – с выходом на балкон), просторные гостиная с кухней-столовой и два санузла (на первом этаже небольшой – помыть руки после работы в саду, на втором – просторный, с ванной), – достойный набор для удобного проживания небольшой семьи. . Открытая арка, соединяющая гостиную с кухней-столовой, создает единое структурированное пространство, зрительно расширяя объем и делая его более выразительным. . Внешне дом из пеноблоков «Мурино», несмотря на конструктивную простоту, выглядит очень ладным и гармоничным. Его облик украшает фонарь над главным фасадом, увеличивающий объем спальни и делающий ее более светлой. Недорогая наружная отделка может заключаться в штукатурке стен, возможна также обкладка дома облицовочным кирпичом, но для этого нужно предусмотреть более широкий фундамент. . С проектом дома эконом класса «Мурино» идейно близки проекты небольших домов из блоков «Миллирово» и «Услада». Следом по размеру и комфортабельности идут «Разметелево» и «Макарово». . КРАТКО О ГЛАВНОМ . Площадь общая . 106,2 м. кв. . Размеры . 8.35 x 8.35 . Технология . Газобетон . . Кол-во комнат . Наличие гаража . нет . Срок строительства . 85 дн. . СТАНДАРТ . 1 679 000 руб. . гарантия 1 год . ОПТИМАЛ . 2 455 000 руб. . гарантия 2 года . ПОД КЛЮЧ . 3 260 000 руб. . гарантия 3 года . Рассрочка 0% . Кредит от 12.5% . Мат. капитал . . ЦЕНЫ И КОМПЛЕКТАЦИИ . Цена (руб.) . Количество дней . КОМЛЕКТАЦИЯ . 1 679 000 руб. . Срок: 90 дней . СТАНДАРТ . 2 455 000 руб. . Срок: 120 дней . ОПТИМАЛ . 3 260 000 руб. . Срок: 150 дней . ПОД КЛЮЧ . . Комплектация "Под ключ": . Фундамент Монолитный железобетонный ленточный. Опционально :Монолитная плита ; Утепленная шведская плита. Бетон м350;Арматура А3 D12 Подготовительные и земляные работы, геотекстиль, песчано-щебеночная подушка, закладные под коммуникации, опалубка, гидроизоляция, вязка арматурного каркаса . Наружные и несущие стены Наружные стены Газобетон(H+H, КЖБИ,Aeroc, СтройКомплект, ЕвроАэроБетон) 300мм D500, несущие внутренние 300мм, отсечная гидроизоляция Технониколь , армирование арматурой d8 (каждый 3-й ряд)Основание под газобетон - полнотелый кирпич М-150 Опционально: блоки 350/375/400 . Перегородки Газобетон(H+H, КЖБИ,Aeroc, СтройКомплект, ЕвроАэроБетон) 100мм D500 . Перекрытия Деревянные балки 100х200 из обрезного антисептированного пиломатериала; монтаж утеплителя Isover|Knauf; монтаж пароизоляционной пленки Изоспан; Опционально: монолитное железобетонное перекрытие: Бетон м350;Арматура А3 D12 . Армопояс, перемычки ж/б армопояс, ж/б оконные и дверные перемычки с использованием арматуры d10, d12 ,Бетион м300 . Кровля Отсечная гидроизоляция, мауэрлат брус 150х150мм, стропильная система доска 50х200мм, контробрешетка 50х50мм, обрешетка 25х150мм, металлочерепица Монтерей/Каскад(цвет на выбор), доборные элементы, (обработка всех деревянных частей огне-биозащитой) проход через кровлю дымоходной трубы(утепление, герметизация) монтаж утеплителя Isover|Knauf; монтаж пароизоляционной пленки Изоспан; Опционально: Кровельный материал на выбор-Мягкая черепица;Керамическая черепица;Сланцевая черепица;Композитная черепица;Натуральная черепица;Фальцевая кровля;Медная кровля;Цементно-песчаная черепица;Ондулин Производители:Braas,Балтик Тайл,Shinglas,Katepal,Icopal,Ruuki,Roben,Luxard и пр. . ЭЛЕМЕНТЫ . Лестница Деревянная межэтажная лестница лево / правозаходная; колонна и уголки крепления ступеней к тетивам — сталь; ступени, опорные и заходные столбы, тетивы, поручни и балясины, облицовочные втулки — древесина (сосна) Опционально: монолитная железобетонная, металлическая, кованная . Водосточная система Монтажный комплект: желоба подвесные; желоба подвесные угловые; заглушки для желоба; трубы; колена угловые; воронки водосборные; отметы; держатели желобов; держатели труб; крепеж . Карнизы Подшивка свесов и карнизов кровля сухим строганным обрезным пиломатериалом с вентиляционным зазором. Нанесение краски Tikkurila 2 слоя Опционально: материал подшивки на выбор . Окна "Двухкамерный стеклопакет Rehau :Системная глубина/число камер: 70 мм/многокамерная . Теплоизоляция: Rопр =0,71м2°С/Вт. . Взломобезопасность: установка усиленных приборов запирания благодаря смещению оси приборного паза 13 мм. . Воздухо- и водонепроницаемость: надежная защита от сквозняков, пыли и воды ,2 контура уплотнения (нахлест уплотнений по 7/8 мм внутри), фурнитура. . Опционально: Стеклопакет:Шумоизоляционный;Энергосберегающий; Ударопрочный; Тонированный; Солнцезащитный; Дополнительная комплектация: Детские замки; Москитные сетки; Шпросы." . Входные двери "TOREX Ultimatum Цвет фурнитуры: раздельного цвета, хром/латунь Замок основной . Blockido C1, 4-го класса взломостойкости Замок дополнительный . Blockido L3 сувальдного типа, 4-го класса взломостойкости;Противосъемные ригеля, двойной контур уплотнителя, металлический эксцентрик, глазок с металлической шторкой широкого угла обзора. . Порошково-полимерное покрытие . Цвет внешней отделки:Медный антик . Тип внутренней отделки:Панель MDF с покрытием Cortorex Цвет внутренней отделки: . Опционально: Видеоглазок;Тип внешней отделки" . Отделка наружная . Фасад Штукатурка фасадная влагостойкая, паропроницаемая(цвет на выбор); утеплитель минеральный Paroc: Плотность кг/м3 140 ;Теплопроводность, Вт/м°С 0,037 Опционально:материал отделки, толщина и тип утеплителя на выбор. . Цоколь Гидроизоляция цоколя.Фасадные панели с усиленными ребрами жесткости, ветро- и удароустойчивые, стойкие к деформациям натуральной фактуры. Опционально: материал отделки цоколя на выбор. . Отделка внутренняя . Полы Чистовая: монтаж ламината. Прихожая,сан.узлы плитка Опционально: материалы чистовой отделки на выбор. . Внутренние стены Чистовая: виниловые обои под покраску Опционально: материалы чистовой отделки на выбор. . Потолок Чистовая: монтаж натяжных потолков, в том числе влагостойких Опционально: материалы чистовой отделки на выбор. . Прочее Отделка откосов и установка подоконников; установка межкомнатных дверей . Инженерия . Электрика Электрика: монтаж распределительного щитка, установка автоматов, монтаж кабеля внутренней силовой сети, монтаж кабеля внутреннего освещения, установка приборов -розеток, выключателей в соответствии с проектом. . Отопление Монтаж распределительного коллектора системы отопления. Установка конвертов.Установка котельного оборудования в соответствии с проектом. Опционально: монтаж теплого пола, монтаж 2х-контурного котла . Водоснабжение Монтаж распределительных коллекторов систем ГВС и ХВС;Разводка систем ГВС и ХВС в помещениях с использованием ПВХ труб в соответствии с проектом. Опционально: установка насосного оборудования, автоматики,систем фильтрации. Бурение скважин. . Канализация Прокладка канализационных труб по дому. Опционально: монтаж автономной канализации . Бесплатные опции . Проект стадии АР Да . Поэтапная оплата Да . Определение места посадки дома на земельном участке с учетом норм и правил Да . Эскизы ландшафтного дизайна участка с генпланом застройки Да . Геологическое обследование грунтов Да . Внесение изменений в типовой проект дома Да . Экспресс-дизайн интерьеров дома Да . Эскизные проекты внутренних инженерных сетей Да . Уборка территории да . Дополнительные опции . Кредит Да . Ипотека Да . Страхование Да .
Реал Эстейт|Реал Загородный Дом

Териоки клуб Дом 8
Дмитрий Холодок

Дом 2- этажный в стиле ЛОФТ
Самарина Елена

Многоквартирный жилой дом
Дом на 8 квартир 1500м2
Дмитрий Холодок

Дом на склоне
Порто Хели, Греция.
Дмитрий Холодок

Дом 2- этажный в стиле ЛОФТ
Самарина Елена

Светодиодное архитектурное освещение загородного дома - пос. Медвежьи Озера
1. Общие данные . Настоящий рабочий проект разработан в соответствии с действующими нормами, правилами и стандартами. В данном проекте рассматривается система фасадного освещения индивидуального жилого дома, расположенного по адресу: Московская область, д. Медвежьи озера. . Проект разработан на основании утвержденного заказчиком светотехнического дизайн-проекта. Основные требования, предъявляемые к проекту - подчеркнуть характерные архитектурные особенности основного дома, создать целостный привлекательный вид объекта в темное время суток. Осветительная установка должна стать элементом общего дизайна здания, не нарушая архитектурной целостности объекта внешним видом оборудования и монтажных элементов, кроме того необходимо исключить попадание прямого света от источников установки в окна помещений. Применить преимущественно скрытое, встроенное, накладное световое оборудование компактных размеров. В качестве источников света (ИС) использовать наиболее энергоэкономичные по световой отдаче и сроку службы светодиодные ИС, европейского производства. . . 2. Осветительное оборудование . Световое оборудование, используемое на объекте, имеет современный дизайн, оснащается светодиодными источниками света. . Предлагаемое оборудование позволяет значительно снизить энергопотребление установки по сравнению с реализацией на традиционных источниках света. . Для реализации фасадного освещения предлагается использовать компактные светодиодные светильники, предназначенные для уличного применения (степень защиты не ниже IP44). Эффективный срок службы светодиодных ИС составляет 50 тысяч часов. . Общая расчетная потребляемая мощность световой установки составляет . 0,8 кВт. . . 3. Система управления освещением . . Система управления построена на применении обычных выключателей, подающих управляющую фазу на модульные контакторы, находящихся в щитах ЩО. Количество модульных контакторов соответствует количеству световых режимов. . Применяемые в проекте световые режимы: . 1. Дежурный режим . 2. Повседневный режим - включается путем добавления электрических групп освещения к дежурному режиму . 3. Праздничный режим - включается путем добавления электрических групп освещения к повседневному режиму . Так же предусмотрен режим Новогодней иллюминации, который реализуется подключением световых гирлянд к уличным розеткам, установленным для этой цели. . . . 4. Силовое электрооборудование. . Щиты наружного освещения ЩО монтируются на первом этаже рядом с ВРУ, предоставленным Заказчиком - в данном проекте не рассматривается. . Расчетная нагрузка наружного освещения дома составляет 0,8 кВт. . Питающие кабели, для электропитания светильников архитектурного освещения 220В, медные, расчетного сечения, марки ВВГнг-LS 3x1,5 мм². . Питающие кабели, для электропитания трансформаторов светильников архитектурного освещения 24В, медные, расчетного сечения, марки ВВГнг-LS 3x1,5 мм². . Сечение кабелей выбирается согласно расчетов сети 380-220В на основании ПУЭ и согласно кросс таблицам производителя. Изоляционные оболочки кабелей и проводов отвечают требованиям по нераспространению горения. . Кабельные линии прокладываются внутри домов в гофрированных ПНД трубах диаметром 20 мм по полу и потолку. Опуски и подъемы кабеля выполнить в штробах стен. Все электрические расключения производить в распределительных коробках, установленным в запотолочном пространстве и к которым необходимо иметь доступ для обслуживания, или в корпусах светильников. Все соединения выполнять при помощи соединительных, ответвительных зажимов или дополнительных контактов предусмотренных в используемом осветительном оборудовании и в распределительных коробках. Нулевой рабочий и нулевой защитный проводники не допускается подключать под общий контактный зажим. .
Светодизайнер Денис Николаев

Дом 2- этажный в стиле ЛОФТ
Самарина Елена

Териоки клуб Дом 4
Особняк №4 расположен на второй береговой линии и решен в традициях северного модерна. В архитектуре здания прослеживаются параллели с историческими прототипами – нормандскими загородными особняками с фахверковыми конструкциями фасадов, окнами-розами и остроконечными черепичными крышами, устремленными в небо. . . Участок площадью 0,41 гектар похож на иллюстрацию идиллической загородной жизни – ручей, мостик и смешанный хвойно-лиственный парковый ландшафт располагает к неспешным прогулкам, отдыху и покою. Здание постоянно предстает перед зрителем в разных ракурсах, удивляя и интригуя своей сложной композицией. Башня, арочные порталы, мансардные окна, тонкая прорисовка деталей из дерева и художественной ковки радуют взгляд и пробуждают воображение. . Просторная двусветная гостиная, уютная столовая с выходом на террасу, кабинет в полукруглом эркере, блок сауны, три спальни с санузлами и гардеробными – дом полностью соответствует стандартам частного жилья класса премиум. Мансардный этаж предусматривает обустройство игровой или домашнего кинотеатра. . . Декоративные элементы фахверка задают вертикальный ритм фасадов. Благодаря ним трехэтажное здание со сложной геометрией высоких крыш производит впечатление гармоничного, легкого и изящного, несмотря на свои внушительные размеры. Отделка цоколя террасы и самого дома камнем с грубой фактурой и темная кровля подчеркивают загородный характер особняка. . . Общая площадь 395,0 м2 .
Дмитрий Холодок

Териоки клуб Дом 7
Особняк с остроконечной башней открывается посреди леса, как сказочный замок. Старые сосны и ели почти вплотную подступают к его стенам, укрывая дом своими раскидистыми кронами. Декор фасадов, имитирующий фахверковую конструкцию, - отсыл к нормандской архитектуре. . . Совокупная площадь террасы и балконов дома составляет больше 50 м2. Эти архитектурные элементы объединяют здание с окружающим ландшафтом и создают условия для отдыха на свежем воздухе в хорошую погоду. Благоустройство участка выполнено в парковом стиле. . . Общая площадь 337,0 м2 .
Дмитрий Холодок

Светодиодное архитектурное освещение загородного дома - пос. Медвежьи Озера
1. Общие данные . Настоящий рабочий проект разработан в соответствии с действующими нормами, правилами и стандартами. В данном проекте рассматривается система фасадного освещения индивидуального жилого дома, расположенного по адресу: Московская область, д. Медвежьи озера. . Проект разработан на основании утвержденного заказчиком светотехнического дизайн-проекта. Основные требования, предъявляемые к проекту - подчеркнуть характерные архитектурные особенности основного дома, создать целостный привлекательный вид объекта в темное время суток. Осветительная установка должна стать элементом общего дизайна здания, не нарушая архитектурной целостности объекта внешним видом оборудования и монтажных элементов, кроме того необходимо исключить попадание прямого света от источников установки в окна помещений. Применить преимущественно скрытое, встроенное, накладное световое оборудование компактных размеров. В качестве источников света (ИС) использовать наиболее энергоэкономичные по световой отдаче и сроку службы светодиодные ИС, европейского производства. . . 2. Осветительное оборудование . Световое оборудование, используемое на объекте, имеет современный дизайн, оснащается светодиодными источниками света. . Предлагаемое оборудование позволяет значительно снизить энергопотребление установки по сравнению с реализацией на традиционных источниках света. . Для реализации фасадного освещения предлагается использовать компактные светодиодные светильники, предназначенные для уличного применения (степень защиты не ниже IP44). Эффективный срок службы светодиодных ИС составляет 50 тысяч часов. . Общая расчетная потребляемая мощность световой установки составляет . 0,8 кВт. . . 3. Система управления освещением . . Система управления построена на применении обычных выключателей, подающих управляющую фазу на модульные контакторы, находящихся в щитах ЩО. Количество модульных контакторов соответствует количеству световых режимов. . Применяемые в проекте световые режимы: . 1. Дежурный режим . 2. Повседневный режим - включается путем добавления электрических групп освещения к дежурному режиму . 3. Праздничный режим - включается путем добавления электрических групп освещения к повседневному режиму . Так же предусмотрен режим Новогодней иллюминации, который реализуется подключением световых гирлянд к уличным розеткам, установленным для этой цели. . . . 4. Силовое электрооборудование. . Щиты наружного освещения ЩО монтируются на первом этаже рядом с ВРУ, предоставленным Заказчиком - в данном проекте не рассматривается. . Расчетная нагрузка наружного освещения дома составляет 0,8 кВт. . Питающие кабели, для электропитания светильников архитектурного освещения 220В, медные, расчетного сечения, марки ВВГнг-LS 3x1,5 мм². . Питающие кабели, для электропитания трансформаторов светильников архитектурного освещения 24В, медные, расчетного сечения, марки ВВГнг-LS 3x1,5 мм². . Сечение кабелей выбирается согласно расчетов сети 380-220В на основании ПУЭ и согласно кросс таблицам производителя. Изоляционные оболочки кабелей и проводов отвечают требованиям по нераспространению горения. . Кабельные линии прокладываются внутри домов в гофрированных ПНД трубах диаметром 20 мм по полу и потолку. Опуски и подъемы кабеля выполнить в штробах стен. Все электрические расключения производить в распределительных коробках, установленным в запотолочном пространстве и к которым необходимо иметь доступ для обслуживания, или в корпусах светильников. Все соединения выполнять при помощи соединительных, ответвительных зажимов или дополнительных контактов предусмотренных в используемом осветительном оборудовании и в распределительных коробках. Нулевой рабочий и нулевой защитный проводники не допускается подключать под общий контактный зажим. .
Светодизайнер Денис Николаев

Многоквартирный жилой дом
Дом на 8 квартир 1500м2
Дмитрий Холодок

Небольшой дом из бруса 6 на 6 м
Прожектстрой Егор

Дом в Самарской области на берегу реки
Для многих жить на берегу реки в собственном доме – мечта… . В данном проекте нам посчастливилось помочь нашим клиентам воплотить мечту в . реальность. . В процессе работы нам всем пришлось преодолеть большое число проблем. “Плохие . грунты”, высокий весенний подъем воды и даже законодательство, вот неполный их . список. Но всё позади, и в скором времени хозяева по-настоящему насладятся жизнью в . собственном доме на берегу. . Стилистика дома продиктована небезызвестной фразой “quadratisch, praktisch, gut”*. . Это и отражается в экстерьере и интерьере. . В результате нашей общей работы мы получим просторную и комфортную “среду . обитания” для семьи, в которой найдется место и для шумных посиделок с друзьями, и . для посемейному уютных вечеров.
Александр Кофанов

Многоквартирный жилой дом
Дом на 8 квартир 1500м2
Дмитрий Холодок

Баня Романа - рубленое бревно 380-420мм
Видео: https://youtu.be/lh8e_mtFIR8 . . Проект бани из рубленого бревна средний диаметр 400мм. . . Общая площадь - 155,6м2 . . Отличная баня для коммерческого использования. Есть отдельная кухня, комната отдыха, зона отдыха с бассейном, на втором этаже - бильярдный зал, топочная имеет отдельный вход, чтобы не тревожить гостей во время отдыха.
Андрей Липовка