
Дизайнеры интерьера
5
·
10 отзывов
Эскизный проект двухуровненой квартире в современном стиле
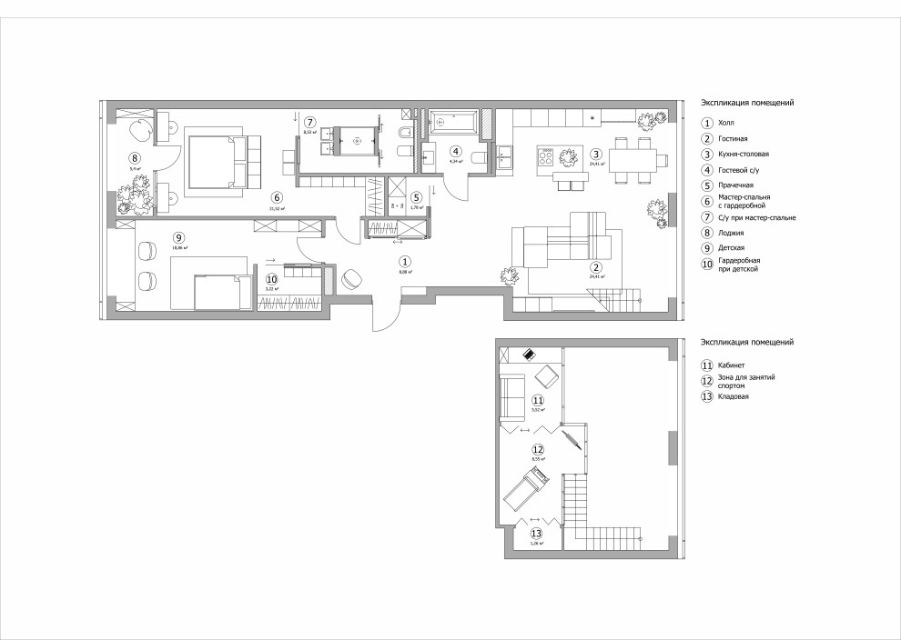
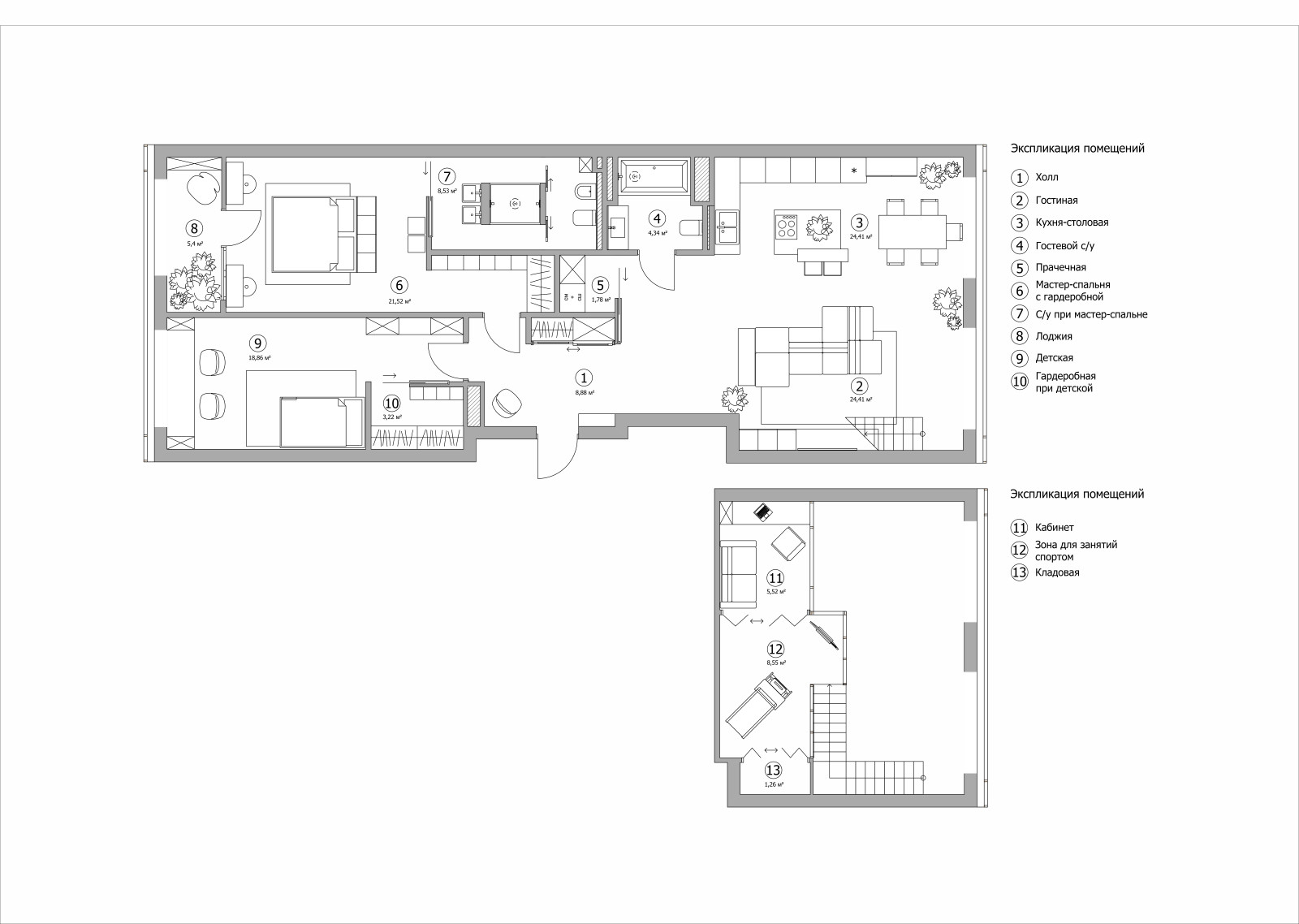
Адрес: улица Первомайская, 60, первый дом, кв. № 154, этаж 7 . Общая площадь: 138,3 м² . Высота потолков: 5,8 м + антресоль . Наше планировочное решение предлагает максимально избавиться от . перегородок, за счет чего площадь помещений увеличивается, исчезают длинные . и ненужные коридоры, а само пространство дает свободу в передвижении по . квартире. Также мы условно разделили пространство квартиры на 2 части: жилую . (спальни с гардеробными и санузлами) и общественную (кухня-столовая и . гостиная). . Антресоль мы отдали под кабинет, но там можно расположить или домашний . спортзал, или оборудовать музыкальную студию (тут всё зависит от предпочтений . и интересов заказчика). . Фишки нашей планировки: . ● Большая кухня, на которой уместился обеденный стол (его расположение . обусловлено тем, чтобы держать визуальную связь с тем, кто готовит за . кухонным островом). . ● Отдельная полноценная прачечная. . ● Вход в мастер-спальню через гардероб – это создает чувство камерности и . ощущение единого пространства наподобие сьюта (как в отелях). . ● Кровать в мастер-спальне посередине – обеспечивает свободу и комфорт в . передвижении и визуально отделяет гардероб от спальной зоны без . лишних перегородок. . ● Душевая в центре санузла при мастер-спальне – она просторная и при этом . ей можно пользоваться вдвоем.
Другие фотографии в проекте
Вопросы к фото 0
Задайте вопрос
Вам ответят эксперты. Пришлем уведомление, когда вам ответят




