
Дизайнеры интерьера
5
·
10 отзывов
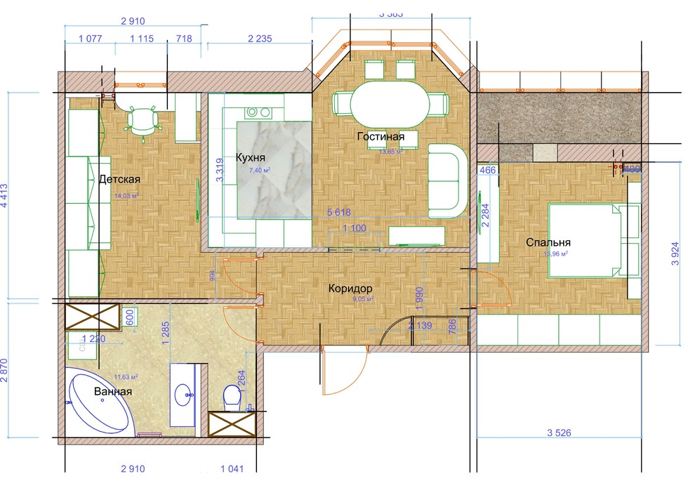
Двушечка
Двухкомнатная квартира в доме индивидуальной застройки на юге Москва. Проект предусматривает перепланировку, а именно перенос кухни в гостиную, а на месте кухни организовать детскую комнату.
Другие фотографии в проекте
Вопросы к фото 0
Задайте вопрос
Вам ответят эксперты. Пришлем уведомление, когда вам ответят
Гостиная, Контемпорари, Москва, Прозрачные шторы, Совмещённая гостиная и кухня, белая глянцевая мебель в интерьере, белая кухня, современный интерьер, художественный паркет
Похожие фотографии

Просторная квартира с природными акцентами
На фото: большая открытая, объединенная гостиная комната в современном стиле с зелеными стенами, полом из ламината, горизонтальным камином, телевизором на стене, обоями на стенах и тюлем на окнах с
Александр и Ирина Кутенковы

Двухкомнатная квартиры со стеклянной перегородкой на Овчинниковской набережной
Стильный дизайн: открытая, объединенная гостиная комната среднего размера в современном стиле с серыми стенами, темным паркетным полом, телевизором на стене, коричневым полом, многоуровневым потолком, обоями на стенах и тюлем на окнах - последний тренд
Сервис RemontBar_ Евгений

ЖК "6 звезд"
Стильный дизайн: объединенная гостиная комната в современном стиле с тюлем на окнах - последний тренд
Кирилл Дунаев

Кухня гостиная с функциональной подсветкой
На фото: объединенная гостиная комната в современном стиле с тюлем на окнах
Наталья Бучнева

Сканди + лофт = уютная квартира для молодой семейной пары
На фото: объединенная гостиная комната среднего размера в современном стиле с белыми стенами, полом из ламината, телевизором на стене, бежевым полом, многоуровневым потолком, панелями на части стены и тюлем на окнах
ЦехДизайн

Фотсессия Квартира на Ангаре
На фото: большая открытая, объединенная гостиная комната в современном стиле с тюлем на окнах с
Мария Хаснатинова

ЖК Большой
На фото: объединенная гостиная комната в современном стиле с серыми стенами, паркетным полом среднего тона, коричневым полом и тюлем на окнах с
Ксения Лысенко

Гостиная
Идея дизайна: объединенная гостиная комната в современном стиле с тюлем на окнах
Виктория Прежесецкая

Гостиная
Идея дизайна: объединенная гостиная комната в современном стиле с тюлем на окнах
Виктория Прежесецкая

Квартира в ЖК Wellton Park
На фото: объединенная гостиная комната в современном стиле с тюлем на окнах с
Elena Paramonova

Квартира ул.Академика Янгеля
Пример оригинального дизайна: объединенная гостиная комната в современном стиле с полом из ламината и тюлем на окнах
Elena Paramonova

Интерьер квартиры 90 м2
Стильный дизайн: объединенная гостиная комната в современном стиле с тюлем на окнах - последний тренд
Топ-Ремонт




