
Дизайнеры интерьера
5
·
10 отзывов
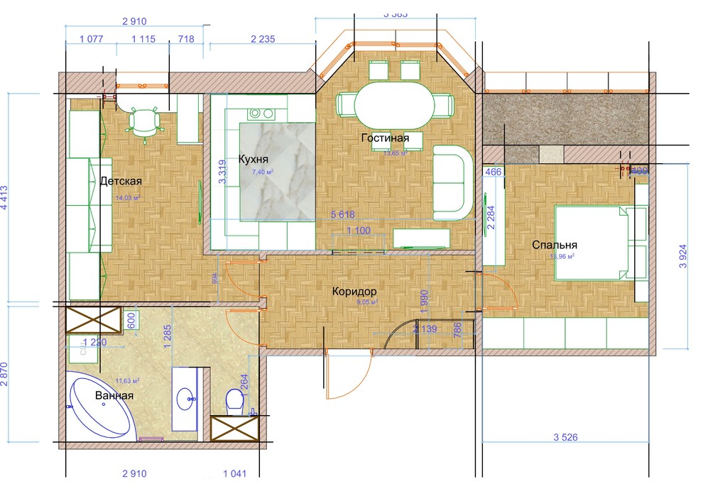
Двушечка
Двухкомнатная квартира в доме индивидуальной застройки на юге Москва. Проект предусматривает перепланировку, а именно перенос кухни в гостиную, а на месте кухни организовать детскую комнату.
Другие фотографии в проекте
Вопросы к фото 0
Задайте вопрос
Вам ответят эксперты. Пришлем уведомление, когда вам ответят




