
Архитекторы
4.67
·
10 отзывов
Дом в поселке Клуб 20'71
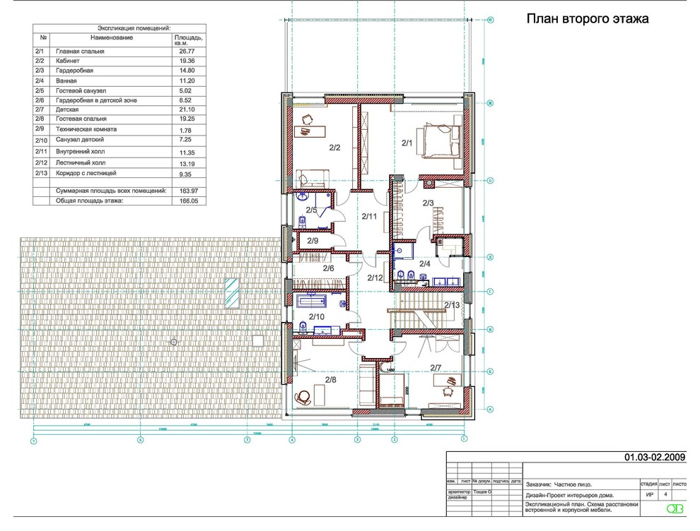
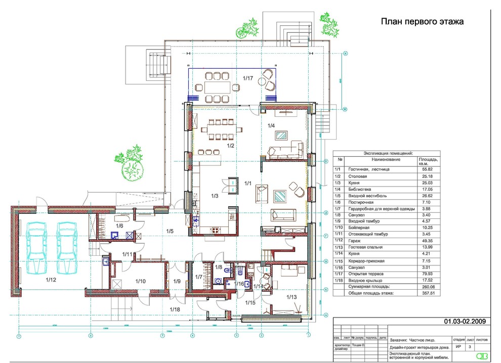
Дом в поселке Клуб 20'71 был реконструирован на стадии строительства: переделан задний фасад и полностью изменена внутренняя планировка дома. Автор проекта реконструкции дома архитектор Олег Тощев, интерьеры дома разработаны совместно с дизайнером Ольгой Великородной, фото Юрий Климов
Другие фотографии в проекте
Вопросы к фото 0
Задайте вопрос
Вам ответят эксперты. Пришлем уведомление, когда вам ответят
Похожие фотографии

Проект дома с мансардой 12х13 м S129м2 F-15722
Ерванд Григорян

Покраска фасада ( обновление) из клееного бруса в КП "Озёрный край".
Свежая идея для дизайна: двухэтажный, деревянный, коричневый частный загородный дом среднего размера в современном стиле с мансардной крышей, крышей из гибкой черепицы и коричневой крышей - отличное фото интерьера
Юрий Курочкин

Благоустройство участка 20 соток в КП Пестово
Пример оригинального дизайна: двухэтажный, деревянный, бежевый частный загородный дом среднего размера в современном стиле с двускатной крышей и черепичной крышей
Надежда Спиридонова

Дом в Ятко
Источник вдохновения для домашнего уюта: одноэтажный, деревянный, коричневый частный загородный дом среднего размера в современном стиле с двускатной крышей и крышей из гибкой черепицы
Андрей Лебедев

Строительство дома в стиле "Шале" (CHALET_ECOSTYLE)
На фото: двухэтажный, деревянный, разноцветный частный загородный дом среднего размера в стиле рустика с двускатной крышей и крышей из гибкой черепицы с
Алексей Закурин

Строительство дачи
На фото: двухэтажный, деревянный, бежевый частный загородный дом среднего размера в стиле кантри с мансардной крышей и крышей из гибкой черепицы с
Салават Хайридинов

Баня в доме из клееного бруса
Свежая идея для дизайна: двухэтажный, деревянный, коричневый частный загородный дом среднего размера с двускатной крышей и крышей из гибкой черепицы - отличное фото интерьера
Александр Петунин

Фиброцементный сайдинг Cedral
На фото: двухэтажный, бежевый частный загородный дом среднего размера в современном стиле с комбинированной облицовкой, двускатной крышей и металлической крышей с
Александр Сотдел

House # 12 Дом # 12
Источник вдохновения для домашнего уюта: бежевый, двухэтажный частный загородный дом среднего размера в современном стиле с двускатной крышей и крышей из гибкой черепицы
Dmitriy Zubkov

Деревенский дом в современном стиле
Идея дизайна: двухэтажный, деревянный, бежевый дом среднего размера в современном стиле с двускатной крышей
Алексей Закурин

Проект одноэтажного дома 10х13м S100м2 F-14732
Ерванд Григорян

Проект дома с мансардой 11х7 м S53м2 F-14642
Ерванд Григорян




