Дом в Отепя

Другие фотографии в проекте Дом в Отепя

Дом в Отепя
Дом в Отепя
Дом в Отепя
Дом в Отепя
Дом в Отепя
Дом в Отепя

Вопросы к фото 0

Задайте вопрос

Вам ответят эксперты. Пришлем уведомление, когда вам ответят

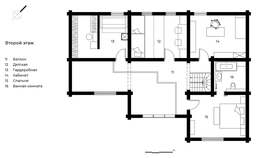
Планировка дома, Фермерский дом, деревянная лестница, деревянные окна, деревянный дом, дом, дом из бруса, дом кантри, камин, клееный брус, кухонный остров, мансарда, паркет, паркетная доска, план, планировка, планировка квартиры, планировочное решение

Дмитрий

Дмитрий

Дизайнеры интерьера

Смотреть профиль

9

отзывов

5

Рейтинг

Дом в Отепя

Дом расположен на возвышенности, с видом на живописный лес, неподалеку от города Отепя в Эстонии. Перед нами стояла задача изменить внутреннее пространство дома, что привело к пересмотру существовавшего архитектурного проекта. Применив для несущих стен брус более крупного сечения, мы смогли расширить пространство комнат до нужных размеров. Благодаря незначительному увеличению высоты и угла наклона кровли, удалось сформировать дополнительную площадь на мансардном этаже. Натуральные материалы естесственных оттенков, свойственные деревянным строениям, создают в интерьере дома атмосферу загородной жизни. Широкие оконные порталы в сочетании с объемом второго света органично соединяют жилое пространство с окружающей средой. Мансардные окна, расположенные в кровле, заливают помещения естесственным светом. Проектом предусмотрена система геотермального отопления, поддерживающая идеальные температурные условия круглый год.

Вопросы к фото 0