
Проектирование и строительство
0
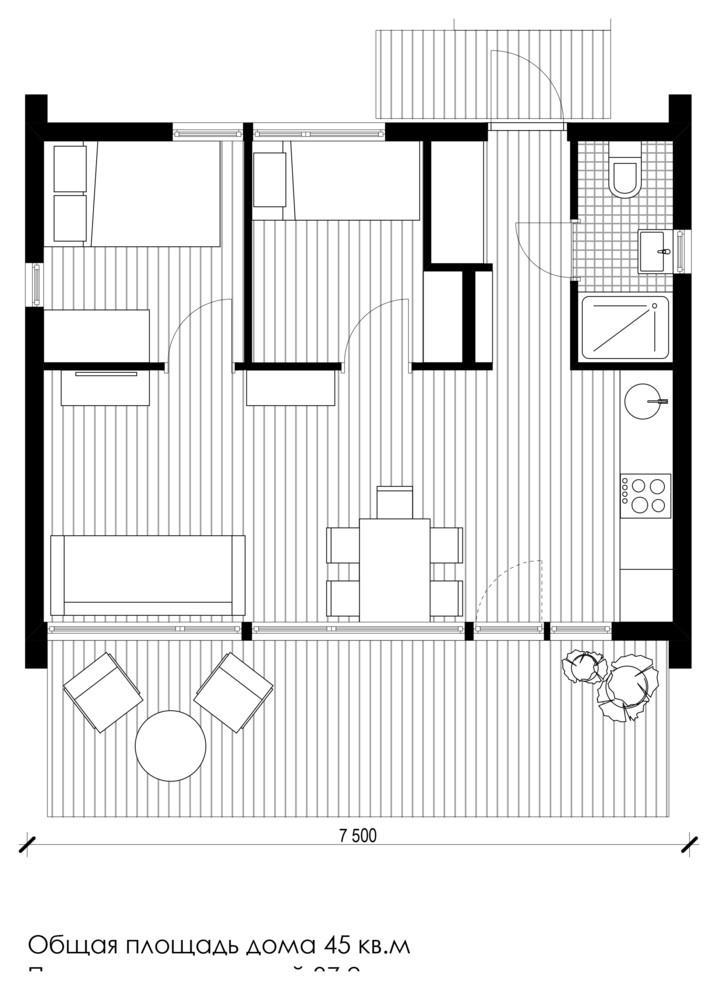
Дом-ковчег
Сборка домов в заводских условиях в Москве. . Срок сборки на производстве - 3 недели, установка на участке - 3-5 дней. . Готовый дом ставится на участке на свайный фундамент в любое время года. . . У нас разработаны стандартная комплектация домов и типовые планировки. . Типовые решения домов - 45 кв.м.(3 модуля), 60 кв.м. (4 модуля), 90 кв.м. (6 модулей). . Возможно внесение изменений и перепланировка под клиента в рамках технологической схемы. . . В заявленную стоимость дома входит: . - сам дом с отделкой наружной и внутренней (имитация бруса, сосна, в санузле - стены и потолок плитка), разводка электрики, разетки, выключатели, светильники, щиток, разводка водопровода и канализации, сантехника в санузле, бойлер 50л. . - монтаж на участке. . . Отдельно оплачиваются: . - фундаменты свайные винтовые (для дома 90 кв.м. ориентировочно 90 т.р., уточняется в зависимости от рельефа и грунта). . - доставка (каждый модуль перевозится на 1 грузовой машине + кровля, для Подмосковья, в пределах 70 км. от МКАД, стоимость доставки 1 машины ориентировочно - 10 тыс.руб.). . - система отопления (электрические конвектора или от газового тп). . . Возможны дополнительные опции такие как: терраса, навес, рольставни и др. . . По технологии - традиционная каркасная технология (деревянный каркас, утеплитель базальтовая вата, пароизоляция, влагозащита, обшивка внутри и снаружи имитацией бруса). . Высота потолков в последней модели дома увеличена, она переменная - от 2,7 до 3,3 м. . Также, прилагаю фото реализованного дома (такие под Москвой поставлены 3 шт., можно посмотреть). . Этот дом - лауреат премии архитектурного смотра-конкурса ХVI Фестиваль архитектуры и дизайна интерьера "Под крышей дома"/2015г в номинации "реализованный загородный дом". . На производстве в Москве сейчас собирается дом Ковчег-3 (45 кв.м). В середине февраля поставим выставочный дом на выставочной площадке в Москве. .
Другие фотографии в проекте
2 раза сохранено в статьи и альбомы идей:
Добавил(-а) в альбом: Идеи пользователя andre
Вопросы к фото 0
Задайте вопрос
Вам ответят эксперты. Пришлем уведомление, когда вам ответят
Похожие фотографии

Apartments Neva Towers 1
Пример оригинального дизайна: гостиная комната среднего размера в современном стиле с бежевыми стенами, светлым паркетным полом, бежевым полом, многоуровневым потолком, панелями на части стены и акцентной стеной
Вадим Мартынов Екатерина Гатилова

Частная резиденция DRR
Свежая идея для дизайна: идея дизайна в современном стиле - отличное фото интерьера
Portner Architects

Вавилова 4
Стильный дизайн: гостиная комната в стиле неоклассика (современная классика) - последний тренд
Ира Носова

FESTIVAL FLAT
Пример оригинального дизайна: открытая, объединенная гостиная комната среднего размера, в белых тонах с отделкой деревом в современном стиле с белыми стенами, паркетным полом среднего тона, мультимедийным центром и коричневым полом
Екатерина

Гостиная
Пример оригинального дизайна: гостиная комната в современном стиле с коричневым диваном, паркетным полом среднего тона и потолком из вагонки без камина
Александра Протасова

Квартира ул Тверская
На фото: гостиная комната в стиле неоклассика (современная классика) с белыми стенами и многоуровневым потолком с
Олег Михайлов архитектор-дизайнер

Пентхаус в Краснодаре
На фото: идея дизайна в современном стиле с
Денис Мурый

Квартира в Палевском жилмассиве
Идея дизайна: открытая, объединенная гостиная комната среднего размера в скандинавском стиле с белыми стенами, полом из винила, коричневым полом и кирпичными стенами без телевизора
Дмитрий Дубровский

Зал
Источник вдохновения для домашнего уюта: гостиная комната в современном стиле с бежевыми стенами, светлым паркетным полом и бежевым полом
Дмитрий Галаганов

Квартира в ЖК "Василеостровский квартал"
Пример оригинального дизайна: гостиная комната в современном стиле с паркетным полом среднего тона и коричневым полом
Екатерина Савенко

Дом, умный дом(фотографии спальни)
Источник вдохновения для домашнего уюта: идея дизайна в современном стиле
Архитектурная студия Астар проект

Гостиная
Свежая идея для дизайна: маленькая открытая, объединенная гостиная комната в современном стиле с серыми стенами и серым полом без телевизора для на участке и в саду - отличное фото интерьера
Ольга Васильева




