
Анастасия Панова Студия Nova.dizain
Дизайнеры интерьера
0
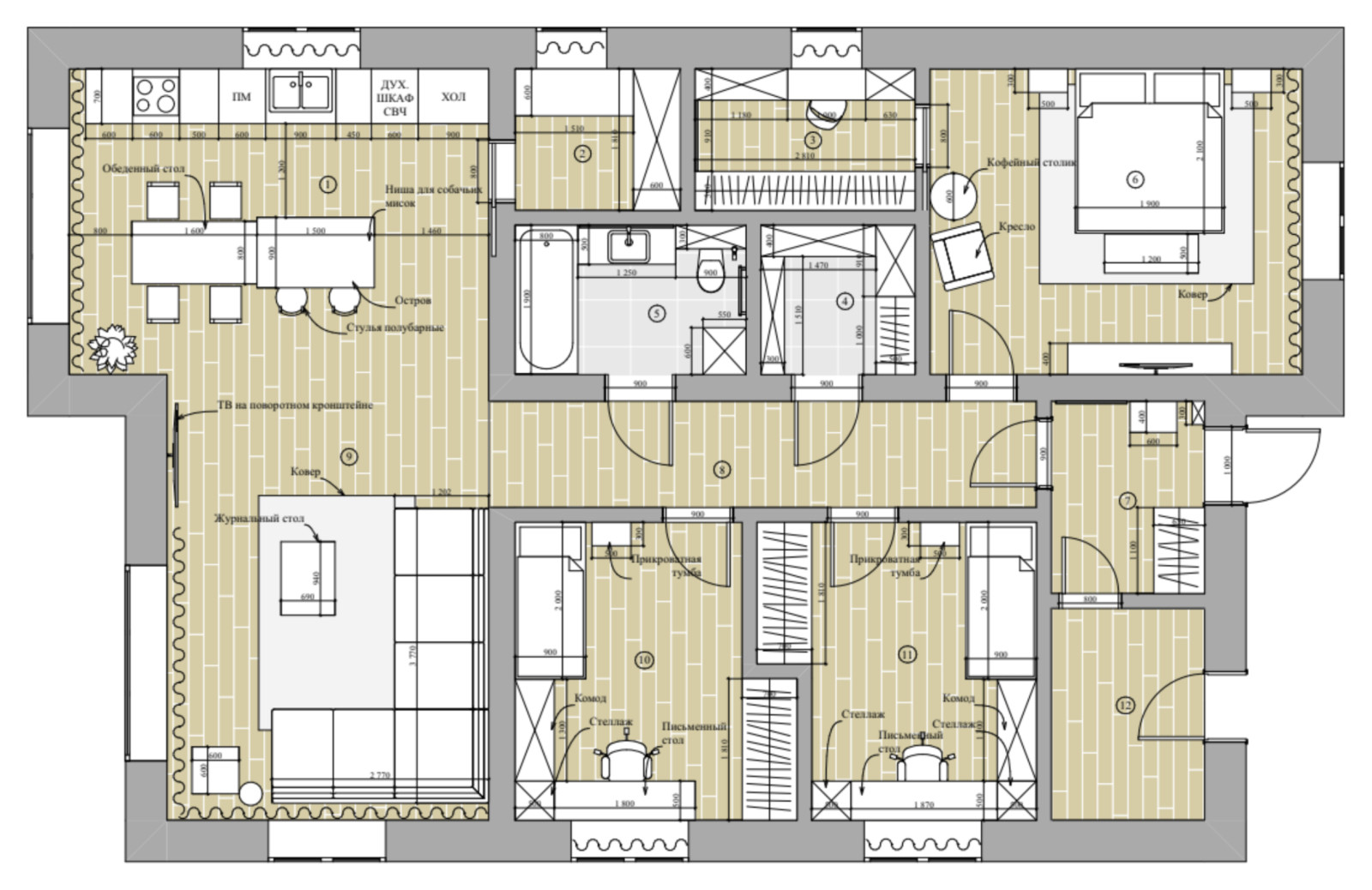
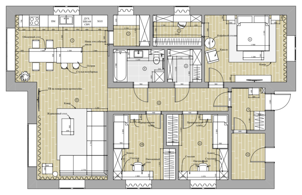
Дом для семьи в стиле минимализм 125 м². Посёлок Костюнино
Планировочное решение сделано на основе проекта от архитектора. Было изменено положение и направление открывания некоторых дверей, чтобы добиться большего комфорта для заказчиков. Дом выполнен в стиле минимализм. Зоны хранения вынесены в отдельные помещения, благодаря этому комнаты не перегружены мебелью и сохраняют легкость.
Другие фотографии в проекте
Вопросы к фото 0
Задайте вопрос
Вам ответят эксперты. Пришлем уведомление, когда вам ответят




