
Дизайнеры интерьера
5
·
10 отзывов
Дизайн-проект трёшки
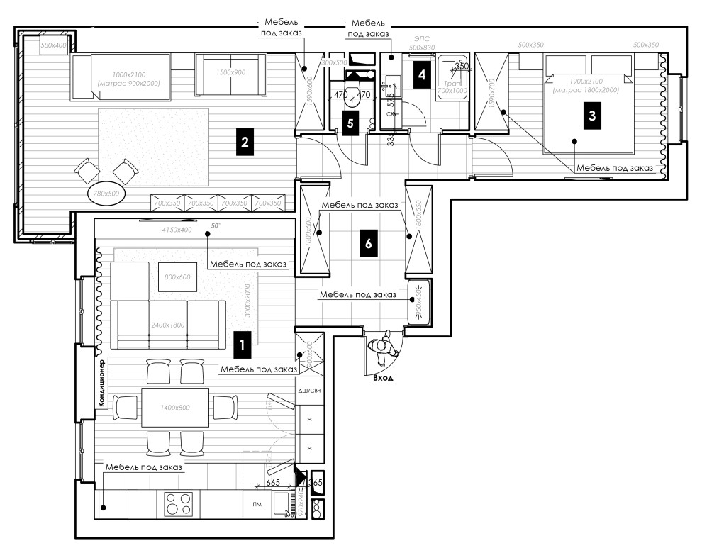
В квартире использована перепланировка. Что было сделано и как? Тут интересно... Вообще, перепланировка стала самым сложным моментом в дизайне «трёшки». Но оно того стоило. Напомню: в семье клиентов уже есть дочь-дошкольница и ожидается пополнение. Заказчики очень хотели расширить детскую, чтобы двум малышам со временем не стало в ней тесновато. Мы предложили несколько решений, но клиенты выбрали самое радикальное — демонтировать стену и объединить комнату с балконом. В итоге мы выиграли не только дополнительные метры, но сумели сделать помещение более светлым.
Другие фотографии в проекте
Вопросы к фото 0
Задайте вопрос
Вам ответят эксперты. Пришлем уведомление, когда вам ответят




