
Дизайнеры интерьера
5
·
10 отзывов
Дизайн-проект трёшки
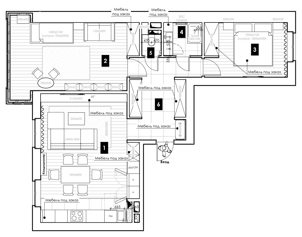
Мы воплотили интересные решения в прихожую. Она нереально огромная, и нам интересно было придумать - как же грамотно использовать это пространство. Вы заметили, что системы хранения в жилых комнатах не выглядят слишком уж вместительными? Вопрос со складированием вещей, в том числе крупногабаритных, решили иначе. Прихожая в квартире имеет солидный метраж, и грех было не использовать это пространство. Ну в самом деле, не на балконе же всё складывать, тем более что, забегая вперед, балконом было решено пожертвовать? В прихожей мы установили друг напротив друга глубокие трёхдверные шкафы-купе высотой в потолок. А чтобы не было скучно, фасады сделали комбинированными.
Другие фотографии в проекте
Вопросы к фото 0
Задайте вопрос
Вам ответят эксперты. Пришлем уведомление, когда вам ответят
Похожие фотографии

Flora частный дом 120 кв.м
Светлана/Евгений Сапрыкины "Студия Строчка"

Современная однокомнатная квартира (34 кв.м) в Санкт-Петербурге
Алина Игошина

Квартира 150 м2 | ЖК "Сердце столицы"
Дизайн интерьера | Ремонт | DE CLUB

ЖК Ривер парк
T-home Boutique

ЖК Кранц Престиж для посуточной аренды
Анна Просвирнина

ЖК Соколова 68 «Классическая элегантность: атмосфера уюта в интерьере»
Анна Иванова

2-комнатная квартира 60 кв.м., Сокольники
Марианна Мальцева

Архитектура спокойствия
Татьяна Черкашина

Дизайн-проект квартиры в ЖК «Level Бауманская» в стиле ар-деко
Студия дизайна Artum

ЖК «Скандинавия» Квартира с интегрированной мебелью
Point Form

ВЕЛЛТОН 70
Hatka Build

Квартира с китайскими мотивами
Александра Карасева




