Вам ответят эксперты. Пришлем уведомление, когда вам ответят
Архитектор, Контемпорари, Москва, Ремонт, апартаменты, дизайн, дизайн интерьера, дизайн квартиры, дизайн проект, дизайнер, интерьер, интерьер квартиры, квартира, лофт, проект дома, проект квартиры, современный дизайн, современный интерьер
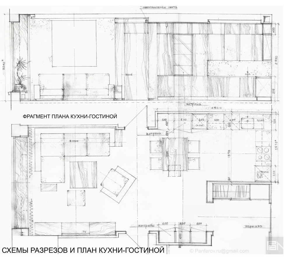
Авторы проекта: . . гл. арх. Панфёров С.В., арх. Панфёров А.С. . . Параметры объекта: . . квартира в жилом комплексе "Фьюжн парк" . . - общая площадь: 110 м.кв. . . - площадь лоджии: 4.4 м.кв