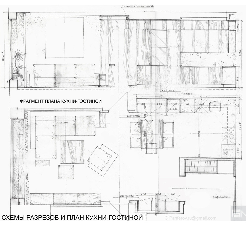
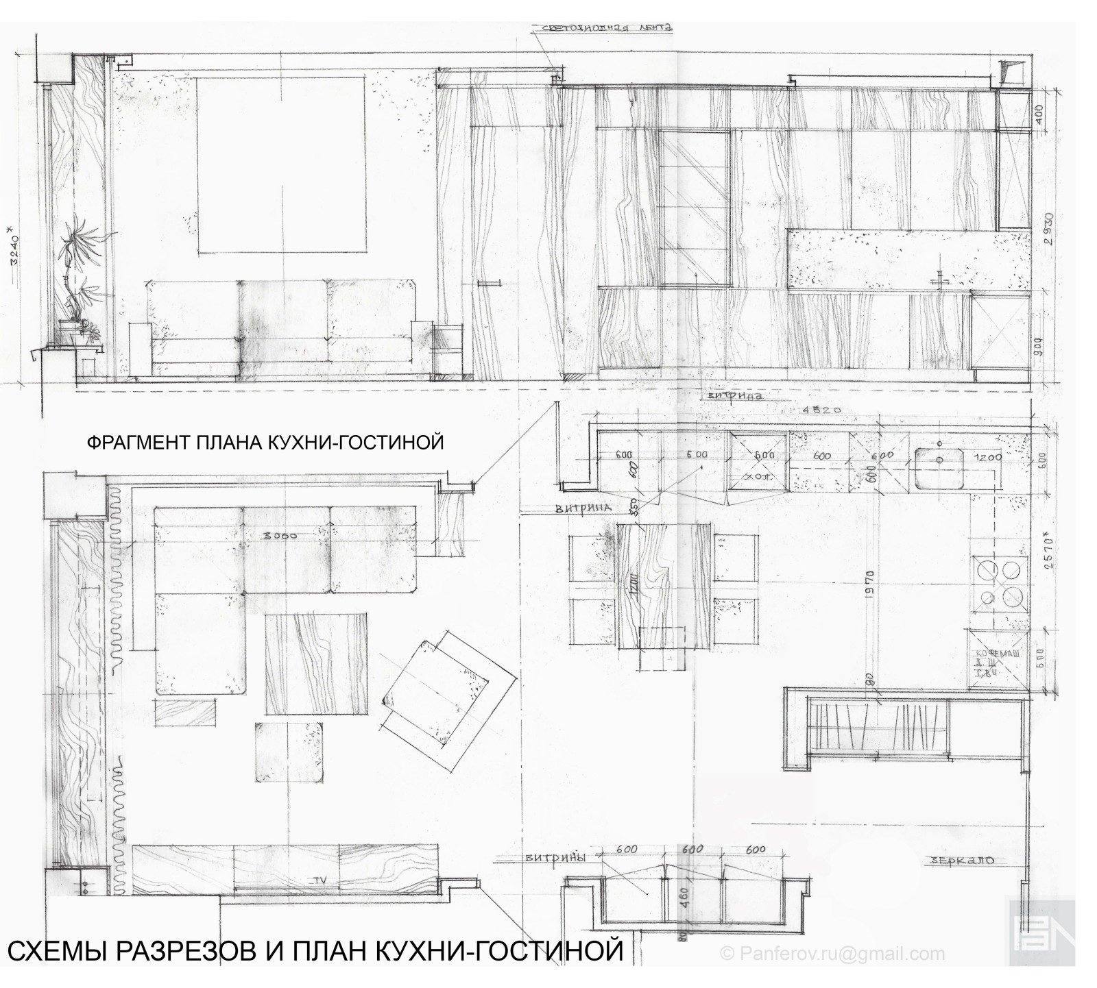
Дизайн-проект квартиры в ЖК "Фьюжн парк"
Авторы проекта: . . гл. арх. Панфёров С.В., арх. Панфёров А.С. . . Параметры объекта: . . квартира в жилом комплексе "Фьюжн парк" . . - общая площадь: 110 м.кв. . . - площадь лоджии: 4.4 м.кв
Год реализации: 2021
г. Москва, улица Усачева, Центральный административный округ
45 фотографий














































