
Архитекторы
4.76
·
37 отзывов
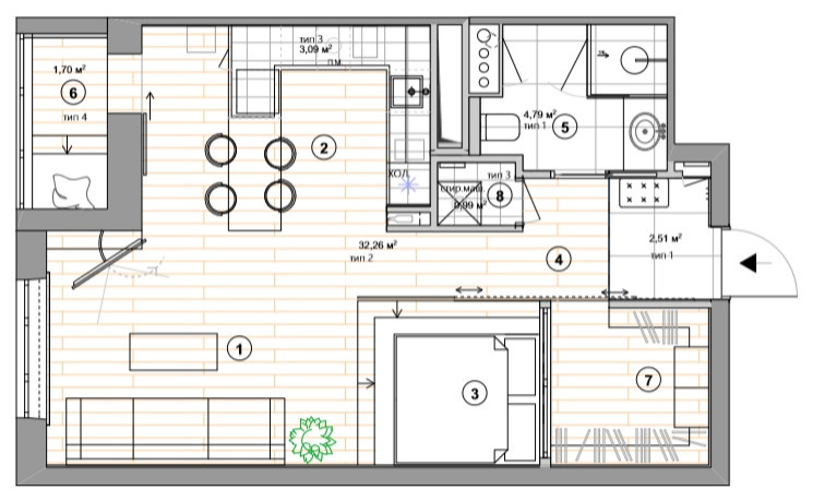
Дизайн и ремонт квартиры 50 м² в стиле лофт
Дизайн и ремонт квартиры 50 м² в стиле лофт. Бюджет на ремонт (работа, отделка, мебель) 2,1 млн рублей. Дизайн-проект 3000 р/м². . . Web: IconInteriors.ru . @: hello@iconn.pro . Inst: Instagram.com/iconnpro . Тел. +74951287232, +79581110933 . Ремонт от 13 000 р/м², дизайн-проект 3000 р/м² . Москва, Маши Порываевой 7сА . . Дизайнер Инга Моисеева: https://www.instagram.com/inga_moiseeva_
Другие фотографии в проекте
Вопросы к фото 0
Задайте вопрос
Вам ответят эксперты. Пришлем уведомление, когда вам ответят
Похожие фотографии

Стол "Река"
Свежая идея для дизайна: большая гостиная комната в стиле лофт с тюлем на окнах - отличное фото интерьера
WoodenSlab Харламов - Авторская мебель

Загородный дом в стиле Loft
Идея дизайна: гостиная комната среднего размера в стиле лофт с фасадом камина из камня, тюлем на окнах, горизонтальным камином и зоной отдыха
Студия дизайна и ремонта Katushhha

Загородный дом в стиле Loft
Свежая идея для дизайна: большая гостиная комната в стиле лофт с двусторонним камином, фасадом камина из камня, тюлем на окнах, отдельно стоящим телевизором и зоной отдыха - отличное фото интерьера
Студия дизайна и ремонта Katushhha

лофт
Источник вдохновения для домашнего уюта: гостиная комната в стиле лофт с тюлем на окнах
Алена Светлица

Проект Квартиры 7024
Стильный дизайн: гостиная комната в стиле лофт с тюлем на окнах - последний тренд
Дмитрий Галаганов

Лофт на Крестовском
Стильный дизайн: гостиная комната в стиле лофт с тюлем на окнах - последний тренд
LIGHTPRO GROUP

Дизайн интерьера 170 м2
Источник вдохновения для домашнего уюта: гостиная комната в стиле лофт с тюлем на окнах
Топ-Ремонт

11
Источник вдохновения для домашнего уюта: открытая, объединенная гостиная комната среднего размера в стиле лофт с белыми стенами, темным паркетным полом, телевизором на стене, коричневым полом и тюлем на окнах
Марина Корнилова

Проект Химки, Москва (Реализация)
На фото: гостиная комната в стиле лофт с тюлем на окнах с
Павел Алексеев

Квартира для начинающего бизнесмена
Источник вдохновения для домашнего уюта: гостиная комната в стиле лофт с тюлем на окнах
Вера Пашовкина

Гостиная с видом на барный стол
Пример оригинального дизайна: изолированная гостиная комната среднего размера в стиле лофт с белыми стенами, паркетным полом среднего тона, оранжевым полом и тюлем на окнах без камина
Konstantin Zaigraev

Гостиная в деталях
Источник вдохновения для домашнего уюта: открытая гостиная комната среднего размера в стиле лофт с черными стенами, полом из ламината и тюлем на окнах
Наталия Турченко




