
Дизайнеры интерьера
0
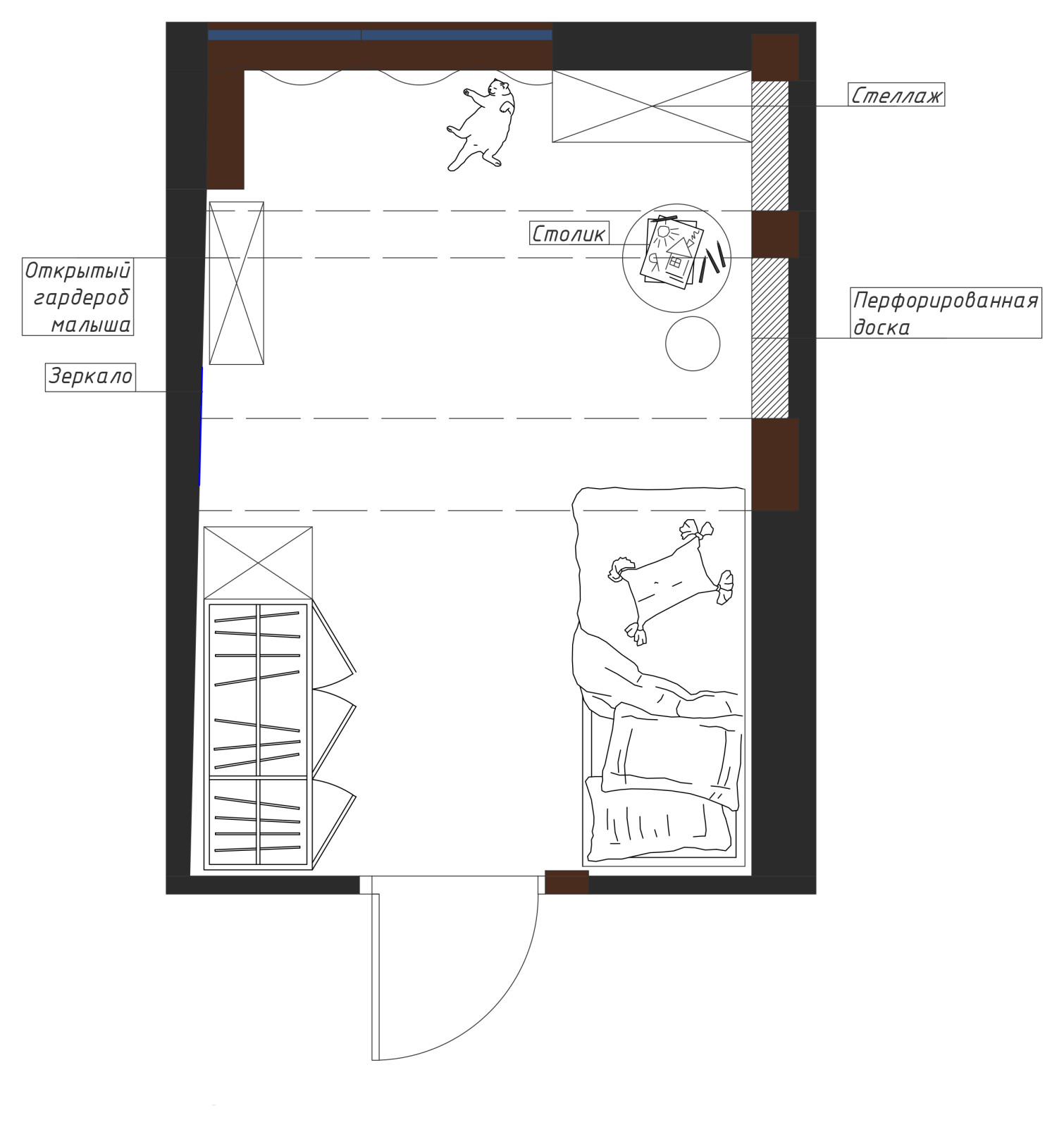
Детская комната для девочки
Планировочное решение на возраст до 7 лет
Другие фотографии в проекте
Вопросы к фото 0
Задайте вопрос
Вам ответят эксперты. Пришлем уведомление, когда вам ответят

Дизайнеры интерьера
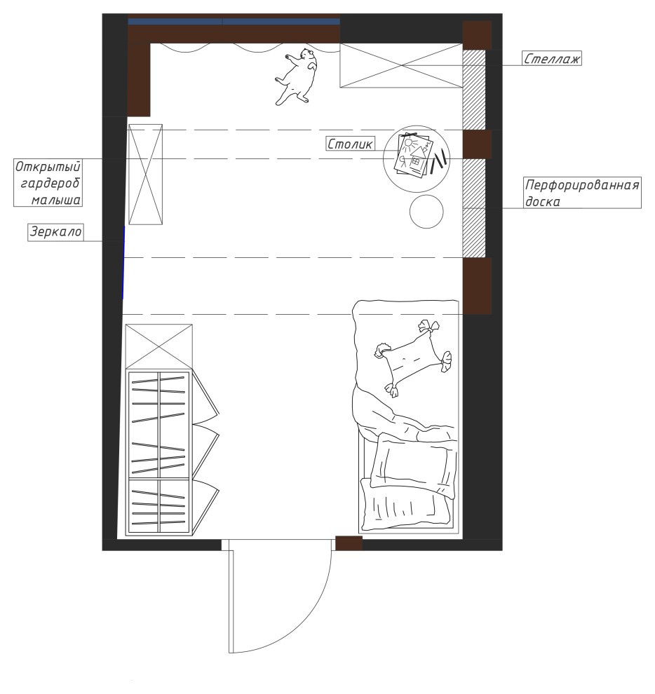
0
Планировочное решение на возраст до 7 лет
Другие фотографии в проекте
Вам ответят эксперты. Пришлем уведомление, когда вам ответят