Другие фотографии в проекте Деревянный дом из бруса по проекту 53 ПБ
Вам ответят эксперты. Пришлем уведомление, когда вам ответят
Профилибрус - строительство деревянных домов.
Проектирование и строительство
0
отзывов
0
Рейтинг
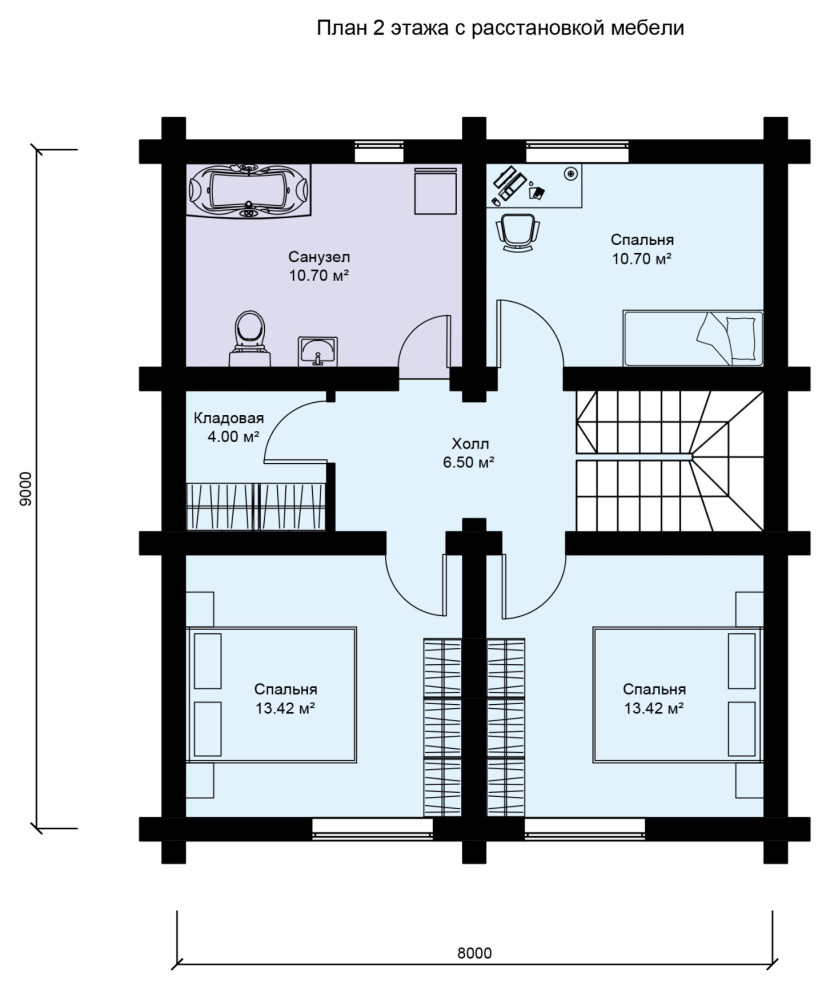
Деревянный дом из бруса? . . Подходит как для сезонного, так и для круглогодичного проживания. . . Осуществляем строительство домов из профилированного или клееного бруса собственного производства. . . Проект двухэтажного дома из бруса привлекает своей лаконичностью: правильные формы, двухскатная крыша, крытое крыльцо при входе в дом... . . ? 2 санузла . ?4 спальни, одну из которой можно переоборудовать в кабинет? . ? просторная кухня-столовая . ?техническое помещение . ?кладовая . . Мы строим по типовым и индивидуальным проектам, присылайте свои проекты на бесплатный расчет ?