logo
Дача в СНТ Рябинка

Другие фотографии в проекте Дача в СНТ Рябинка

Вопросы к фото 0

Задайте вопрос

Вам ответят эксперты. Пришлем уведомление, когда вам ответят

Рустика, видимые стропила, дача, дом, дом из газобетона, каменный дом, проект дачи, проект дом, скатная крыша

Андрей Карапетян

Андрей Карапетян

Архитекторы

Смотреть профиль

10

отзывов

5

Рейтинг

Дача в СНТ Рябинка

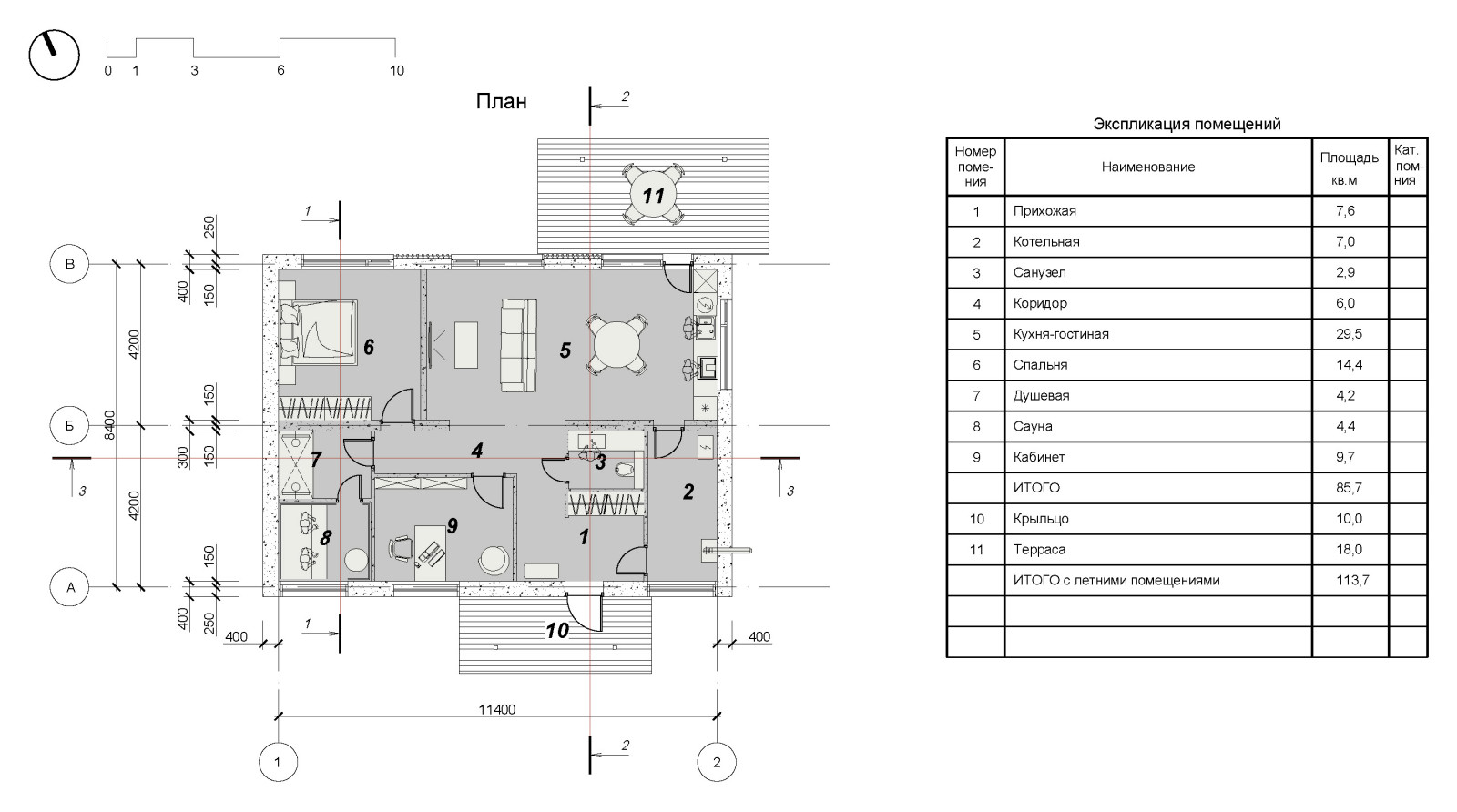
Проект дачи в СНТ #Рябинка . Проектирование: 2024 . Статус: идет строительство . . Скромный одноэтажный дом с энергоэффективной однослойной кладкой из газобетона D300 задуман изначально как дача, но с возможностью проживания зимой в выходные и праздники. В связи с этим, объект должен получиться не слишком дорогим в застройке, но тем не менее отвечающим требованиям к постройкам всесезонного использования. Принята простая конструктивная система: пятистенок с двускатной крышей на наслонных стропилах. Отсутствует подшива свесов. . . . Фундамент: мелкозаглубленная монолитная ж/б лента с теплоизоляцией отмостки; . Полы: монолитная ж/б плита по песчанному основанию; . Наружные стены: кладка из газобетонного блока D300 400мм; . Внутренние стены и перегородки: из газобетонного блока D600 . Фронтоны: деревянный каркас; . Крыша: деревянная стропильная система. . . Отделка: . Тонкослойная штукатурка по газобетону; . Отделка сухим строганым бруском на основании из влагостойкой фанеры; . Крыльцо и терраса покрыты палубной доской из массива лиственницы.

Вопросы к фото 0