
Дизайнеры интерьера
5
·
10 отзывов
Д-1912 | Квартира для юриста в Екатеринбурге
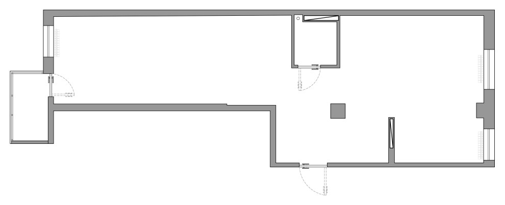
Планировочное решение: . Квартира площадью 62,5 кв.м., имеет вытянутую форму и окна на две стороны. Изначально, эта квартира была не жилым помещением - мастерской. Поэтому нам было необходимо разместить душ, туалет, в границах мокрой зоны, сформировать кухню-гостиную с барной стойкой, расположить закрытую гардеробную-прачечную, выделить спальную комнату и сделать зону отдыха на балконе. . . . Концептуальное решение: . Решая задачи, которые перед нами стояли, мы начали с формирования функциональных зон. Поскольку квартира не имела внутренних стен и перегородок, решено было сохранить свободную планировку, но при этом необходимо было обособить два помещения: санузел и гардеробную-прачечную. . Светопрозрачный блок санузла мы разместили в центре квартиры, тем самым разделили спальню и кухню-гостиную. . А гардеробную-прачечную расположили таким образом, чтобы обособить прихожую и сформировать кухню-нишу. . Материалы в этот проект были подобраны таким образом, чтобы подчеркнуть образ жизни заказчика: брутальная рельефная штукатурка, в сочетании с теплым благородным деревом, и все это на звонком белом фоне. .
Другие фотографии в проекте
Вопросы к фото 0
Задайте вопрос
Вам ответят эксперты. Пришлем уведомление, когда вам ответят




