
Архитекторы
5
·
10 отзывов
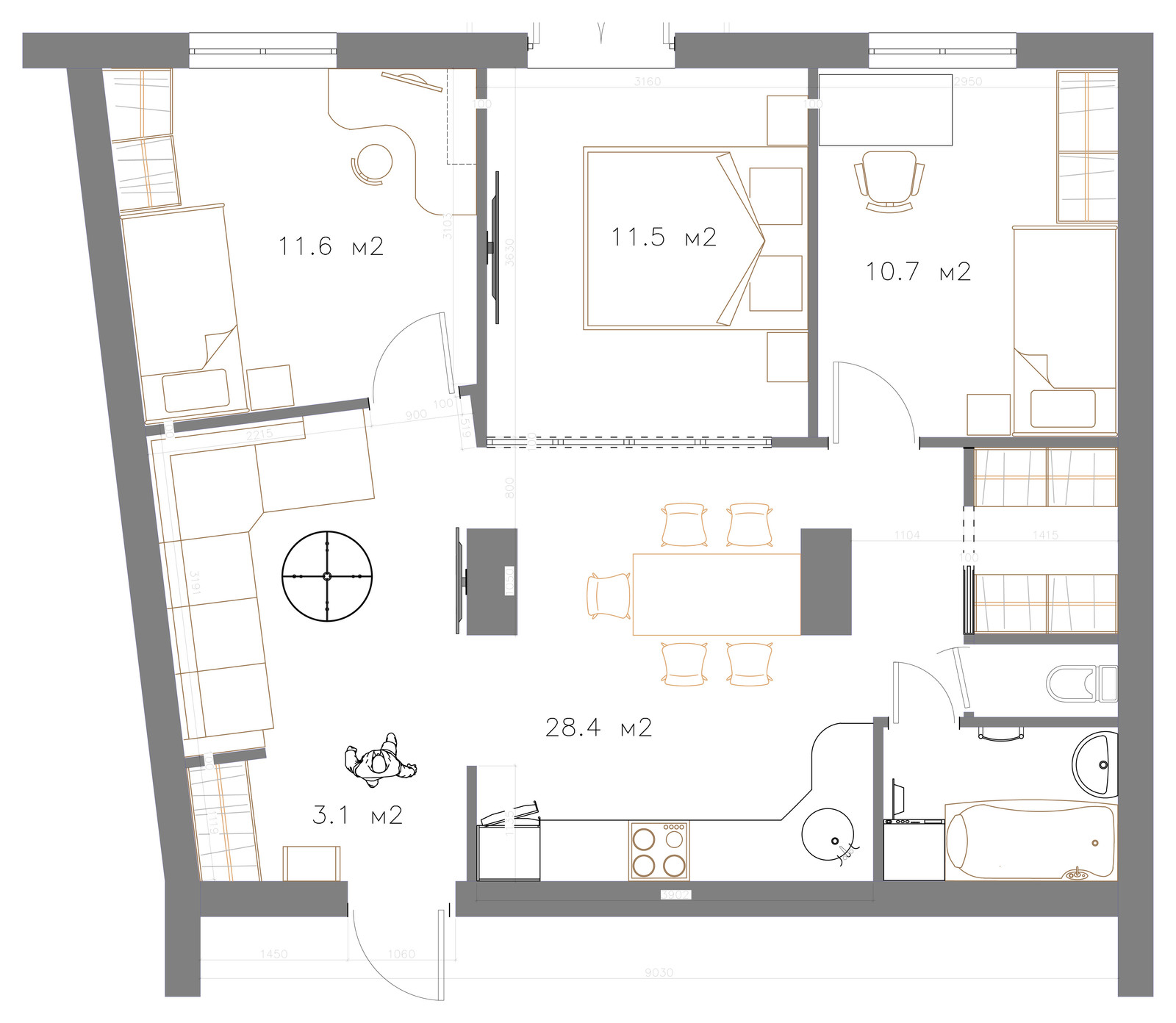
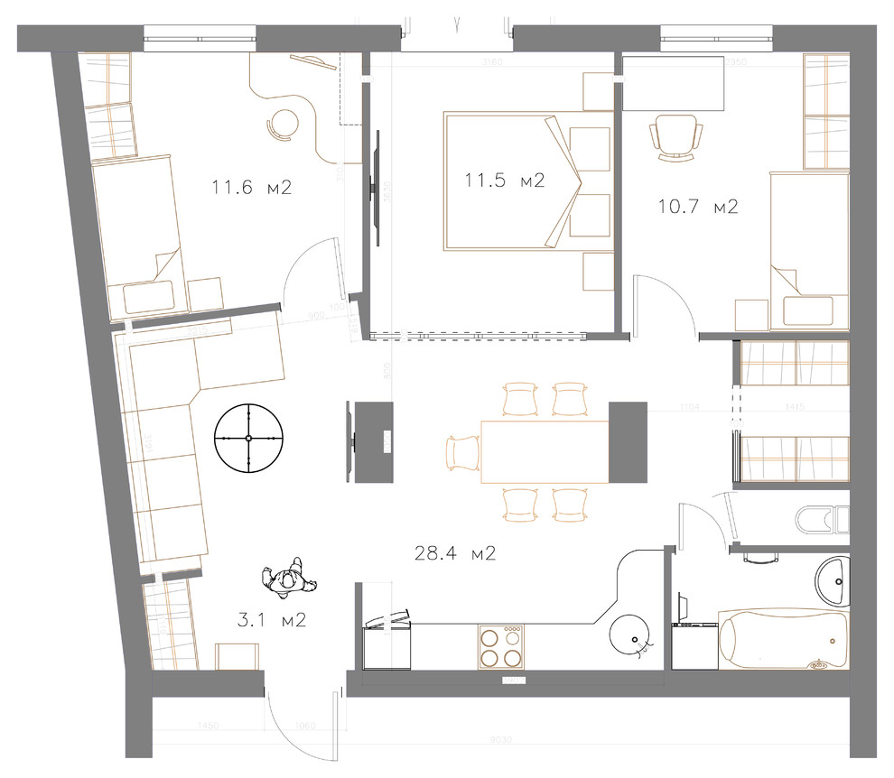
Четырешка из сталинской двушки, Волгоград
Сталинская квартира 73 м2, двухкомнатная, линейной планировки. Из нее сделана 4-комнатная. Пришлось переделывать газ на электричество и согласовывать это. . . Есть интересное обсуждение этой квартиры на форуме: . . https://www.houzz.ru/discussions/4534247/pomogite-ponyaty#20122649
Другие фотографии в проекте
Вопросы к фото 0
Задайте вопрос
Вам ответят эксперты. Пришлем уведомление, когда вам ответят




