
Архитекторы
0
Cabina Nina
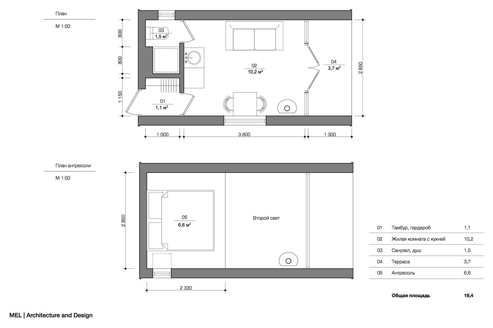
Небольшой типовой дом с традиционной двускатной крышей имеет размер 6 х 3 метра и вмещает в себя жилую комнату с кухней, антресоль со спальным местом, санузел, душ и крытую террасу. Конструкция из утепленных панелей полностью изготавливается на заводе и монтируется на месте за один день. Конструкция дома собирается из структурных теплоизоляционных панелей, представляющих собой слой пенополитстирола, заключенного между двумя листами влагостойкой древесно-стружечной плиты OSB. Это уникальный строительный материал, обладающий большой механической прочностью, очень высокой теплозащитой и абсолютной экологичностью при невысокой стоимости. Технология использования такой сэндвич-панели в строительстве называется каркасно-панельной. Панель толщиной 175 мм сопоставима по свом теплотехническим характеристикам со стеной из кирпича толщиной 2,5 м. Домик имеет большой выбор наружней отделки крыши и фасадов, что делает его индивидуальным и подходящим для самых разных целей. В стандартных комплектациях использованы традиционная дранка из лиственницы, гибкая черепица всех цветов и наиболее долговечное фальцевое покрытие из стали или цинк-титана. Под отделкой предусмотрена дополнительная гидроизоляция. Торцевой фасад может быть отделан панелями из фиброцемента различных цветов, либо просто окрашен, для более экономичных вариантов. Дом предназначен для всесезонного использования и может быть укомплектован небольшой печью-камином.
Другие фотографии в проекте
Вопросы к фото 0
Задайте вопрос
Вам ответят эксперты. Пришлем уведомление, когда вам ответят




