
Архитекторы
0
Cabina Nina
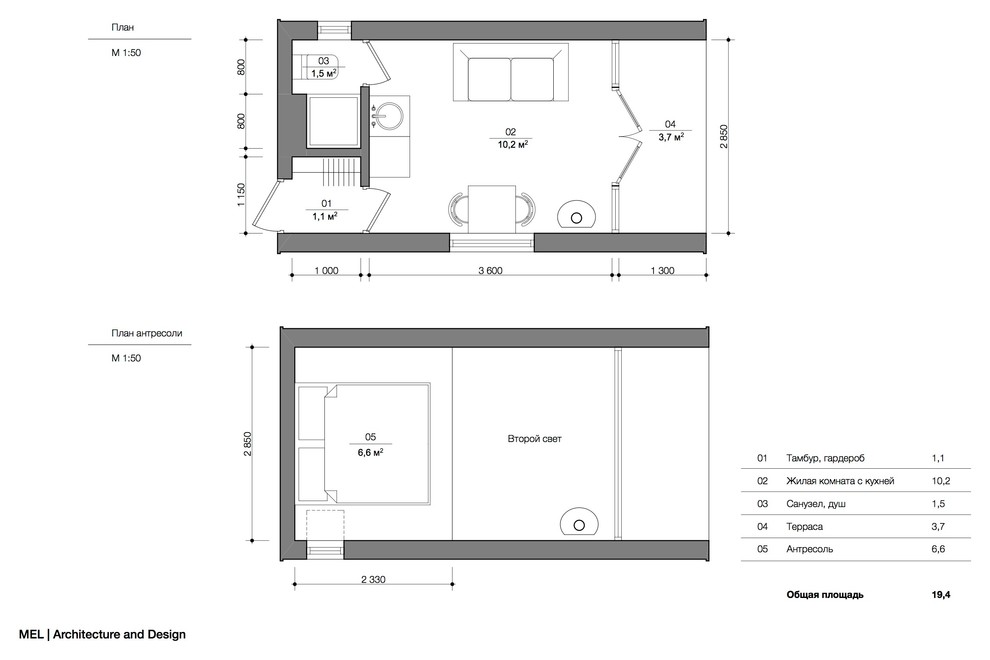
Небольшой типовой дом с традиционной двускатной крышей имеет размер 6 х 3 метра и вмещает в себя жилую комнату с кухней, антресоль со спальным местом, санузел, душ и крытую террасу. Конструкция из утепленных панелей полностью изготавливается на заводе и монтируется на месте за один день. Конструкция дома собирается из структурных теплоизоляционных панелей, представляющих собой слой пенополитстирола, заключенного между двумя листами влагостойкой древесно-стружечной плиты OSB. Это уникальный строительный материал, обладающий большой механической прочностью, очень высокой теплозащитой и абсолютной экологичностью при невысокой стоимости. Технология использования такой сэндвич-панели в строительстве называется каркасно-панельной. Панель толщиной 175 мм сопоставима по свом теплотехническим характеристикам со стеной из кирпича толщиной 2,5 м. Домик имеет большой выбор наружней отделки крыши и фасадов, что делает его индивидуальным и подходящим для самых разных целей. В стандартных комплектациях использованы традиционная дранка из лиственницы, гибкая черепица всех цветов и наиболее долговечное фальцевое покрытие из стали или цинк-титана. Под отделкой предусмотрена дополнительная гидроизоляция. Торцевой фасад может быть отделан панелями из фиброцемента различных цветов, либо просто окрашен, для более экономичных вариантов. Дом предназначен для всесезонного использования и может быть укомплектован небольшой печью-камином.
Другие фотографии в проекте
Вопросы к фото 0
Задайте вопрос
Вам ответят эксперты. Пришлем уведомление, когда вам ответят
Похожие фотографии

Строительство жилого дома в Орехово
Строительная компания Гарден

БАНЯ ПРИ ЗАГОРОДНОМ ДОМЕ, МОСКОВСКАЯ ОБЛАСТЬ, 160 м2
Источник вдохновения для домашнего уюта: одноэтажный, деревянный, бежевый частный загородный дом среднего размера в современном стиле с двускатной крышей и черепичной крышей
Нина Зайцева

Дом-скрепка
Источник вдохновения для домашнего уюта: одноэтажный, деревянный, бежевый частный загородный дом среднего размера в стиле модернизм с двускатной крышей, металлической крышей, серой крышей и отделкой планкеном
Семён Ельштейн

Дом-скрепка
Стильный дизайн: одноэтажный, деревянный, бежевый частный загородный дом среднего размера в стиле модернизм с двускатной крышей, металлической крышей, серой крышей и отделкой планкеном - последний тренд
Семён Ельштейн

Дом-скрепка
Идея дизайна: одноэтажный, деревянный, бежевый частный загородный дом среднего размера в стиле модернизм с двускатной крышей, металлической крышей, серой крышей и отделкой планкеном
Семён Ельштейн

Одноэтажный коттедж в Песках
На фото: одноэтажный, деревянный, разноцветный частный загородный дом среднего размера в современном стиле с двускатной крышей, металлической крышей, серой крышей и отделкой планкеном
Архитектурно-строительное бюро ASTRAGAL ARCHITECTS

Одноэтажный коттедж в Песках
Стильный дизайн: одноэтажный, деревянный, разноцветный частный загородный дом среднего размера в современном стиле с двускатной крышей, металлической крышей, серой крышей и отделкой планкеном - последний тренд
Архитектурно-строительное бюро ASTRAGAL ARCHITECTS

Одноэтажный коттедж в Песках
Пример оригинального дизайна: одноэтажный, деревянный, разноцветный частный загородный дом среднего размера в современном стиле с двускатной крышей, металлической крышей, серой крышей и отделкой планкеном
Архитектурно-строительное бюро ASTRAGAL ARCHITECTS

Одноэтажный коттедж в Песках
На фото: одноэтажный, деревянный, разноцветный частный загородный дом среднего размера в современном стиле с двускатной крышей, металлической крышей, серой крышей и отделкой планкеном
Архитектурно-строительное бюро ASTRAGAL ARCHITECTS

Одноэтажный коттедж в Песках
Источник вдохновения для домашнего уюта: одноэтажный, деревянный, разноцветный частный загородный дом среднего размера в современном стиле с двускатной крышей, металлической крышей, серой крышей и отделкой планкеном
Архитектурно-строительное бюро ASTRAGAL ARCHITECTS

Одноэтажный коттедж в Песках
Свежая идея для дизайна: одноэтажный, деревянный, разноцветный частный загородный дом среднего размера в современном стиле с двускатной крышей, металлической крышей, серой крышей и отделкой планкеном - отличное фото интерьера
Архитектурно-строительное бюро ASTRAGAL ARCHITECTS

Одноэтажный коттедж в Песках
Идея дизайна: одноэтажный, деревянный, разноцветный частный загородный дом среднего размера в современном стиле с двускатной крышей, металлической крышей, серой крышей и отделкой планкеном
Архитектурно-строительное бюро ASTRAGAL ARCHITECTS




