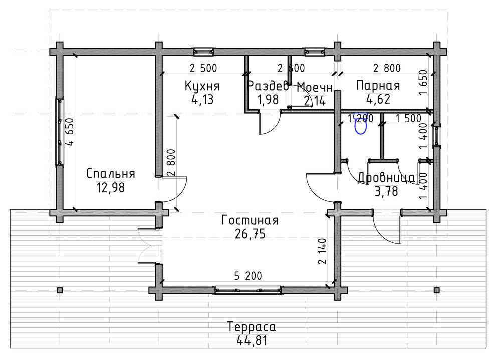
Баня из бруса

Другие фотографии в проекте Баня из бруса

Баня из бруса

Вопросы к фото 0

Задайте вопрос

Вам ответят эксперты. Пришлем уведомление, когда вам ответят

баня, брус, деревянные дома, проект, терраса

Aleksandr Davydov

Aleksandr Davydov

Архитекторы

Смотреть профиль

0

отзывов

0

Рейтинг

Баня из бруса

Александр Давыдов

Вопросы к фото 0