
Архитекторы
5
·
8 отзывов
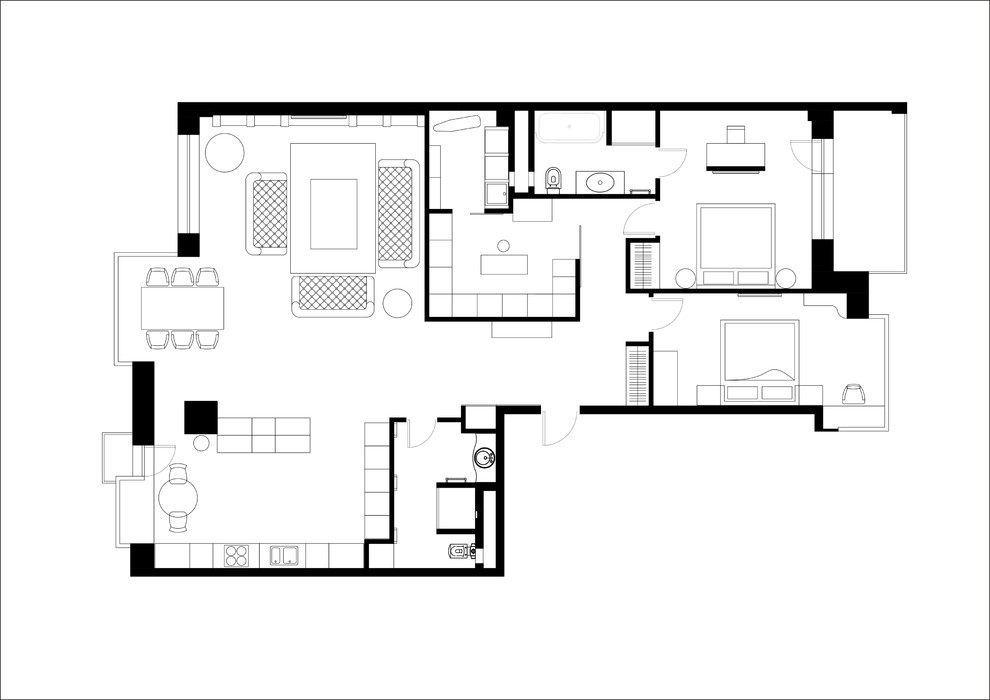
Apartment on Ozerkovskaya embankment
The apartment with total area of 164 square meters in the modern building in the heart of Moscow. The interior is designed in the style of "loft" extremely trendy and up to date lately. . . The vast expanse of flat, absolutely free planning and no need to cram an incredible amount of space allowed to create interior, entirely consistent style. . . Living room-kitchen area of 78 sqm, 2 bedrooms, 2 bathrooms, dressing room and laundry room - that's the whole range of spacious and comfortable rooms. By maximizing the preservation of open space creates a feeling of lightness and can be seen that the apartment is really big.
Другие фотографии в проекте
Вопросы к фото 0
Задайте вопрос
Вам ответят эксперты. Пришлем уведомление, когда вам ответят




