
Архитекторы
0
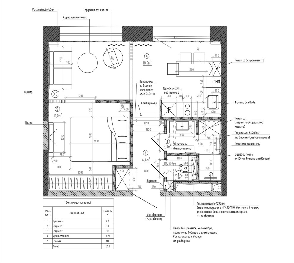
Апартаменты 39 квадратных метров
Светлые апартаменты для молодой пары в стиле модерн. Проект . разрабатывался долго и тщательно, так как пожеланий заказчиков было . много, некоторые из них противоречили друг другу. Тем не менее, со . временем нам удалось прийти к идеальному сочетанию минимализма и . декоративных элементов интерьера.
Другие фотографии в проекте
Вопросы к фото 0
Задайте вопрос
Вам ответят эксперты. Пришлем уведомление, когда вам ответят




