logo
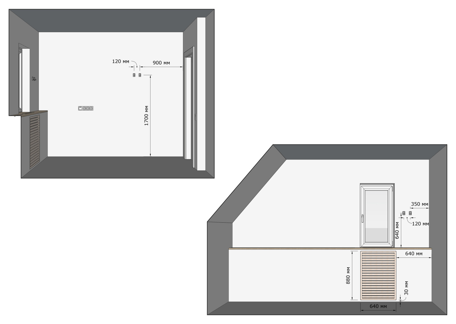
Редизайн интерьера  дома в коттеджном посёлке "Рассоха".

Другие фотографии в проекте 73,7 м.кв. - Редизайн интерьера дома в коттеджном посёлке "Рассоха".

Редизайн интерьера  дома в коттеджном посёлке "Рассоха".
Редизайн интерьера  дома в коттеджном посёлке "Рассоха".
Редизайн интерьера  дома в коттеджном посёлке "Рассоха".
Редизайн интерьера  дома в коттеджном посёлке "Рассоха".
Редизайн интерьера  дома в коттеджном посёлке "Рассоха".

Вопросы к фото 0

Задайте вопрос

Вам ответят эксперты. Пришлем уведомление, когда вам ответят