logo

В гостях: Квартира архитектора, которую решили сдать

36 метров в Переделкине отремонтировали в рекордно короткие сроки

Houzz Россия
Houzz Россия

1 июля 2018

Обновлено 19 авг. 2018

В гостях: Квартира архитектора, которую решили сдатьОльга Шангина
Архитектор Артем Юмагулов изначально планировал здесь совсем другой дизайн. В 36-метровую однокомнатную квартиру он собирался въехать со своей семьей. Поэтому первый вариант (3D-модель можно посмотреть в альбоме архитектора) подразумевал перепланировку пространства для семьи с двумя детьми. Но на семейном совете решили повременить с переездом и сделать ремонт без перепланировки. А саму квартиру пока что сдавать. Так здесь появились яркие дополнительные цвета, функциональная мебель и простые решения для хранения.
В гостях: Квартира архитектора, которую решили сдатьОльга Шангина
О проекте Место: Москва Год: 2018 Размер: 38 кв.м Кто здесь живет: Паата Бекаури Бюджет: 880 тысяч рублей с мебелью и техникой Автор проекта: архитектор Артем Юмагулов, архитектурное бюро Artemuma Фото: Ольга Шангина
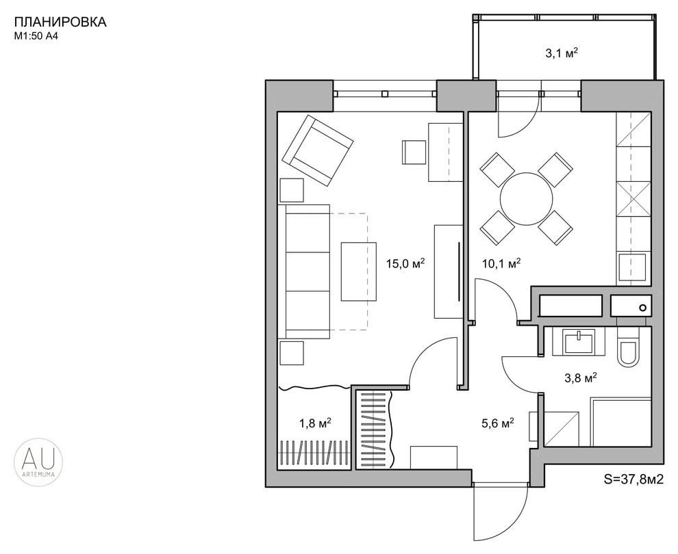
План квартиры
В гостях: Квартира архитектора, которую решили сдатьОльга Шангина
В выборе отделочных материалов, мебели и аксессуаров Артем исходил из соображений бюджета. Поэтому материалы здесь в основном из Leroy Merlin, потолки — натяжные (выравнивать было бы дороже), на стенах обои под покраску, мебель — IKEA и Hoff. Зато на полу — паркетная доска, а не ламинат, так что можно ходить босиком.
В гостях: Квартира архитектора, которую решили сдатьОльга Шангина
Сначала Артем хотел сделать стены нейтрального бледно-голубого цвета и поставить ярко-синий диван. Но в процессе концепция изменилась: стены стали насыщенно-голубыми, диван — темно-серым. Пространство гардеробной отделили желтой занавеской: решение с занавеской, как и в гардеробной нише в прихожей, тоже было самым бюджетным. Такой яркий вариант подошел молодому человеку, вселившемуся в квартиру, Паате Бекаури. Паата родом из Грузии, но в Москве уже давно. Выпускник Российской таможенной академии, экономист-международник по специальности, Паата некоторое время жил на Украине, а теперь занимается клубной деятельностью. В Москву он перебрался вслед за братом — приехал посмотреть город и остался. Раньше Паата жил около Третьего транспортного кольца, а потому особенно оценил тишину Переделкина с Мещерским парком, видным из окна квартиры.
В гостях: Квартира архитектора, которую решили сдатьОльга Шангина
Собственных вещей и интерьерных аксессуаров в съемной квартире у Пааты немного. «Я приехал сюда на такси, со мной было всего три сумки». Но картины в комнате и на кухне — то, что он привнес в интерьер на свой вкус. И тот совпал с общим настроем квартиры. На кухне и в комнате над диваном висят цветные зеркала. «В гостиницах на стены обычно вешают постеры, а мне хотелось сделать что-то менее тривиальное. Я купил маленькие зеркала и витражную краску. Правда, её оказалось сложно наносить на поверхность — появлялись пузыри. Проще было бы наклеить цветную пленку», — объясняет Артем.
В гостях: Квартира архитектора, которую решили сдатьОльга Шангина
Паата подобрал к зеркалам картины. «В нашем клубе днем проходят уроки изобразительного искусства. Голубую картину с мечтателем, летящим на воздушных шариках, мне подарили. Потом к этой картине я выбрал в пару большого синего попугая на оранжевом фоне в цветах квартиры», — рассказывает он. Большого попугая Паата планирует повесить над рабочим столом. Комнату освещают четыре потолочных спота. Из-за того, что при теплом освещении голубой цвет стен превращался в грязно-лиловый, Артем заменил лампы с теплых на нейтральные — так при вечернем освещении стены остаются голубыми.
В гостях: Квартира архитектора, которую решили сдатьОльга Шангина
В гардеробной у молодого человека царит идеальный порядок. В нише есть собственное освещение. «До того как купить в квартиру торшер, я зажигал в гардеробной свет и закрывал штору, чтобы был уютный свет в комнате», — рассказывает Паата. К ярким краскам гардеробной — голубому цвету стен и желтой занавеске — Артем добавил композицию из таких же разноцветных крючков.
В гостях: Квартира архитектора, которую решили сдатьОльга Шангина
В гостиной: краска Tikkurila; диван Hoff; стеллаж, стол, стулья, настольная лампа, гардеробная, р азноцветные самоклеящиеся крючки, зеркала — всё ИКЕА; картины — собственность Пааты
В гостях: Квартира архитектора, которую решили сдатьОльга Шангина
В отличие от комнаты и кухни, санузел сделан нейтральным. Белым стенам из бюджетной плитки 10х10 см и сантехнике вторит белая арматура — смесители на раковине и в душе, полотенцесушитель, белые крючки. Подходящие по стилю крючки Артему пришлось перекрасить в нужный оттенок — их было сложно подобрать, так как на практике нюансы белого сильно разнились.
В гостях: Квартира архитектора, которую решили сдатьОльга Шангина
Между зоной умывальника и душевой зоной есть перепад по высоте в 10 см, на котором стоит стиральная машина. (Если внимательно приглядеться, на фото видно, что граница душевого поддона имеет слева перепад в одну плитку по внешней стороне). Этот небольшой подиум получился из-за необходимости поднять трап на нужную высоту, чтобы проложить канализационную трубу под правильным углом. В санузле: тумба с раковиной ИКЕА; зеркало Hoff; смесители Elghansa; унитаз Jika
В гостях: Квартира архитектора, которую решили сдатьОльга Шангина
Кухня решена в общих цветах квартиры: на фоне ярко-синих стен выделяются оранжевые стулья. На полу — та же узорчатая плитка, что и ванной. «Я решил положить сюда плитку с узором, чтобы разбавить крашеные стены. Так как квартира маленькая, все решения в ней — единые», — объясняет Артем.
В гостях: Квартира архитектора, которую решили сдатьОльга Шангина
Посреди композиции из цветных зеркал на кухне Паата разместил небольшую картину с Буддой. «Я три месяца жил и работал во Вьетнаме. Там увидел этого Будду и купил. С тех пор он ездит со мной с квартиры на квартиру — я вешаю над столом эту картину везде, где живу».
В гостях: Квартира архитектора, которую решили сдатьОльга Шангина
Рабочая часть кухни сделана в нейтральных тонах — Артем повторил то же сочетание белого и натурального дерева, что и в ванной комнате. Смеситель на мойку тоже поставили в белом варианте. Настенные ящики подняли на высоту 76 см, чтобы сюда вошел холодильник нужной высоты и чтобы сохранить единую линию фасада с учетом развески вытяжки. «Паата высокий — ему удобно», — отмечает Артем. На кухне: напольная плитка Leroy Merlin; кухня, стол, стулья и занавески IKEA
В гостях: Квартира архитектора, которую решили сдатьОльга Шангина
При кухне есть остекленный балкон. В теплое время года Паата ставит сюда стол и стулья, чтобы завтракать на улице. Хотя под окном дорога, машины проезжают редко. Из окна открывается вид на Мещерский парк. «Я люблю бегать в лесу, — говорит Паата, — особенно по понедельникам, когда у меня выходной». ОБ АВТОРЕ ПРОЕКТА… Перейдите на страницу Артема Юмагулова, архитектурное бюро Artemuma чтобы изучить другие работы из портфолио архитектора и связаться с ним
В ВАШЕМ ГОРОДЕ… Найдите архитектора на Houzz в вашем городе — закажите собственный проект МЫ ЛЮБИМ ХОДИТЬ В ГОСТИ… Хотите стать героем следующей статьи? Напишите на editorial@flatica.ru и приложите несколько фотографий своего интерьера (достаточно съемки на смартфон). Мы обязательно свяжемся с вами, если примем решение о публикации!

Комментарии 63

fedorka63

6 л.

стрем
Цвет настроения - синий...
Всем привет. Спасибо всем за ваше обсуждение и внимание. Интересно, что все всё поняли и прочувствовали правильно. Просто захотелось сделать все ярко и лаконично (раз нет заказчика). Задача была вписаться в 800т.р., но при этом не хотелось терять в качестве. По той же причине не снесли ни одной стены. Еще раз всем спасибо!

Оставьте комментарий

Читать похожие статьи