logo

В гостях: Для родного брата — ремонт «от дизайнера»

Круги и зигзаги, дополнительные цвета, светящиеся ниши и скандинавский дизайн в одной трехкомнатной квартире

Яна Иванченко
Яна Иванченко

26 апр. 2016

Обновлено 13 мая 2016

Постоянный автор HouzzRU, историк искусства. Интерьерный журналист с 2004 года, работала внештатным автором в журнале SALON и для его приложений «Техномания» и «Декор», писала статьи для журналов «Идеи вашего дома» и Interior Digest, для приложений к журналу «Интерьер+Дизайн» («100% ВАННЫЕ» и «100% КУХНИ»), а также для Elle Decoration (под именем «Антонина Носикова»). . . Несколько лет посвятила дизайн-бюро, занимавшемуся архитектурой и мебелью, где работала заместителем директора, знакома со сложным и увлекательным процессом воплощения проектов в жизнь не понаслышке.

Мы уже рассказывали истории про то, как в процессе работы над интерьером заказчик и девушка-дизайнер становятся любящей парой. Знаем, каково архитектору строить дом для собственной семьи. Эта история про то, легко ли дизайнеру учесть все пожелания семьи заказчика, если заказчик — твой родной брат.
В гостях: Для родного брата — ремонт «от дизайнера»
«Дима — мой родной брат, но это, наверное, мне только усложнило работу. Дима со Светой знакомы еще со школы, они учились в параллельных классах. Но встречаться стали уже после выпуска», — рассказывает Елена Юзько, автор дизайн-проекта квартиры. Теперь у Дмитрия и его жены Светланы двое сыновей — Владимир и Иван.

«Дима со Светой позвали меня еще на этапе поисков подходящего жилья, чтобы лучше понимать, что можно сделать с квартирой. У них были определенные требования к жилищу: чтобы у каждого из сыновей была своя комната, у них — отдельная спальня, а также гостевая комната, где можно собраться всем вместе и где могут остаться переночевать родственники. Но четырехкомнатную квартиру они уже не могли себе позволить. Поэтому мы искали трехкомнатную, которую можно расширить до четырех комнат. Выбирали в конкретном районе, где у детей находится школа».
В гостях: Для родного брата — ремонт «от дизайнера»
О проекте
Место: Квартира в старом доме в Москве
Размер: 84 кв.м вместе с балконом
Год: 2014
Кто здесь живет: Дмитрий и Светлана, их сыновья Владимир и Иван, а также кот Джонни
Автор проекта: Дизайнер Елена Юзько
Интересный факт: Автор проекта Елена — родная сестра Дмитрия, хозяина квартиры
Фото: Ольга Шангина

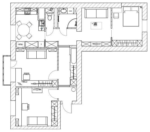
От входа в квартиру открывается светлый коридор, по левой стороне которого идут две детские комнаты, а за ними — кухня. Прямо — раздельный санузел. Направо в конце коридора — дверь в спальню хозяев, перед которой расположена проходная гостевая комната, она же — небольшая гостиная с телевизором и диваном напротив.

Ковер: BoConcept; кровать: Dreamland; кресло: ИКЕА; светильники: «Экспострой»
В гостях: Для родного брата — ремонт «от дизайнера»
«Раньше здесь была коммуналка, — продолжает Елена. — Дом построили в 1959 году, но от того интерьера не сохранилось никакого очарования. Здесь жили три семьи, все помещения были разные. Ни старого красивого паркета, ни лепнины в квартире уже не осталось. Только мусоропровод прямо на кухне! Так что дом не диктовал нам тот стиль помещений, который в старых постройках обычно хочется сохранить. Мы не стали сносить перегородки — не хотели делать перепланировку. И ее здесь особо нельзя сделать, потому что на кухне стоит газовая плита, и такую кухню нельзя объединять с другим помещением. Наоборот, мы добавили одну перегородку между хозяйской спальней и комнатой отдыха — мини-гостиной. Иногда к Диме со Светой приезжают ее родственники, брат с женой, и останавливаются там».
В гостях: Для родного брата — ремонт «от дизайнера»
Дмитрий и Светлана хотели видеть свою квартиру в современном стиле, без каких-либо классических элементов. «Ребята хотели, чтобы все было лаконично. Дети очень энергичные, они занимаются спортом. Поэтому не хотелось делать сплошные яркие цвета, а только вкрапления цвета», — объясняет Елена. Ее младшему племяннику Ване семь лет. Его комната — первая по коридору. В ней на потолке есть круглая ниша с подсветкой, которая меняет цвет и управляется с пульта или приложением на телефоне. «По площади детские комнаты почти одинаковые, но у старшего Владимира есть балкон».
В гостях: Для родного брата — ремонт «от дизайнера»
В Ваниной комнате в целях безопасности на окне стоит ограничитель белый забор вдоль подоконника. «Ваня любит забираться на подоконник и открывать окна. Поэтому в новой квартире мы поставили декоративный заборчик на окно», — говорит Елена. Окна выбрали с замками, чтобы родители не волновались за безопасность ребенка. За заборчиком стоят горшки с растениями.

С двух сторон от окна стеллажи-домики, сделанные на заказ. Все это вместе с тремя фасадами домов на стене за Ваниной кроватью создает в детской впечатление городской улочки с палисадником около дома. Вдоль окна стоит длинный рабочий стол, также сделанный на заказ по эскизам Елены: «К Ване приходит логопед, они занимаются вдвоем за столом».
В гостях: Для родного брата — ремонт «от дизайнера»
В гостях: Для родного брата — ремонт «от дизайнера»
Во всех жилых комнатах на пол положили пробковое покрытие с печатью под доску: хозяева любят ходить босиком. «На праздники Света любит надевать туфли на каблуках, а пробка хорошо выдерживает такую нагрузку», — добавляет Елена.

Фасады домиков за Ваниной кроватью тоже вырезаны из пробки: «Мы выбрали пробку, так как это торцевая стена. Строители вырезали нам домики с окнами форматом 15х20 см под фоторамки. А пока в окнах домов герои мультфильмов, которых нарисовала моя подруга Евгения и я вместе с ней.

Пробковое покрытие: «Экспострой»; полосатая подушка: ИКЕА; подушка с совами и собачка-светильник:«Огого»
В гостях: Для родного брата — ремонт «от дизайнера»
В гостях: Для родного брата — ремонт «от дизайнера»
Ванина комната делалась на вырост. Крыши домиков со временем легко убрать, и вместо домиков это будут простые стеллажи», — поясняет автор проекта.
В гостях: Для родного брата — ремонт «от дизайнера»
В гостях: Для родного брата — ремонт «от дизайнера»
В гостях: Для родного брата — ремонт «от дизайнера»
Комната старшего сына Дмитрия и Светланы оказалась для Елены самым интересным пространством с точки зрения дизайна: «Родители решили, что основным “заказчиком” этой комнаты будет сам Владимир. Они высказали только одно пожелание: чтобы комната сильно не отличалась по стилю от остальной квартиры. Это был мой первый опыт взаимодействия с ребенком как с клиентом, и мне невероятно понравилось! Ребенок, в отличие от взрослых, всегда готов на эксперименты — его захватывает все новое, он искренне и полностью вовлекается в проект». Владимир занимается плаванием. Ему уже 14 лет. На цветных полках напротив его дивана-кровати стоят книги, среди них — приз за первое место по плаванию.

Постер, кресло: ИКЕА
В гостях: Для родного брата — ремонт «от дизайнера»
«Я спрашивала пожелания племянника. Он хотел суперсовременный дизайн, чтобы в комнате было много мест хранения и большой стол — больше, чем у него был, чтобы было удобнее делать уроки», — говорит Елена. У Владимира уже была коллекция самолетиков, и для них Елена сделала открытую нишу около кровати. «Потом он увлекся солдатиками. Еще он мечтал, чтобы в комнате была ниша, подсвечивающаяся с пульта». Вместо одной потолочной ниши, как в комнате младшего племянника, в комнате Владимира Елена предложила вмонтировать в стену и потолок плоские лампы, которые управляются со смартфона. Чтобы цвет мог менять интерьер, стены комнаты — белые. «В результате комната всегда разная — в зависимости от настроения хозяина».

Стена справа от дивана-кровати, рядом с дверью в комнату, выкрашена белой маркерной краской: «Когда сюда приходят преподаватели, им удобно заниматься — можно писать на стене новые слова, изучая язык». На случай, если к Владимиру придет друг и останется ночевать, в комнате есть пуф-раскладушка: «Дети любят гостей и всегда им рады!»
В гостях: Для родного брата — ремонт «от дизайнера»
Пятого члена семьи, кота Джонни, хозяева в свое время нашли по дороге с дачи: «Ехали с дачи, остановились по дороге купить картошку. Среди мешков с картошкой сидел котенок. С тех пор мы шутим, что кота нашли в картошке».
В гостях: Для родного брата — ремонт «от дизайнера»
За комнатой Владимира расположена кухня. Одним из пожеланий Светланы было присутствие в интерьерах красного цвета: «У Светы любимый цвет красный», — говорит Елена. Поэтому она сделала акценты этим цветом в хозяйской части квартиры и добавила максимум красного в интерьер кухни. Полы, ниша для микроволновки, римские шторы подобраны одного цвета, но не яркого открытого красного, а благородного «припыленного».

Красные акценты кухни, а также мини-гостиной сделали под цвет напольной плитки: «Мы дали столярщикам кусочек плитки, чтобы они подобрали под нее цвета». Уравновесить красный решили спокойным серым в глянцевых фасадах мебели, выполненной на заказ. Стены тоже покрасили в серый.

Краска: Dulux; стулья и стол: Calligaris; потолочный светильник: Pirc от Artemide
В гостях: Для родного брата — ремонт «от дизайнера»
В высокой нише около окна Елена сделала подсветку по контуру. Но не красную, а желтую, в поддержку цветовых акцентов в двух детских. В этой нише на средней полке разместился небольшой телевизор — в детских и спальне хозяева принципиально не стали ставить телевизоры, хотя выходы для антенны и розетки под телевизор на случай будущих изменений запланированы в каждой комнате.
В гостях: Для родного брата — ремонт «от дизайнера»
В гостях: Для родного брата — ремонт «от дизайнера»
Кухонная мебель: «Стильные кухни»; техника: Neff

Волнистый рельеф плитки на фартуке кухни перекликается с волнистой фактурой фасадов встроенного шкафа в коридоре. Плитку выбрала сама хозяйка. Столешница и подоконники сделаны из искусственного камня.
В гостях: Для родного брата — ремонт «от дизайнера»
Справа от плиты во встроенном шкафу кухни спрятан мусоропровод. «Мусоропроводом внутри квартир во всем подъезде давно никто не пользуется. Но нам его не разрешили снести, хотя рабочий мусоропровод есть на лестнице. Поэтому мы зашили его шкафом справа — и для симметрии слева тоже сделали шкаф». Узкие шкафы-колонны до потолка скрыли недостатки изначальной планировки и создали дополнительные места для хранения.
В гостях: Для родного брата — ремонт «от дизайнера»
Между кухней и коридором стоит раздвижная дверь. «Кухню надо было закрывать, потому что здесь газ. Есть требования — мы их выполнили», — говорит Елена.
В гостях: Для родного брата — ремонт «от дизайнера»
В гостях: Для родного брата — ремонт «от дизайнера»
В конце коридора — две двери в раздельный санузел. «Сразу было решено, что в ванной комнате будет душевая кабина, так как дети уже подросли. Это очень сыграло нам на руку, потому что ванная маленькая». Оба помещения оформили в едином сине-белом колорите.

На стенах ванной рельефная плитка: одна стена синяя с белым бордюром, другая — белая с синим. «В эту плитку была влюблена Светлана, она настаивала на ней. У плитки не было готовых бордюров в наличии, поэтому мы резали ее, чтобы сделать бордюр», — вспоминает Елена.
В гостях: Для родного брата — ремонт «от дизайнера»
Нижнюю часть стен туалета отделали белым «кабанчиком». Геометрическую роспись стен с узором из треугольников выполнила сама Елена. В коридоре по пути от детских комнат к санузлу есть ночная подсветка.
В гостях: Для родного брата — ремонт «от дизайнера»
В гостях: Для родного брата — ремонт «от дизайнера»
Светильники: «Экспострой»

Направо в конце коридора — проход через красную гостиную в хозяйскую спальню. На месте гостиной и спальни до ремонта была одна большая комната с потолками высотой 3 м. Вдоль стены под потолком был большой выступ — там проходит балка. Разделив комнату перегородкой надвое, Елена решила замаскировать балку и в обеих комнатах сделала под ней ниши. Для экономии времени для гостиной выбрали белый глянцевый натяжной потолок. Чтобы максимально насытить светом комнату без окна, Елена украсила потолок итальянскими светильниками-шарами.
В гостях: Для родного брата — ремонт «от дизайнера»
Часы: BoConcept; аксессуары: ИКЕА, «Твой дом»

Напротив дивана — встроенная система хранения, сделанная на заказ на российском производстве по эскизам Елены. Цвет открытых ниш с полками подбирали точно в цвет плитки на кухне. Перед диваном стоит журнальный стол, который поднимается и раскладывается.

«Пространство мини-гостиной тоже получилось небольшим, но все же вместительным. За раскладывающимся столом может собраться до десяти человек. Диван тоже раскладывается, превращаясь в дополнительное спальное место, что было обязательным условием. На стену за диваном я нанесла геометрический орнамент, который зрительно расширяет пространство небольшой гостиной», — поясняет Елена.
В гостях: Для родного брата — ремонт «от дизайнера»
В гостях: Для родного брата — ремонт «от дизайнера»
Кровать: Dreamland; кресло: Calligaris

Между спальней и гостиной стоит раздвижная дверь. Высоту потолка в спальне чуть понизили, выстроив гипсокартонные потолки. В этой части в комнате изначально уже была ниша, ее оставалось лишь грамотно оформить. Изголовье кровати уходит в нишу под балкой. Ниша подсвечивается — цвет подсветки нейтральный, но, так как стена покрашена красным, из полос геометрического узора льется красный свет. В отличие от кухни, цвет стен спальни более насыщенно серый. Справа в стойке ниши есть вентиляционная решетка и доступ к стояку отопления. Слева от кровати — макияжный стол, выполненный на заказ. За зеркальными дверцами есть неглубокий шкаф. На дверцах узких боковых шкафчиков сделана подсветка — чтобы Светлане было удобнее, зеркало подсвечивается с трех сторон.
В гостях: Для родного брата — ремонт «от дизайнера»
Хозяйский гардероб напротив кровати также сделан на заказ. У него по краю — красный кант в поддержку красной темы.
В гостях: Для родного брата — ремонт «от дизайнера»
«Места для хранения в этом проекте были отдельной задачей — семья переехала из квартиры, где была полноценная гардеробная комната. На получившихся 11 квадратах в спальне удалось поставить и полноценную кровать, и туалетный столик, и очень вместительный гардеробный шкаф», — заключает Елена.

СМОТРИТЕ ТАКЖЕ…
Все 52 фотографии этой квартиры
В гостях: Для родного брата — ремонт «от дизайнера»
В гостях: Для родного брата — ремонт «от дизайнера»
МЫ ЛЮБИМ ХОДИТЬ В ГОСТИ…
Хотите стать героем следующей статьи? Напишите на editorial@flatica.ru и приложите несколько фотографий своего интерьера (достаточно съемки на смартфон). Мы обязательно свяжемся с вами, если примем решение о публикации!




Интерьерные съемки из спецпроекта «Houzz в гостях»

Комментарии 27

для семьи с двумя детьми очень мало мест хранения
ia200606

9 л.

Почему бюджетный вариант надо обязательно называть сиротским!!! Не все ставят диваны по 300 тыщ. Поносили и выбросили с легким сердцем. Макияжный столик в спальне совсем плох. Грубый и громоздкий. И ему там не место.
а где здесь скандинавский дизайн????

Оставьте комментарий

Читать похожие статьи