logo

Смета проекта с фото: Лаконичная кухня за 1 009 514 ₽

Дизайнер по просьбе Houzz комментирует смету реализации проекта

Саша Зайцева
Саша Зайцева

25 янв. 2021

Обновлено 23 февр. 2021

журналист, редактор

В этой квартире в новостройке живет девушка с собакой. Жилье хозяйка взяла в ипотеку, заранее отложила деньги на ремонт — приличный, чтобы не пришлось переделывать. Но бюджет был далеко не резиновым.

С первым дизайнером отношения не сложились — специалист отказался четко просчитать затраты и наметить план-график работ. Тогда заказчица обратилась к Анне Морозовой. Дизайнер предложила сбалансированный по тратам проект, в котором дорогие решения сочетаются с бюджетными. Рассказываем, во что обошлось обустройство традиционно самой дорогой части квартиры — кухни. Калькуляцию публикуем с незначительными округлениями.
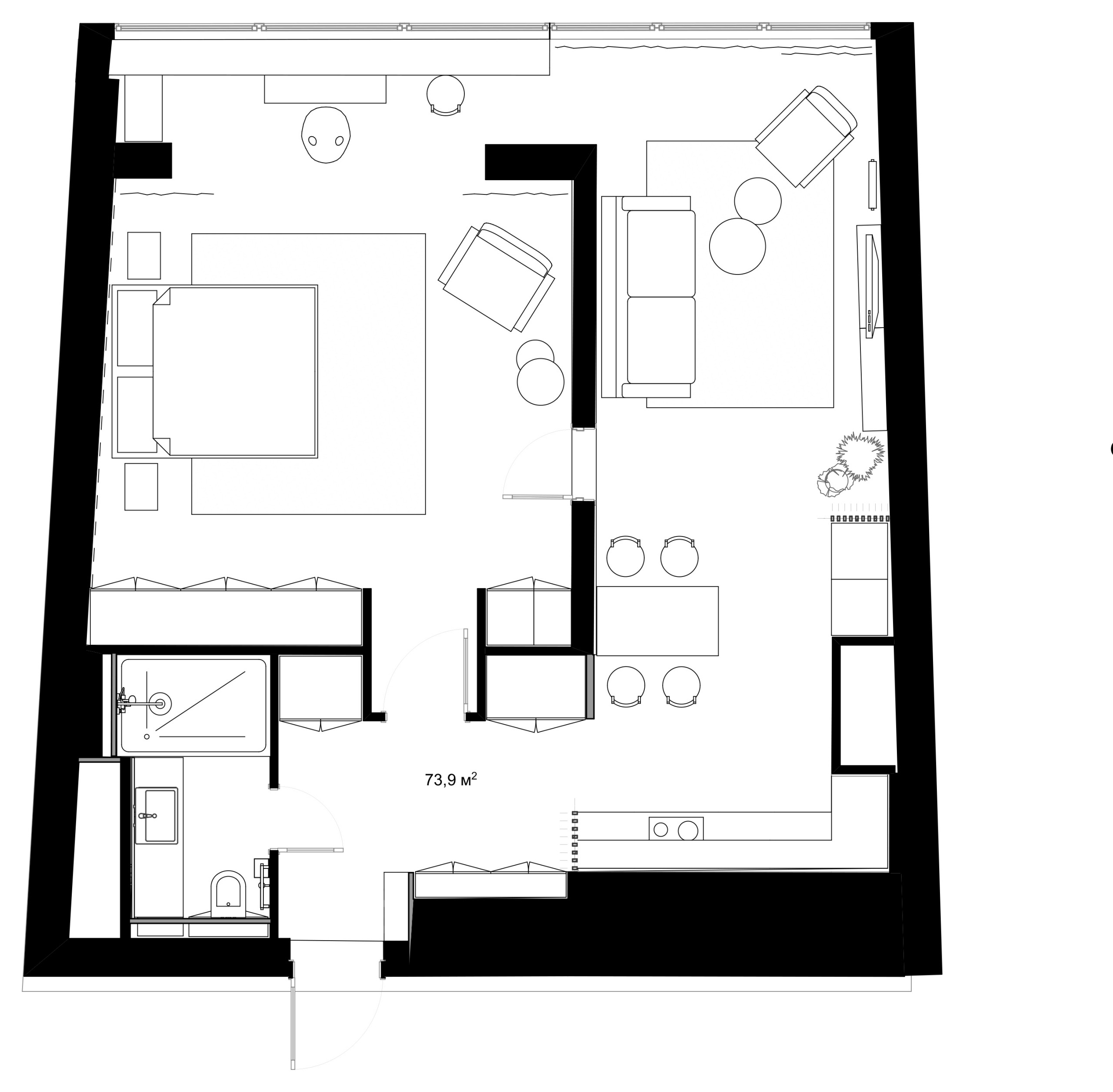
ПРОЕКТ Место : ЖК « Розмарин » , Москва Размер кухни: 11,2 кв.м Автор проекта : Анна Морозова, студия Aminteriors Год реализации: 2020 «С хозяйкой мы познакомились, когда у нее на руках уже был готовый проект и полное разочарование в ремонте: рабочие простаивали и грозили штрафами; стоимость проекта не ясна, графика нет, а денег впритык. Чтобы разморозить ремонт, мы немедленно отправились по магазинам и подобрали все отделочные материалы, а также выбрали производителя кухни. Мы систематизировали весь процесс ремонта — от шоп-листа и графика закупок до плана работ и развернутых спецификаций», — рассказывает Анна Морозова, дизайнер проекта.
На схеме: итоговая планировка « евродвушки » с угловой кухней. Кухонный гарнитур с двух сторон подчеркнут перегородками из деревянных реек Работа дизайнера: 34 800 ₽ *Отдельно, в пересчете на площадь кухни Работа отделочников: 139 200 ₽ Черновые материалы: 41 760 ₽ Чистовые материалы: 116 900 ₽ Широкоформатный гранит — 25 000 ₽. Ламинат — 15 200 ₽. Краска для стен и потолка Dulux — 5 000 ₽. Перегородки Drakewood из шпона ореха — 71 000 ₽. Плинтус в зоне кухни — 700 ₽.
Мебель, оборудование, техника: 676 854 ₽ Кухня «Наша Марка», со столешницей — 372 054 ₽. Стол обеденный ИКЕА — 11 500 ₽. Стулья SK Design — 28 000 ₽. Холодильник Samsung — 65 000 ₽. Духовой шкаф AEG — 47 500 ₽. Плита, Bosch — 16 000 ₽. Посудомоечная машина AEG — 54 000 ₽. Микроволновка Bosch — 27 000 ₽. Вытяжка — 10 000 ₽. Мойка, Omoikiri — 12 900 ₽. Смеситель, Рaulmark Holstein — 4 950 ₽. Подвесы над столом, Syneil — 27 000 ₽. Встроенные светильники, Maytoni Gyps — 950 ₽. _________________________ КУХНИ С ГАРНИТУРОМ ПОХОЖЕЙ ЦЕНЫ… ► Кухни под потолок за 400 000 ₽ — 4 проекта в Москве и Петербурге ► 4 кухни за 300–400 тысяч — Канск, Казань, Ростов-на-Дону и Питер _________________________
На чем сэкономили: на столешнице — она из пластика, но смотрится как камень (выглядит намного дороже, чем стоит, и ухаживать легко). На что потратились: на бытовую технику (заказчица хотела качественную встройку — чтобы и выглядела хорошо, и служила дольше) и фасады под крашеной эмалью, чтобы попасть в нужный оттенок. «Это было абсолютно оправданно, так как все остальные встроенные шкафы сделаны из ЛДСП, а их большинство. Было важно сохранить эстетическое единство», — говорит Анна Морозова. —————————————— ПРОЕКТ ЦЕЛИКОМ… ► Смотрите другие ракурсы кухни и остальные помещения в профиле дизайнера проекта Анны Морозовой ——————————————
———————————————— В ВАШЕМ ГОРОДЕ… ► Через Houzz можно нанять дизайнера или архитектора в любом городе и стране. Начать поиск специалиста ————————————————

Комментарии 5

На мой вкус скучно, темно и серо, можно бы посветлее и контрастней. Да, и еще хозяйке придется крутиться у раб.зоны всё время задом к окну, что не айс . И 372 тыр за ДСП, МДФ и пластик - многовато, хотя может там фурнитура крутая (сомневаюсь).
Перегородки из шпона ореха 71 тыс?!!! Не слишком круто?
azallea

4 г.

Как все серо и уныло...

Оставьте комментарий

Смотреть похожие темы

Читать похожие статьи