logo

Проект недели: Мансарда с живым деревом «в кубе»

Вы удивитесь, но это — Подмосковье

Анна Бандальер
Анна Бандальер

26 янв. 2017

Обновлено 11 июня 2017

журналист, постоянный автор Houzz

Мансарда в загородном доме долгое время служила детской, но дети подросли — семье стало важнее оборудовать просторную гостиную. «Дом каркасный, хорошо утепленный, так что к качеству вопросов не было, — рассказывает Александр Кудимов из студии Ruetemple. — Основная проблема — неудобная планировка второго этажа. Мансарда, которую мы переделывали, служила проходной зоной в спальню и, если устраивать шумные посиделки с гостями, то заснуть в соседней комнате не удастся».
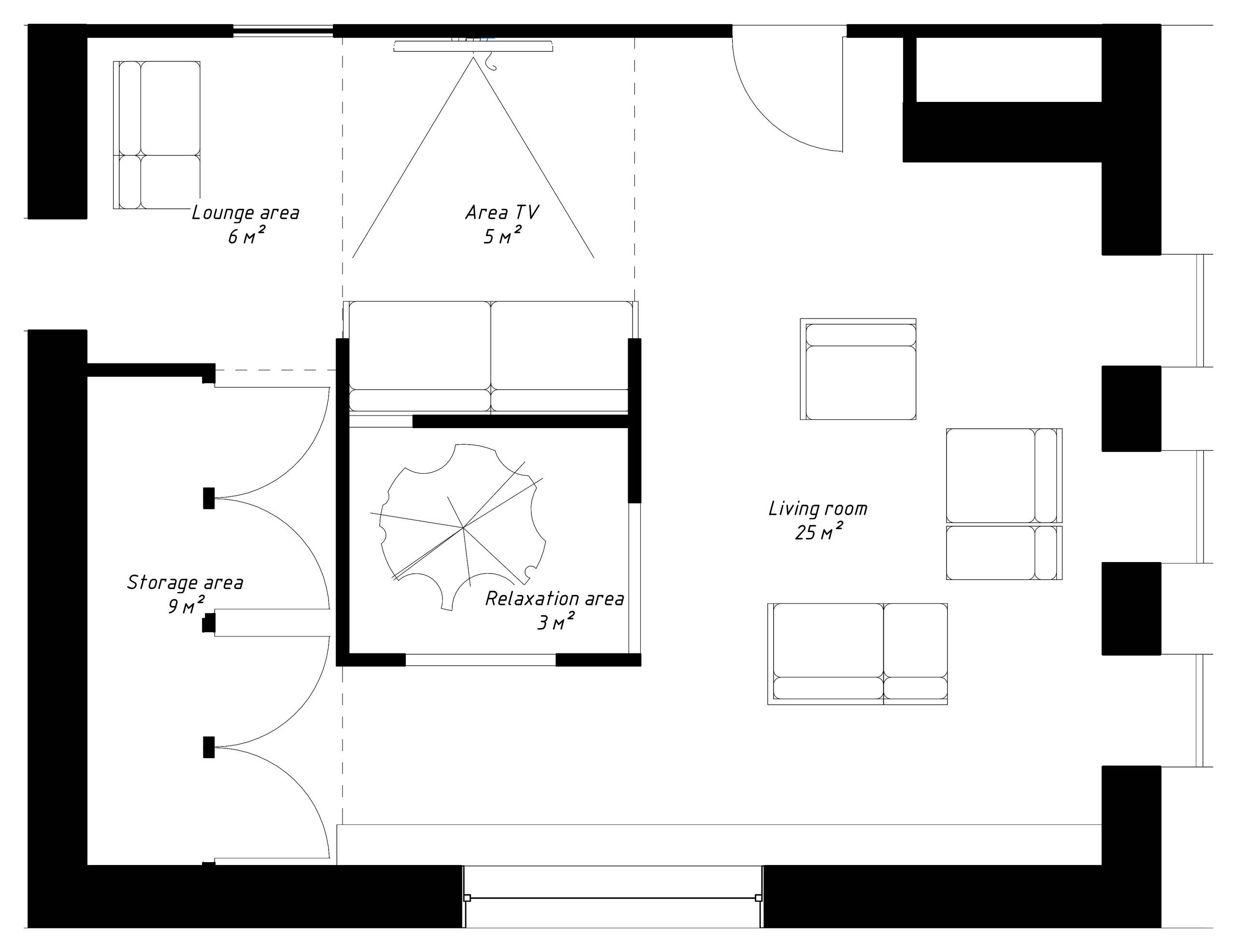
«Требовалось создать многофункциональное пространство: чтобы можно было и за барной стойкой посидеть, и телевизор посмотреть, и на сад полюбоваться, и книжку почитать, а самое главное — уединиться и расслабиться, — продолжает архитектор. — У нас возникла идея разместить в центре комнаты кубический объем, разделяющий ее на несколько зон. А внутри этой конструкции мы решили обустроить место для отдыха».
План обновленной мансарды О проекте Место : Московская область Размер : 48 кв.м Кто здесь живет : Семья, состоящая из папы, мамы, двоих детей и бабушки Авторы проекта : Александр Кудимов и Дарья Бутахина, студия Ruetemple
Чтобы проявить архитектуру пространства, решили избавиться от потолка и максимально задействовать площадь скатов крыши. Предварительно усилив кровельный каркас несущими и опорными столбами, в крыше пропилили семь оконных проемов, которые открыли панорамный вид на сад. Благодаря этому помещение увеличилось (высота комнаты достигла 9 м), наполнилось светом и воздухом. Торшер: Regenbogen
В центре комнаты проложили металлические швеллеры для центрального элемента гостиной — зонирующей кубической конструкции. Чтобы отделить гостиную от лестницы, соорудили перегородку из ЛВЛ-бруса, оставив место для дверного проема.
Все поверхности выкрасили водоэмульсионной краской в белый цвет. Она очень стойкая, но стены можно будет мыть, что немаловажно, когда в семье есть дети. В качестве напольного покрытия использовали двухслойную доску: внизу — березовая фанера, а сверху — ламели дуба с выразительным рисунком. Не забыли и про необходимость звукоизоляции: в ячейки на полу уложили плиты из каменной ваты на основе базальтовых пород.
Для хранения одежды предусмотрели небольшой гардероб. Он имеет сложную конфигурацию и расположен вдоль одной из стен под скатом крыши. Шкаф скрывается за двумя двустворчатыми дверями. Еще одна дверь ведет на лестничную площадку и задает основную вертикаль со стороны гостиной.
Парящий белый куб с зоной релакса стал самым необычным элементом проекта. Чтобы визуально облегчить массивную конструкции, с каждой стороны куба проделали окошки разных размеров. Через один из таких проемов можно, например, смотреть телевизор.
Авторы проекта превратили замкнутое пространство в природный оазис: на полу рассыпали полированную гальку, а в центре посадили живое дерево, над которым находится мансардное окно. «Нам нужно было большое растение в компактной кадке, после долгих поисков мы нашли такое в Нидерландах за 200 тыс. руб. Заказали, ждали два месяца, а когда его привезли, это оказался какой-то чахлый кустик. Тогда мы за 500 руб. купили через онлайн-доску объявлений прекраснейший фикус Бенджамина, который был намного лучше первого варианта», — комментирует Дарья.
Внутри куба можно читать, медитировать или просто мечтать, глядя на звезды сквозь окно в скате крыши, уютно расположившись на мягких подушках. Пространство освещают лампы Эдисона на длинных шнурах, а снаружи конструкция подсвечивается светодиодной лентой. Поэтому, если задернуть оконные проемы неплотными рулонными шторами, то куб становится огромным светильником посредине комнаты. В таком убежище интроверта можно остаться наедине с природой даже во время шумной вечеринки.
Под кубом спрятали восемь выкатных мягких модулей со съемными чехлами, изготовленных специально для этого проекта. Их можно по-разному комбинировать, формируя с их помощью зоны для общения, активного и пассивного отдыха.
Вдоль одного из окон вместо подоконника установлена широкая столешница из искусственного камня Staron. Она служит барной стойкой, за которой удобно пить чай, глядя в сад. Над столешницей подвешены светильники с белыми керамическими абажурами. Высокие стулья лаконичные и надежные, с прочным металлическим основанием и деревянным сиденьем. Кофейные столики мобильные и легкие: их основания складываются, а столешницы превращаются в подносы. Стулья: Intelligent Design; столики: Cosmorelax
По словам архитекторов, работа над проектом позволила продемонстрировать преимущества такого подхода, когда пространство разделяется не стенами, а многофункциональными светопроницаемыми объемами. Выстроенный посреди мансарды куб помог рационально организовать интерьер, причем в одной комнате удалось обустроить сразу пять зон: для активного времяпрепровождения, для просмотра ТВ, гардеробную, для уединенного отдыха и для релаксации (внутри белого объема).
СМОТРИТЕ ТАКЖЕ… Детали проекта — на сайте передачи «Дачный ответ на НТВ» СМОТРИТЕ ТАКЖЕ… Другие про екты тех же авторов — архитекторов Александра Кудимова и Дарьи Бутахиной (студия Ruetemple) У ВАС ЕСТЬ ДЛЯ НАС ПРОЕКТ… Загрузите съемку в свой профиль на Houzz, отправьте ссылку с кратким описанием на editorial@flatica.ru Для справки: Какие объекты мы публикуем

Комментарии 4

ИМХО, не жилец дерево, будет сохнуть, обрываться и ломаться при размещении людей в подвешенной зоне. Не лучше ли было установить вместо "природного оазиса" большой качественный аквариум (а может и пару) литров на 500? Релакс и отдых для глаз гарантирован, а изготовление/уход обеспечит любая аквариумная компания (если хозяевам лень).
rbtr

8 л.

Очень концептуально, грустно и философско (учитывая вид из окна и вроде бы "загород"). Даже пронзительно.
Да, придумано здорово.

Оставьте комментарий

Читать похожие статьи