logo

Есть решение: 9 вариантов дизайна кухни-гостиной 17 кв.м

Вытяжка или плитка как главный акцент, витражи и другие интересные решения в кухне-гостиной

Houzz Россия
Houzz Россия

26 мар. 2019

Обновлено 21 апр. 2019

Есть решение: 9 вариантов дизайна кухни-гостиной 17 кв.м
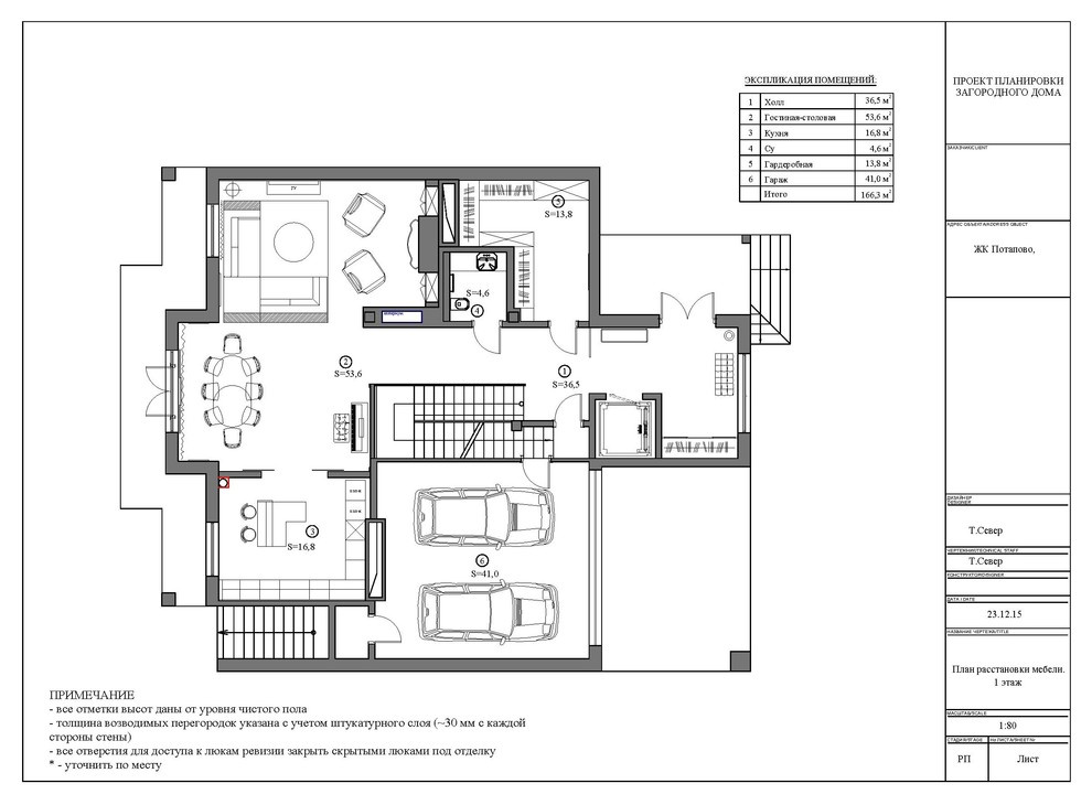
1. Кухня с обеденным столом и эффектным коробом для вытяжки

Авторы проекта: Софья Серёжкина и Валерия Лыкова, SOVA interiors
Место: Москва

По желанию заказчика кухню не объединяли с гостиной — она осталась самостоятельным помещением. Туда же поместили ещё и столовую группу. За счёт большой площади кухню удалось сделать главным акцентом в квартире и при этом сохранить её функциональность.
Есть решение: 9 вариантов дизайна кухни-гостиной 17 кв.м
Вытяжной короб — важный декоративный элемент, который добавил интерьеру кухни торжественности. На этапе строительства с ним возникали сложности: необходимо было до миллиметра выдержать размеры и углы в 90 градусов. Иначе во время установки кухни могли возникнуть нестыковки.
Есть решение: 9 вариантов дизайна кухни-гостиной 17 кв.м
Планировка квартиры с интерьером кухни 17 кв.м
Есть решение: 9 вариантов дизайна кухни-гостиной 17 кв.м
Обратите внимание: Когда выбирали стилистику, дизайнеры остановились на сочетании современных кухонных шкафов с элементами неоклассики. Чтобы подчеркнуть контраст, холодильник специально выделили.
Есть решение: 9 вариантов дизайна кухни-гостиной 17 кв.м
На чем сэкономили / на что потратились: На качестве кухни заказчик решил не экономить и выбрал комплект в салоне кухонь “Мария”. Стол из массива дуба сделан в мастерской Ambar House по эскизам дизайнеров — он легко трансформируется и вмещает много гостей. Для удобства предусмотрели небольшой сервировочный винтажный столик Repeat Story, он очень понравился заказчице.

ЕЩЕ…
Больше фото кухни из этого проекта — в профиле дизайнеров
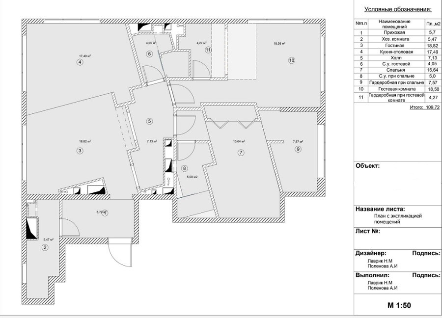
2. Кухня-гостиная 17 кв.м с раздвижной перегородкой

Авторы проекта: Наталья Лаврик и Алла Поленова
Место: Воронеж

Заказчица отказалась от традиционных планировок и попросила дизайнеров о неординарном варианте — так родилась идея с необычным углом привязки перегородок. Если коротко, в квартире мало прямых углов, большая часть либо тупые, либо острые. Это позволило «развернуть» всю квартиру к естественному свету и увеличить функциональность пространства. «У многих такая замысловатая планировка вызовет вопросы, но именно она сделала проект интересным и задала стилевое решение», — отмечает Наталья Лаврик.
В гостиной части: перегородка Turati; диван Nino Galimberti; кресло, столик и пуфы Selva; ковёр RUG COMPANY; люстра Arteriors; торшер Kelly Wearstler; бра Ochre; страиваемые светильники Centrsvet; текстиль Dedar, Pierre Frey, Jim Thompson

Кухню и гостиную разделяет стеклянная перегородка с классической расстекловкой. Несмотря на размеры, перегородка придаёт интерьеру лёгкость: белоснежная кухонная мебель и большое количество света из окон создают ощущение бесконечного пространства, скрывающегося за ней.
Планировка квартиры, где кухня-гостиная 17 кв. метров

Хорошие исходные данные — свободная планировка, четыре канализационных стояка, вентиляционные шахты и большая лоджия — позволили сделать капитальную перепланировку. Просторное помещение разделили почти пополам — на общественную и приватную зоны. Кухню изолировали от гостиной с помощью стеклянной перегородки, поставленной под углом.
Кухня Aster Cucine; стол, кресла, этажерка Porada; люстра над столом Catellani&Smith; светильники над островом Karman; аксессуары Hermes, Villeroy&Bosh, Eichholtz, Rosenthal
В гости к хозяйке часто приходят друзья и семья сына. На этот случай, кроме рабочего острова, которого хватает владелице, предусмотрели большой обеденный стол.

ЕЩЕ…
Больше фото кухни и других деталей из этого проекта — в профиле дизайнеров
Есть решение: 9 вариантов дизайна кухни-гостиной 17 кв.мВиктория Колтыпина
3. Кухня-столовая с синим плинтусом

Место:
Москва, новый дом на Ленинском проспекте
Автор проекта: Виктория Колтыпина

У этой квартиры сложная форма с радиусным остеклением: на зону гостиной приходилось 12 метров окон. С одной стороны, это большой плюс, с другой зонировать такое пространство непросто.
Есть решение: 9 вариантов дизайна кухни-гостиной 17 кв.мВиктория Колтыпина
Планировка квартиры, где кухня-столовая 17 кв.м

Кухне-гостиной придали форму, приближенную к прямоугольнику — так удобнее расставлять мебель и задавать красивые оси. Для этого небольшую часть пространства пришлось отрезать под кабинет.
Есть решение: 9 вариантов дизайна кухни-гостиной 17 кв.мВиктория Колтыпина
Полы в общественной части квартиры оформили керамогранитом под оникс, а по периметру врезали синие канты. Этот приём сморится очень броско и практически с порога демонстрирует характер интерьера. Керамогранит с синим кантом переходит из коридора в гостиную. Потолки оформили глянцевой краской: не то чтобы их требовалось визуально приподнимать, но с такой отделкой интерьер кажется ещё торжественнее.
Есть решение: 9 вариантов дизайна кухни-гостиной 17 кв.мВиктория Колтыпина
Кухонные фасады выбрали в тон стенам и в лёгком глянце, чтобы растворить в пространстве четырёхметровый мебельный фронт.

Похожую задачу решает и очень высокий цоколь, который отбили зеркальными плашками: благодаря этому приёму кухня как будто взлетает.
Есть решение: 9 вариантов дизайна кухни-гостиной 17 кв.мВиктория Колтыпина
Кухня Ballerina Küchen; над островом светильники Escada

ЕЩЕ…
Больше фото кухни и других деталей из этой яркой квартиры — в профиле дизайнера
Есть решение: 9 вариантов дизайна кухни-гостиной 17 кв.мАнна Жемерева
4. Кухня-столовая, где диван 5,5 метров длиной

Автор проекта: Анна Жемерева, ORT-interiors
Место: Московская область

Владельцы поставили дизайнеру сложную задачу по устройству лестницы внутри таунхауса. Заказчик сомневался, нужно ли изолировать её от кухни-столовой-гостиной. Анна сделала пять вариантов планировки: в одном из них кухня была под лестницей, в другом лестница располагалась за стеклянной стеной.
Есть решение: 9 вариантов дизайна кухни-гостиной 17 кв.мАнна Жемерева
Планировка таунхауса с дизайном кухни 17 кв.м

Когда решили отделить лестницу от зоны кухни-гостиной стеной, встал вопрос об организации столовой зоны. Изначально она планировалась на фоне стеклянных дверей, перед кухней. Но желание хозяев смотреть телевизор не только в гостиной, но и за обеденным столом, было важнейшим в организации пространства.

Так что основная сидячая зона за обеденным столом и на диване в гостиной части ориентирована одновременно на телевизор и камин.
Есть решение: 9 вариантов дизайна кухни-гостиной 17 кв.мАнна Жемерева
В числе других просьб хозяев было наличие большого холодильника, зонирование кухни и столовой барной стойкой, минимум навесных шкафов, несколько типов освещения и плитка на всей площади кухни-гостиной.
Есть решение: 9 вариантов дизайна кухни-гостиной 17 кв.мАнна Жемерева
Чтобы смотреть телевизор за столом могли все желающие, дизайнер придумала длинный диван-лавку (5,5 погонных метров), идущий от кухни до окна вдоль стены. А в пару к нему спроектировала массивный трёхметровый стол.

ЕЩЕ…
Больше фото кухни и другие детали из этого проекта — в профиле дизайнера
Есть решение: 9 вариантов дизайна кухни-гостиной 17 кв.мOlga Pazukhina
5. Кухня-столовая с португальской плиткой и… библиотекой

Авторы проекта: архитектор: Ольга Пазухина и дизайнер Наталья Сазонова, design-studio INDIGO
Место: Санкт-Петербург

Заказчики очень любят Португалию и попросили авторов проекта использовать характерный для этой страны декор в дизайне кухни.

Нужно было спроектировать кухню с библиотекой и рабочим местом, которая бы в большей степени выглядела как уютная гостиная.
Есть решение: 9 вариантов дизайна кухни-гостиной 17 кв.мOlga Pazukhina
Обеденный стол «Мебель от Алексея Тискина»

На что потратились / на чём сэкономили: Португальскую тему передали плиткой азулежу, которую привезли заказчики. Они сами ездили по частным производствам Португалии и выбирали, что им нравится. Плитки были разных размеров и толщины, пришлось на объекте составлять пэчворк из подходящих модулей, но результат оправдал ожидания и затраты.

Заказчикам понравилась итальянская кухня L’ottochento Living design, что соответствовало выбранному стилю и функции кухни-гостиной. Но бюджет не позволял такие траты. Тогда обратились в столярную мастерскую «Марко» и сделали похожую кухню.
Планировка квартиры, где кухня-гостиная 17 кв.м
Есть решение: 9 вариантов дизайна кухни-гостиной 17 кв.мOlga Pazukhina
Проблема и решение: Дизайн гостиной, совмещённой с кухней, 17 кв.м, усложнили низкие потолки (в черновом виде 2,7 м). По словам дизайнера, помещение выглядело плоским, нужно было визуально приподнять потолок. Так появилось решение с гипсовым орнаментом, оно оживило интерьер и поддержало «португальский» стиль. Да и сам потолок стал выглядеть выше.
Есть решение: 9 вариантов дизайна кухни-гостиной 17 кв.мOlga Pazukhina
Над диваном в гостиной сделали необычный витраж: стёкла для него заказчица купила в Германии, и уже на месте витражная фирма «Кристалл» собрала и смонтировала их.

ЕЩЕ…
Больше фото кухни из этого проекта — в профиле дизайнера
Есть решение: 9 вариантов дизайна кухни-гостиной 17 кв.мКатерина Александрова
6. Кухня студия 17 кв.м со стальной перегородкой

Автор проекта: Катерина Александрова
Место: Санкт-Петербург

Изначально площадь кухни составляла 11 кв.м. Но заказчик хотел увеличить площадь комнаты и сделать более просторную кухню-гостиную. Тогда дизайнер разработала проект кухни гостиной 17 кв.м: ей удалось увеличить помещение и разделить его на две зоны. Цветовое и стилевое решение — простое и строгое, с использованием природных цветов и материалов.
Есть решение: 9 вариантов дизайна кухни-гостиной 17 кв.мКатерина Александрова
Обратите внимание: Кухня отделена от гостиной стальной перегородкой, выполненной по эскизам дизайнера. Сталь искусственно состарена, затем вычищена и покрыта лаком. Со стороны кухни перегородка закрыта стеклянным фартуком. Красоту объекта подчёркивает электрический камин, по сути — парогенератор. Он создаёт особую атмосферу в интерьере и увлажняет воздух.
Есть решение: 9 вариантов дизайна кухни-гостиной 17 кв.мКатерина Александрова
Планировка, где кухня-студия 17 кв.м

В гостиной части разместили диван с дополнительным спальным местом, телевизор и системой хранения. Компактная кухня вместила встроенный холодильник, духовой шкаф, кофемашину, посудомойку и много мест для хранения. Обеденный стол заменила стойка с парой высоких стульев.
Есть решение: 9 вариантов дизайна кухни-гостиной 17 кв.мКатерина Александрова
ЕЩЕ…
Больше фото кухни и другие детали из этого проекта — в профиле дизайнера
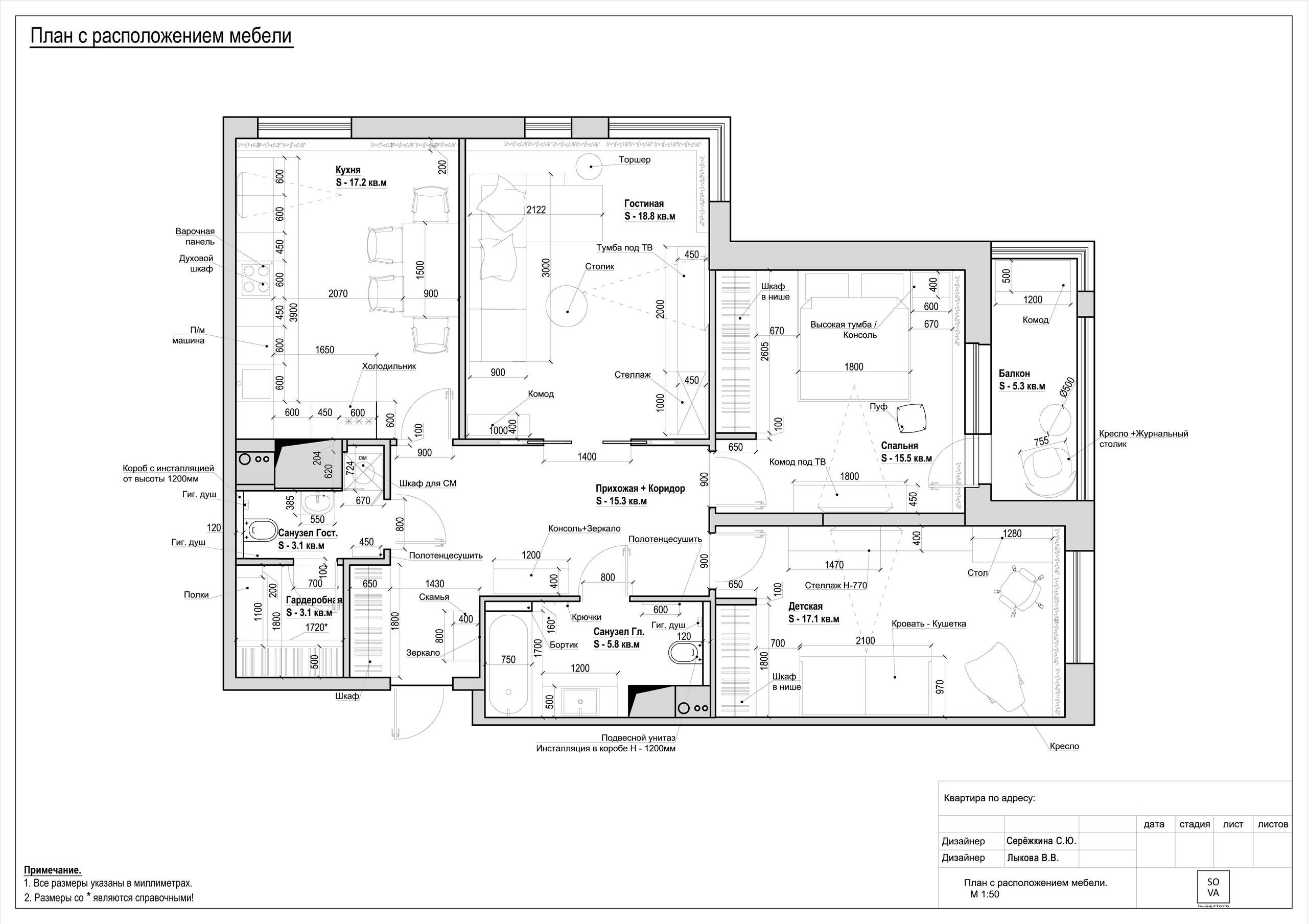
7. Кухня со сложным островом

Автор проекта: Татьяна Северр, Tatiana Severr design-studio
Место: Москва

В этом доме кухня «перетекает» в обеденную и гостиную часть. Но владельцы хотели, чтобы кухню было легко изолировать от остальных помещений на время готовки или уборки. Поэтому кухня перекликается по цветовой гамме и материалам с гостиной, но при этом отличается большей строгостью форм и функциональностью.
Планировка дома, где кухня 17 кв. метров
На что потратились, на чём сэкономили: На угловых механизмах, керамических фасадах нижних шкафов и матовых дверцах верхних модулей решили не экономить. Уменьшить бюджет помогла столешница из искусственного камня, которую выбрали вместо натурального (и более дорогого) материала.
ЕЩЕ…
Больше фото кухни из этого проекта — в профиле дизайнера
Есть решение: 9 вариантов дизайна кухни-гостиной 17 кв.мОльга Копосова
8. Проходная кухня с полуостровом и диваном у окна

Автор проекта: Ольга Копосова, Okopos
Место: Санкт-Петербург

Эту квартиру дизайнер создавала для молодой семьи с двумя рыжими котами и пушистым корги. Заказчики оказались яркими и творческими людьми и на момент знакомства точно знали, какой будет планировка «квартиры мечты».
План квартиры до перепланировки
План квартиры после перепланировки,

Семья решила надолго обосноваться в квартире и переделать планировку под себя. Так, к комнатам присоединили лоджии и выделили проходную кухню-гостиную с большим окном.
Есть решение: 9 вариантов дизайна кухни-гостиной 17 кв.мОльга Копосова
Чтобы кухня не выглядела слишком громоздко, от верхних шкафов решили отказаться. А часть со встроенным холодильником, морозильной камерой и духовкой поместили в нишу (см. следующее фото).
Есть решение: 9 вариантов дизайна кухни-гостиной 17 кв.мОльга Копосова
Отказались и от варианта угловой кухни в пользу полуострова с выдвижными ящиками для хранения.
Есть решение: 9 вариантов дизайна кухни-гостиной 17 кв.мОльга Копосова
Помещение выполняет функцию кухни и гостиной, но на полноценный диван не хватало места. Вместо него у окна установили скамью с мягкими подушками. Кстати, скамью глава семьи сконструировал, смонтировал и покрасил сам. Как и фартук из фанеры, выкрашенный в цвет скамьи.

ЕЩЕ…
Больше фото кухни из этого проекта — в профиле дизайнера
9. Кухня-гостиная 17 кв.м в квартире для командировок

Автор проекта: Инна Свириба
Место: Киев, Украина

Хозяйка квартиры несколько лет жила в Киеве и полюбила его, поэтому, когда дела стали всё чаще приводить её в этот город, решила сменить номера отелей на собственную квартиру.
Планировка кухни-гостиной 17 кв.м

Эта квартира площадью 45 кв.м предлагалась как студия, однако владелица попросила дизайнера поделить пространство между изолированной спальней и кухней-гостиной, а также обустроить гардеробную.
Кухню сделали угловой, коротким плечом она выходит к прихожей. «Идея была изогнуть кухню так, чтобы встроенный холодильник помог организовать вход в гардеробную», — рассказывает дизайнер.
Кухня Miton

Кухонный комплект выбрали небольшой, но функциональный, с большой рабочей поверхностью. Очень глубокую встроенную мойку с толстыми стенками нашли у компании Kraus. Столешница выполнена из гранита сложной палитры: в его серую основу вкраплены пятна винного оттенка. «Не хотелось, чтобы фартук был светлым, поэтому выбрали для него мозаику в красноватых тонах», — поясняет автор проекта.
Стол фабрики «Яворина»; комод, стулья в столовой Flamant; диван Lane

Кухня-столовая разместилась вблизи от входной зоны. Обеденный стол изготовили на украинской фабрике, которая поставляет износоустойчивую мебель для ресторанов и баров, а значит, в сроке службы можно не сомневаться.

«Хозяйка квартиры родилась в Киргизии и очень любит народные ковры — они носят экзотическое название “шырдак”. Их делают вручную, и, куда ни постели такой ковёр, он прекрасно вписывается в интерьер. Этот экземпляр заказчица купила во время поездки на родину», — отмечает Инна.

ЕЩЕ…
Больше фото кухни и других деталей из этого проекта — в профиле дизайнера
В ВАШЕМ ГОРОДЕ…
Найдите дизайнера на Houzz в вашем городе — закажите собственный проект
___________________________

ФОТОПОДБОРКА ПО ТЕМЕ…
Дизайн кухни среднего размера
__________________________

ВАША ОЧЕРЕДЬ…
Если вы разрабатывали дизайн кухни-студии 17 кв.м или традиционно изолированной такой же площади — поделитесь своим опытом. Покажите реальные фото, где хорошо видна кухня-гостиная 17 кв. метров!

Комментарии 8

Tatiana Severr design-studio-очень понравилось. Графично, стильно!!
Выглядит красиво, но сколько это всё делать
зачем назвали статью 9 вариантов где кухня -гостиная 17м, когда в статье реально всего одна комната соответсвует данным параметрам, статья не о чем

Оставьте комментарий

Смотреть похожие темы

Читать похожие статьи