
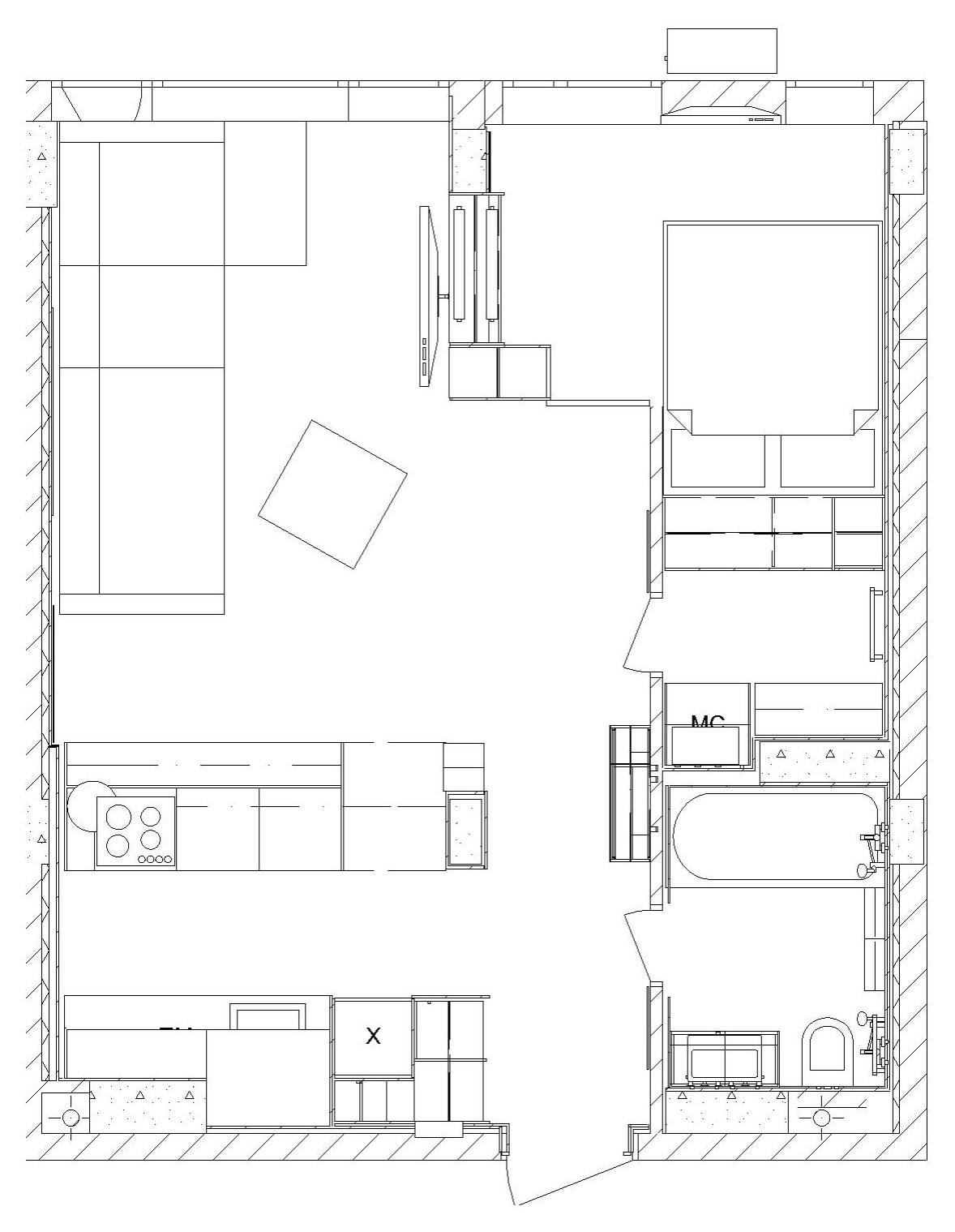
Houzz тур: 31 кв.м — квартира с «гнездом» для кота
Houzz Россия
27 февр. 2020
Обновлено 21 авг. 2020
5 л.
5 л.

Houzz тур: 31 кв.м — квартира с «гнездом» для кота
Houzz Россия

Houzz США: Хижина в лесу Южной Каролины
Houzz Россия

Houzz Австралия: Пристройка к дому, где ничего нельзя
Houzz Россия

Houzz Беларусь: Квартира с тремя (!) вытяжками
Елена Амбросимова

До и после: Бассейн в крошечном саду (1.7 сотки)
Houzz Россия

Houzz Испания: Квартира, где все покосилось
Houzz Россия

Houzz Казахстан: Эко-минимализм для молодого юриста
Евгения Назарова

Houzz Италия: Дом на озере Комо — проект русских дизайнеров
Евгения Назарова

Houzz Испания: 40 кв.м — яркая квартира в центре Мадрида
Houzz Россия

Houzz Италия: Энергоэффективный дом на участке для трех семей
Houzz Россия

Houzz Беларусь: Квартира для сдачи в аренду в Гродно
Houzz Россия

Houzz Италия: Квартира с иллюминатором и большой террасой
Houzz Россия

Houzz Австралия: Пристройка к дому вместо сарая
Houzz Россия

Houzz Германия: 101 метр ткани — на пошив штор в доме
Houzz Россия

Houzz США: Дом в лесах, к северу от Нью-Йорка
Houzz Россия

Houzz Британия: Перестройка пристройки — с эффектным окном
Houzz Россия

Houzz Украина: Квартира в центре Киева
Евгения Назарова

Houzz Украина: Апартаменты в Киеве с открытой террасой
Евгения Назарова
Дмитрий
5 л.