logo

Houzz Украина: Квартира с элементами эко-дизайна в Запорожье

Тонированная фанера стала акцентным материалом интерьера, а вагонка и кирпич привнесли в проект фактурное разнообразие

Анна Бандальер
Анна Бандальер

12 авг. 2016

Обновлено 5 дек. 2016

журналист, постоянный автор Houzz

Молодая пара из Запорожья обратилась к архитектору Евгению Мещеруку по рекомендации друзей, с которыми он работал раньше. «Мы быстро нашли общий язык, наши взгляды на стилистику, выбор материалов и мебели полностью совпали, и в последствии я разрабатывал для этих же заказчиков проект кофейни», рассказывает дизайнер. Владельцы хотели видеть свое жилье уютным, современным и экологичным, но жестких рамок не задавали, доверившись профессионализму архитектора. Он уделил внимание не только визуальной составляющей, но и функциональности интерьера, скорректировав его планировку.
О проекте Место : Запорожье, Украина Год : 2015 Размер : 84 кв.м Кто здесь живет : Молодая семья Автор проекта: Евгений Мещерук Фото : Татьяна Коваленко
«На момент начала строительных работ это была двухкомнатная квартира с отдельной кухней в новостройке, — рассказывает Евгений. — Качество самого дома оставляло желать лучшего, кривоватые стены и потолок пришлось выравнивать, максимально экономя место. Основной идеей было создать открытое пространство общей зоны путем демонтажа не несущих стен. Таким образом, удалось разместить в этом объеме кухню, столовую и зону отдыха».
Были разобраны все межкомнатные стены, за исключением двух вентиляционных шахт. Демонтировали подоконные части в гостиной, установили раздвижные двери с остеклением до пола. Благодаря этому в помещение теперь проникает больше естественного света. Интересным решением стала перегородка из ясеня между столовой и гостиной, работающая на просвет. Еще один способ зонировать пространство — гардеробный шкаф в коридоре. Помимо основной функции хранения, он удобно организует движение жильцов и вместе с конструкцией потолка и прожекторными светильниками создает импровизированную сцену, где хозяйка играет на пианино.
Основой декоративного сценария стала отделка деревом. Базовым был выбран сложный бледно-желтый, уходящий в беж, цвет. А в качестве акцентного — тонированная в более темный оттенок фанера. Тему натуральных материалов поддерживает деревянная мозаика на кухне и кирпич ручной формовки в прихожей. «От кирпича была отрезана лицевая часть, то есть получилась своеобразная плитка с уникальной текстурой. По сравнению с декоративной плиткой, такая облицовка смотрится лучше», — объясняет дизайнер.
Журнальные столики и декоративные вазы B&B Italia; торшер: Kare Design; точечные светильники: Leds-C4 , F aro
Поскольку площадь позволяла, решили сделать кухню островной планировки: этот вариант эргономичнее, чем угловое расположение. Мебель изготовили на заказ на фабрике Roda, укомплектовав кухню встроенной техникой. Фасады кухни окрашены в теплый бежевый оттенок, а столешницу из искусственного камня и смеситель выбрали белого цвета.
Cтоловый гарнитур: Сalligaris; подвесные светильники: Banyo
Цельность восприятия интерьера обеспечивает конструкция потолка и единое напольное покрытие — паркет из дерева. Кроме того, в отделке стены за изголовьем кровати в спальне были использованы такие же панели, как и в гостиной. Нишу, которая образовалась в комнате после расширения санузла, задействовали для интеграции туалетного столика.
«При подборе мебели и светильников у заказчиков не было привязки к определенным брендам или каких-то принципиальных пожеланий. Исходили из бюджета, подбирая подходящие по дизайну варианты. Единственным исключением стали бра над кроватью — хозяйка хотела именно эту модель», — рассказывает архитектор. Возле окна обустроили нестандартное рабочее место. «Это П-образная конструкция с цельной столешницей в 3,5 м, — объясняет Евгений. — По потолку мы пустили направляющую с гардинами, при необходимости ею можно занавесить творческий беспорядок на столе».
Комод: ИКЕА; желтый стул: Сalligaris; бра: Аrtemida; накладные светильники: Sikrea Хозяева хотели укомплектовать санузел и отдельно стоящей ванной, и большой душевой кабиной, поэтому пространство увеличили, сместив перегородку в сторону спальни.
Керамогранит: Apavisa; сантехника: Hansgrohe; умывальник, ванна: Porcelanosa В отделке этого помещения тоже не обошлось без деревянных акцентов. «Стену за ванной мы выложили панелями из светлого ясеня. Так как есть отдельная душевая, прямого контакта с водой у дерева нет», — говори т дизайнер.
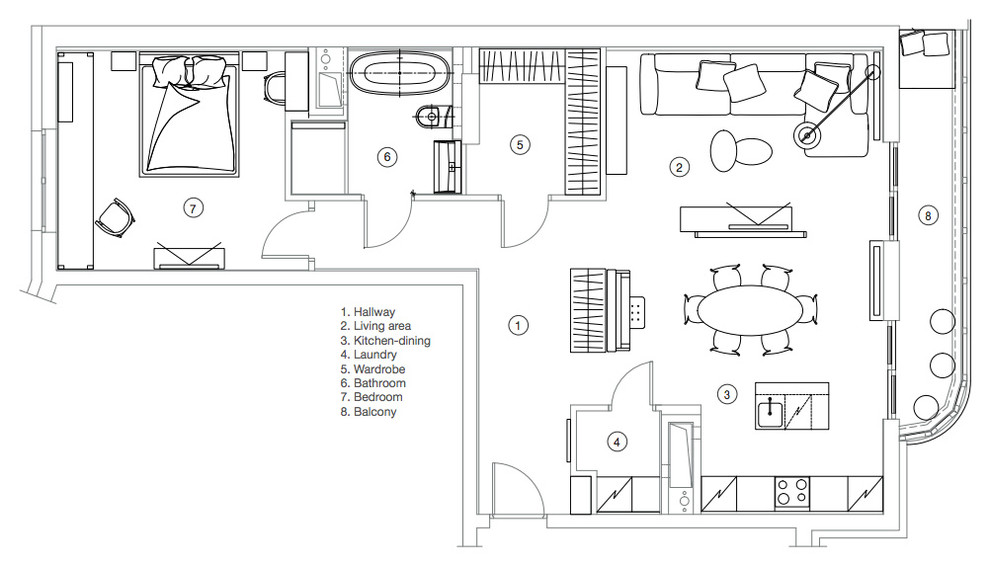
План квартиры ПРЕДЛОЖИТЕ СВОЙ ПРОЕКТ ДЛЯ ПУБЛИКАЦИИ… Загрузите фотосъемку в свой профиль на Houzz, отправьте ссылку и краткое описание проекта на editorial@flatica.ru. Мы обязательно свяжемся с вами, если примем решение о публикации.

Комментарии 8

http://krutodesign.ru/keys8?utm_referrer=http%3a%2f%2fkrutodesign.ru%2fportfolio как жаль, что работы так легко украсть
rbtr

9 л.

А какая площадь кухни-гостиной? А как осуществляется там вентиляция? (Учитывая, что лоджия вдоль всего помещения)
Я я бы устала пыль протирать с этой перегородки :))

Оставьте комментарий

Смотреть похожие темы

Читать похожие статьи